Добавить в корзинуПозвонить
Найти в Дзене
Nihome

Проектирование Электрики.И почему это так важно?

Проектирование электрики: почему это не формальность, а залог комфорта и безопасности
Представьте: вы закончили ремонт, расставили мебель, включили все приборы — и вдруг вырубается свет. Или розетка искрит, когда подключаете чайник. Знакомо? Чаще всего причина —
Оглавление

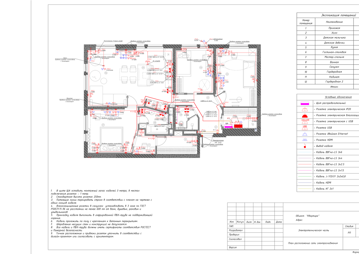
План расположения розеточных сетей электроснабжения
План расположения розеточных сетей электроснабжения

Проектирование электрики: почему это не формальность, а залог комфорта и безопасности

Представьте: вы закончили ремонт, расставили мебель, включили все приборы — и вдруг вырубается свет. Или розетка искрит, когда подключаете чайник. Знакомо? Чаще всего причина — отсутствие грамотного проекта электрики. Разберёмся, почему проектирование так важно и что оно даёт.

Что такое проект электрики?

Это не просто схема розеток на плане квартиры. Полный проект включает:

  • план размещения электрооборудования (розеток, выключателей, светильников);
  • схему разводки кабелей с указанием трасс прокладки;
  • расчёт электрических нагрузок по группам;
  • спецификацию оборудования (автоматы, УЗО, кабели);
  • однолинейную схему электрощита;
  • расчёты по заземлению и молниезащите (для частных домов).

Почему нельзя обойтись «на глазок»?

Визуализация компоновки электрищита (Силовая часть и часть автоматизации)
Визуализация компоновки электрищита (Силовая часть и часть автоматизации)

Визуализация щита слаботочного
Визуализация щита слаботочного

Без проекта вы рискуете получить:

  1. Перегрузку сети. Включили чайник, микроволновку и утюг - и всё отключается. Причина: все приборы на одной линии с недостаточным сечением кабеля.
  2. Неудобное расположение. Розетки за шкафами, выключатели за дверями, удлинители через всю комнату.
  3. Проблемы с безопасностью. Отсутствие УЗО,Дифавтоматов в ванной повышает риск поражения током.
  4. Сложности с ремонтом. Не знаете, где проходят кабели - случайно повредите их при сверлении стен.
  5. Дополнительные расходы. Через год придётся переделывать — а это новые штробления, материалы, работа,а самое главное время.

Реальные выгоды от проектирования

Грамотный проект даёт:

  • Безопасность. Правильный расчёт нагрузок и подбор автоматов предотвращают перегрев кабелей и возгорания.
  • Комфорт. Все розетки,выключатели,различные датчики — там, где они реально нужны.
  • Экономию. Нет переплаты за лишние материалы и переделки.
  • Надёжность. Система рассчитана на пиковые нагрузки и прослужит долго.
  • Прозрачность. Чёткая схема упрощает обслуживание и ремонт.

Как проходит проектирование: 5 этапов

Этап 1. Сбор данных

Вы определяете:

  • расположение мебели и техники;
  • количество и типы приборов (мощные, слаботочные);
  • особые требования (умный дом, резервное питание).

Этап 2. Расчёт нагрузок

Инженер считает:

  • суммарную мощность всех потребителей;
  • токи в линиях;
  • необходимое сечение кабелей;
  • номиналы автоматов,УЗО и дифавтоматов.

Этап 3. Разработка схемы

Создаётся:

  • план розеток и выключателей с привязкой к планировке;
  • схема групп (освещение, розетки, мощная техника);
  • однолинейная схема щита.
План системы дополнительного уравнивания потенциалов
План системы дополнительного уравнивания потенциалов

Этап 4. Подбор оборудования

Выбираются:

  • кабели (ВВГнг-LS, NYM,ВВГнг(А)-FRLS);
  • автоматы и УЗО (ABB, Schneider Electric);
  • коробки, гофры, крепёж, т.д и т.п

Этап 5. Документация

Готовый проект включает:

  • чертежи с маркировкой;
  • спецификации материалов;
  • пояснительную записку.
  • Кабельный журнал

Типичные ошибки при самостоятельном проектировании

Даже если вы делаете проект сами, избегайте:

  • Недооценки запаса. Заложили 5 розеток в комнате — а через год купили увлажнитель, проектор, зарядную станцию. Лучше добавить 2–3 «про запас».
  • Объединения групп. Освещение и розетки на одном автомате — если что-то случится, останетесь без света.
  • Игнорирования норм. Розетки в ванной без УЗО или кабель в деревянной стене без защиты.
  • Неучёта будущего. Не запланировали линию для кондиционера или бойлера — придётся тянуть удлинитель.

Когда стоит обратиться к профессионалам?

Самостоятельно можно спроектировать простую квартиру-студию. Но помощь инженера нужна, если:

  • площадь больше 100 м2
  • ;
  • есть мощные потребители (котёл-отопления, сауна,проточный водонагреватель ит.д);
  • планируется умный дом или резервное питание;
  • дом частный (требуется расчёт заземления и молниезащиты).

Вывод: инвестиция, которая окупается

Проектирование электрики — это не трата времени и денег, а инвестиция в:

  • безопасность вашей семьи;
  • комфорт на годы вперёд;
  • экономию на переделках;
  • надёжность всей системы.

Начните ремонт с электрики, а не заканчивайте им — и вы забудете о проблемах с розетками, выбитыми автоматами и искрящими проводами.

Кабельный журнал
Кабельный журнал

А вы делали проект электрики перед ремонтом? Делитесь опытом в комментариях — обсудим нюансы!

Хотите, я раскрою какой‑то из этапов подробнее или помогу рассчитать нагрузку для вашей квартиры?

По вопросам и заказам проектирования ЭОМ и системы домашней автоматизации(Умный Дом)

Обращайтесь по номеру телефона

+79122015714 Владислав

Или пишите на канале VK

ВКонтакте | ВКонтакте