Добавить в корзинуПозвонить
Найти в Дзене
North Forest

Две стены к забору — не приговор: как правильно выбрать проект углового дома или бани из бруса

Многие владельцы загородных участков сталкиваются с дилеммой: вроде
бы и земли достаточно, но под строительство остается только один
свободный угол. Остальная территория уже занята гаражом, детской
площадкой или старым садом. Знакомая ситуация? Часто люди ошибочно считают, что «затолкать» дом или баню в угол —
значит обречь себя на темноту, сквозняки и постоянное чувство тесноты. Спешим вас переубедить. При правильном выборе проекта именно угловое
расположение становится вашим козырем. А если строить из клееного бруса
или оцилиндрованного бревна, такой объект будет не только
функциональным, но и по-настоящему статусным. В этой статье мы разберем, как грамотно подобрать проекты угловых
домов и угловые бани, чтобы наслаждаться комфортом, а не воевать с
соседями и рельефом. Проект углового дома "Вудстоун" 120м2 Проект угловой бани "Репино" 76м2 Смотреть все проекты угловых домов Участок редко бывает идеальным квадратом. У него есть сложная
геометрия, перепады высот, а по перимет
Оглавление

Строительство углового (г-образного) дома

Многие владельцы загородных участков сталкиваются с дилеммой: вроде
бы и земли достаточно, но под строительство остается только один
свободный угол. Остальная территория уже занята гаражом, детской
площадкой или старым садом. Знакомая ситуация?

Часто люди ошибочно считают, что «затолкать» дом или баню в угол —
значит обречь себя на темноту, сквозняки и постоянное чувство тесноты.

Спешим вас переубедить. При правильном выборе проекта именно угловое
расположение становится вашим козырем. А если строить из клееного бруса
или оцилиндрованного бревна, такой объект будет не только
функциональным, но и по-настоящему статусным.

В этой статье мы разберем, как грамотно подобрать проекты угловых
домов и угловые бани, чтобы наслаждаться комфортом, а не воевать с
соседями и рельефом.

Проект углового дома "Вудстоун" 120м2

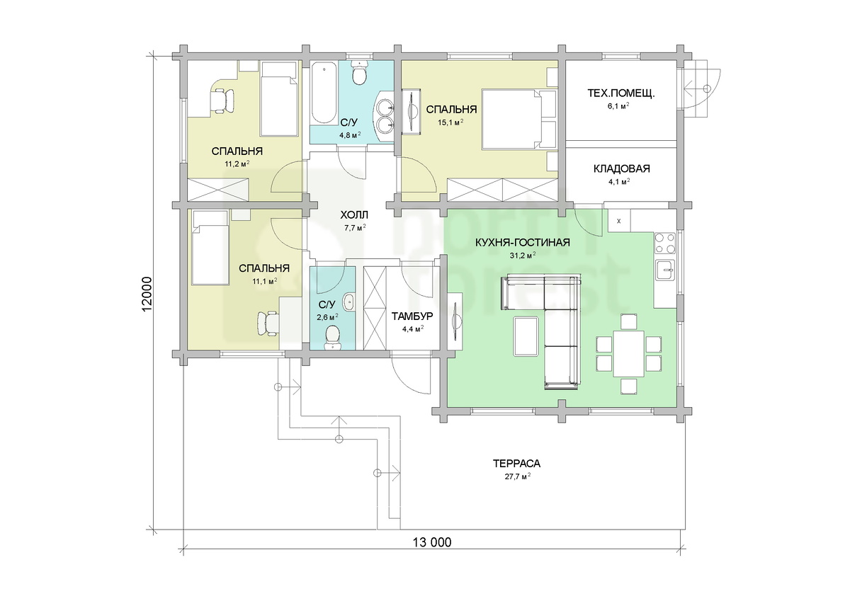
Планировка
Планировка

Проект угловой бани "Репино" 76м2

-3
-4

Смотреть все проекты угловых домов

Главное правило угловой застройки: две «глухие» стены — это плюс

Участок редко бывает идеальным квадратом. У него есть сложная
геометрия, перепады высот, а по периметру уже стоят заборы. Когда мы
говорим о строительстве в углу, у будущего строения есть
особенность: две тыльные стороны будут максимально близко подходить к
забору.

В типовых проектах это часто считалось недостатком. Но для грамотного архитектора это задача со звездочкой.

Правильное решение: Проекты угловых домов и бань
проектируются так, чтобы со стороны забора было минимальное количество
окон и дверей или их не было вообще. Там мы размещаем хозблоки, кладовки
или просто глухие стены.

Это дает сразу три плюса:

  1. Защита от посторонних глаз.Соседи не увидят, что у вас внутри.
  2. Экономия на отоплении.Две стены, примыкающие к забору (и, например, к
    северному ветру), не имеют оконных проемов или минимальные окна в
    технических помещениях — тепло уходит медленнее.
  3. Пожарная безопасность.Вы соблюдаете нормы отступа от границ участка, но не жертвуете светом.

Окна с видом на «свою территорию»: как угловая планировка дарит природу

Итак, тыльные стены мы сделали глухими. А куда же смотрят окна?

В качественном проекте основные окна (гостиной, спальни, комнаты
отдыха в бане) всегда ориентированы внутрь участка. То есть, стоя у
окна, вы видите не скучный забор соседа, а свой газон, сад, альпийскую
горку или детскую площадку.

Почему это важно для восприятия:

Когда вы завтракаете или отдыхаете после парной, взгляд должен упираться
в красоту. Угловое расположение здания позволяет «раскрыть» фасад с
окнами на 90–120 градусов, охватывая максимальный обзор ваших владений.
Это создает ощущение простора даже на компактном участке.

Вход с «красной линии» двора: удобство без лишних шагов

Логистика внутри участка — это то, о чем люди жалеют чаще всего после
стройки. Представьте: вы привезли продукты, или вышли из бани в холод,
или ждете гостей. Подходить к дверям нужно с центра участка, а не с
забора.

В удачных проектах угловых домов и бань
входная группа находится со стороны основного двора или подъездной
дорожки. Дверь не «смотрит» в глухой угол, а приглашающе выглядывает
из-за поворота фасада.

Это позволяет:

  • Организовать крыльцо с навесом, защищенное от бокового ветра (две стены дома создают естественный карман).
  • Сделать подход к дверям коротким и чистым (не нужно огибать все здание «по кругу»).

Когда возникает необходимость строить «в углу»?

Давайте честно: редко кто сразу мечтает поставить дом в самый дальний
угол. Обычно к этому вынуждают обстоятельства, которые умный проект
превращает в достоинства:

  1. Сложная геометрия участка.У вас треугольный, трапециевидный или
    Г-образный участок. Центр или «красная линия» заняты, и единственное
    ровное место — это угол.
  2. Существующие постройки.Уже построен большой дом, гараж, летняя
    кухня. Свободен только один угол — и он идеально подходит для гостевого
    домика или бани.
  3. Зонирование.Вы хотите четко разделить участок на парадную зону (у дома) и рабочую/лесную (в углу).

Что именно ставить в углу? Три главных сценария

Опыт показывает, что в углах участка чаще всего оказываются не основные коттеджи, а точечные объекты. Но бывают и исключения.

  1. Гостевой домик из клееного бруса (самый популярный вариант)

Компактное, но престижное строение. Две глухие стены к забору —
идеальная защита приватности гостей. А из окон открывается вид на
центральную часть вашего сада. Плюс клееный брус, практически, не дает
усадки — можно сразу делать чистовую отделку.

  1. Угловая баня из оцилиндрованного бревна (классика жанра)

Почему баню часто ставят в углу? Потому что парная не требует
панорамных видов, но требует уединения. Две глухие стены к забору — это
отличная теплоизоляция. А предбанник и терраса выходят в сторону дома,
чтобы бегать босиком по снегу было близко. Оцилиндрованное бревно
создает неповторимый русский дух и «дышит», выводя лишнюю влагу.

  1. Основной дом (для небольших участков)

Если участок очень маленький (4-6 соток), единственный способ
разместить полноценный дом — использовать угол. В этом случае дом
проектируется с П-образной или Г-образной формой, где внутренний двор
образуется естественным путем. Окна смотрят в этот внутренний дворик, а
не на соседей.

Чек-лист: как выбрать идеальный проект «углового» дома или бани

Перед тем как купить проект, проверьте его по этим пунктам:

  • Наличие двух глухих стен (без окон или с минимальным их количеством) на плане. Это ваша защита от соседей.
  • Окна собраны на одной или двух сторонах, выходящих в сад.
  • Вход со стороны центра участка (а не с забора или улицы).
  • Наличие тамбура. В углах часто дует сильнее, тамбур отсекает холод.

    Продуманная терраса. Она должна идти вдоль «красивой» стены, а не вдоль забора.

Резюме

Не бойтесь строить в углу. При правильном подходе «неудобное» место
становится самым уютным и функциональным. Вы получаете максимум
приватности за счет двух глухих стен, отличный обзор на участок из окон и
короткую удобную дорожку к дверям.

Выбирайте проверенные проекты угловых домов и угловые
бани из клееного бруса или оцилиндрованного бревна — и даже самый
маленький или сложный участок заиграет новыми красками. Ваш дом станет
не просто постройкой в углу, а архитектурной доминантой, с которой
открывается лучший вид на вашу землю.