Добавить в корзинуПозвонить
Найти в Дзене
Чеснок

Ради застройки парка «Дружба» снесут два рынка, конюшню, гаражи и лес

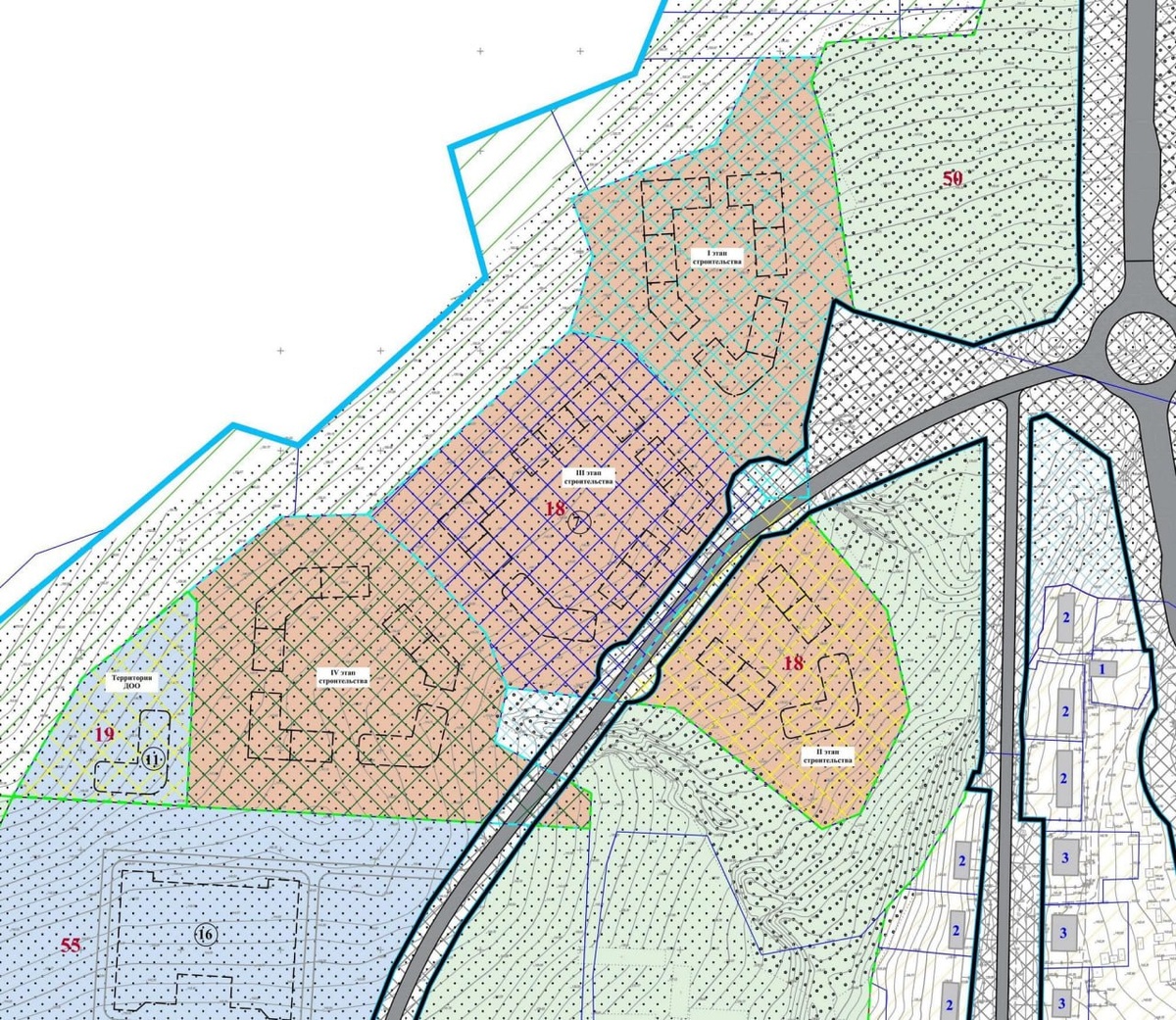
Мэрия Владимира выставила на обсуждение проект застройки парка «Дружба». Ради интересов двух бизнес-кланов – Шешениных и Мельниковых – власти готовы ущемить не только права всех владимирцев, застроив и уничтожив парк, но также конкретных жителей и организаций. Загибаем пальцы: ❌ Под дорогу от Пекинки до возможной ж/д станции снесут часть авторынка, «Ефремовского рынка», еще несколько торговых построек и объектов конно-кинологической службы МВД. ❌ Застроить на лугопарке собираются не только участок Шешениных, но и Мельниковых. Как и ожидалось, стоит только начать. ❌ Снести собираются ГСК «Вышка» и «Вышка-2» ради паркингов и ДШИ. ❌ Еще несколько многоэтажек планируется у ЖК «Панорама» и рядом с «Эталоном» на повороте. ❌ Большинство запланированных соцобъектов находятся на частных землях и вряд ли появятся. Иначе бы уже появились. ❌ Главное – от зоны отдыха в парке «Дружба» ничего не останется. Подписаться | Предложить новость

Ради застройки парка «Дружба» снесут два рынка, конюшню, гаражи и лес

Мэрия Владимира выставила на обсуждение проект застройки парка «Дружба». Ради интересов двух бизнес-кланов – Шешениных и Мельниковых – власти готовы ущемить не только права всех владимирцев, застроив и уничтожив парк, но также конкретных жителей и организаций. Загибаем пальцы:

❌ Под дорогу от Пекинки до возможной ж/д станции снесут часть авторынка, «Ефремовского рынка», еще несколько торговых построек и объектов конно-кинологической службы МВД.

❌ Застроить на лугопарке собираются не только участок Шешениных, но и Мельниковых. Как и ожидалось, стоит только начать.

❌ Снести собираются ГСК «Вышка» и «Вышка-2» ради паркингов и ДШИ.

❌ Еще несколько многоэтажек планируется у ЖК «Панорама» и рядом с «Эталоном» на повороте.

❌ Большинство запланированных соцобъектов находятся на частных землях и вряд ли появятся. Иначе бы уже появились.

❌ Главное – от зоны отдыха в парке «Дружба» ничего не останется.

Подписаться | Предложить новость

-2
-3
-4
-5