Добавить в корзинуПозвонить
Найти в Дзене

🧱 Дизайн до стройки: почему сначала мебель, потом стены

Ко мне не первый раз обращаются ещё до того, как залит фундамент. И это самый правильный подход. Почему это правильно❓ Потому что сначала мы расставляем мебель, продумываем зоны, а потом фиксируем, где должны быть окна, двери и несущие стены. 📍 Окна — если они не там, где нужно, вы теряете полезную площадь. 📍 Двери — от их расположения зависит, встанет ли ваш любимый диван или вместительная система хранения. Как это было в одном из проектов: Клиентка пришла ко мне до этапа архитектурного проектирования. Мы спланировали пространство, расставили всю необходимую семье мебель, а затем нарисовали стены, окна и дверные проёмы так, чтобы каждый сантиметр работал на комфорт. С этим планировочным решением она отправилась к архитектору — он спроектирует дом с учётом уже верных осей и проёмов. Когда стены будут возведены, мы сделаем контрольные обмеры. Если в процессе стройки что-то незначительно сместилось — скорректируем планировку. И только после этого создадим полный дизайн-проект дома

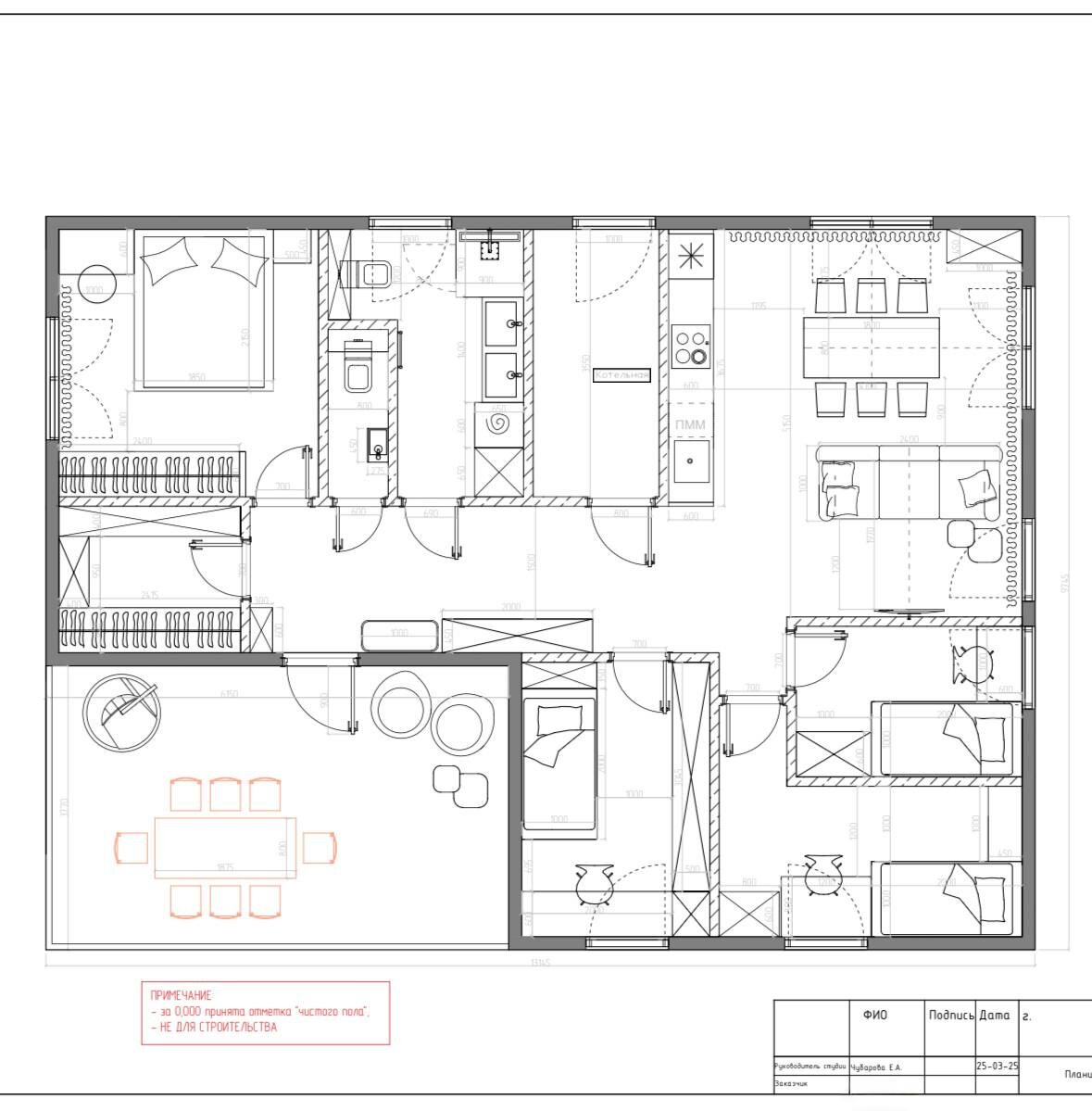
🧱 Дизайн до стройки: почему сначала мебель, потом стены

Ко мне не первый раз обращаются ещё до того, как залит фундамент. И это самый правильный подход.

Почему это правильно❓

Потому что сначала мы расставляем мебель, продумываем зоны, а потом фиксируем, где должны быть окна, двери и несущие стены.

📍 Окна — если они не там, где нужно, вы теряете полезную площадь.

📍 Двери — от их расположения зависит, встанет ли ваш любимый диван или вместительная система хранения.

Как это было в одном из проектов:

Клиентка пришла ко мне до этапа архитектурного проектирования. Мы спланировали пространство, расставили всю необходимую семье мебель, а затем нарисовали стены, окна и дверные проёмы так, чтобы каждый сантиметр работал на комфорт.

С этим планировочным решением она отправилась к архитектору — он спроектирует дом с учётом уже верных осей и проёмов.

Когда стены будут возведены, мы сделаем контрольные обмеры. Если в процессе стройки что-то незначительно сместилось — скорректируем планировку. И только после этого создадим полный дизайн-проект дома мечты.

🤍 Это путь без переделок и разочарований.

🎁Планируете строить дом?

Напишите в комментариях слово ДОМ — и я пришлю Вам чек-лист «5 шагов к комфорту и рациональному пространству».

-2
-3