Добавить в корзинуПозвонить
Найти в Дзене

Проект "Бесподобный Про Макс" 150 м2 дома с гаражом из газосиликата

Проект выполнен с корректировкой оригинального "Бесподобного" проекта. Увеличена правая сторона дома с насыщением вспомогательных помещений. Самое важное в доме с гаражом, это его связка с основным домом. Фасад с отделкой облицовочным кирпичом единым тоном и с раскладкой поштучно в плане. Крыша вальмовая с покрытием металлочерпицей. Площадка террасы может быть с маркизом.
3D Визуализация №1
3D Визуализация №1

Проект выполнен с корректировкой оригинального "Бесподобного" проекта.

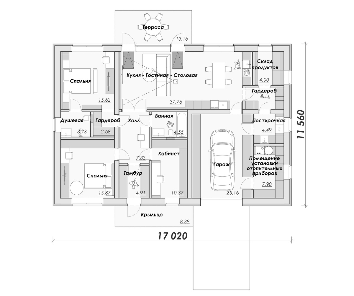
Увеличена правая сторона дома с насыщением вспомогательных помещений.

Планировка
Планировка

Самое важное в доме с гаражом, это его связка с основным домом.

3D Визуализация №2
3D Визуализация №2

Фасад с отделкой облицовочным кирпичом единым тоном и с раскладкой поштучно в плане.

3D Визуализация №3
3D Визуализация №3

Крыша вальмовая с покрытием металлочерпицей.

3D Визуализация №4
3D Визуализация №4

Площадка террасы может быть с маркизом.

3D Визуализация №5
3D Визуализация №5

Больше готовых проектов в нашем магазине на Озоне и ВБ, по ссылкам в комментариях.