Добавить в корзинуПозвонить
Найти в Дзене
ЭВАстрой

Проект индивидуального двухэтажного жилого дома с эксплуатируемой кровлей - 107-52 (П129)

Номер проекта: 107-52 (П129) Разделы проекта: Архитектурный и Конструктивный разделы Узнать о проекте больше можно на сайте evastroy.ru или по телефону +7 (495) 175-30-40 Элегантный двухэтажный коттедж от компании «Эвастрой» спроектирован в стиле хай-тек и является ярким представителем современных архитектурных тенденций. Это предложение для небольшой семьи из 3-х человек. Общая площадь дома 195 м2, габариты 11.8 x 13 м. На первом этаже расположены: На втором этаже 2 спальни (16,6 м2, 16,7 м2) и общий санузел с душем (6 м2), где также предусмотрено большое окно. Из коридора открыт выход на просторную террасу (43 м2). По отдельной наружной лестнице с террасы можно спуститься на участок. Дом выполнен в двух этажах. Строгие линии и четкие пропорции придают его образу одновременно гармонию и динамику. В отделке использовано сочетание различных по фактуре материалов. Объемное решение и конструкции подчеркнуты с помощью светлой штукатурки и более темной клинкерной плитки. У коттеджа плоская,
Оглавление
Номер проекта: 107-52 (П129)
Разделы проекта: Архитектурный и Конструктивный разделы
Узнать о проекте больше можно на сайте evastroy.ru или по телефону
+7 (495) 175-30-40
  • Общая площадь: 194.71 м2;
  • Габариты дома: 11.8 x 13 м;
  • Этажность: 2;
  • Фундамент: свайно-ростверковый с плитой перекрытий;
  • Материал стен: газобетонные блоки 400 мм;
  • Перекрытия: плоская, эксплуатируемая;
  • Крыша: плоская, эксплуатируемая;
  • Кровля: ПВХ- мембрана;
  • Фасад: штукатурка, клинкерная плитка;
  • Стиль: Хай-Тек;

Элегантный двухэтажный коттедж от компании «Эвастрой» спроектирован в стиле хай-тек и является ярким представителем современных архитектурных тенденций. Это предложение для небольшой семьи из 3-х человек. Общая площадь дома 195 м2, габариты 11.8 x 13 м.

ОСОБЕННОСТИ ПРОЕКТА:

  • 2 спальни;
  • кабинет;
  • гараж на одно авто;
  • терраса на втором этаже, со спуском на участок;
  • большие окна.
-2

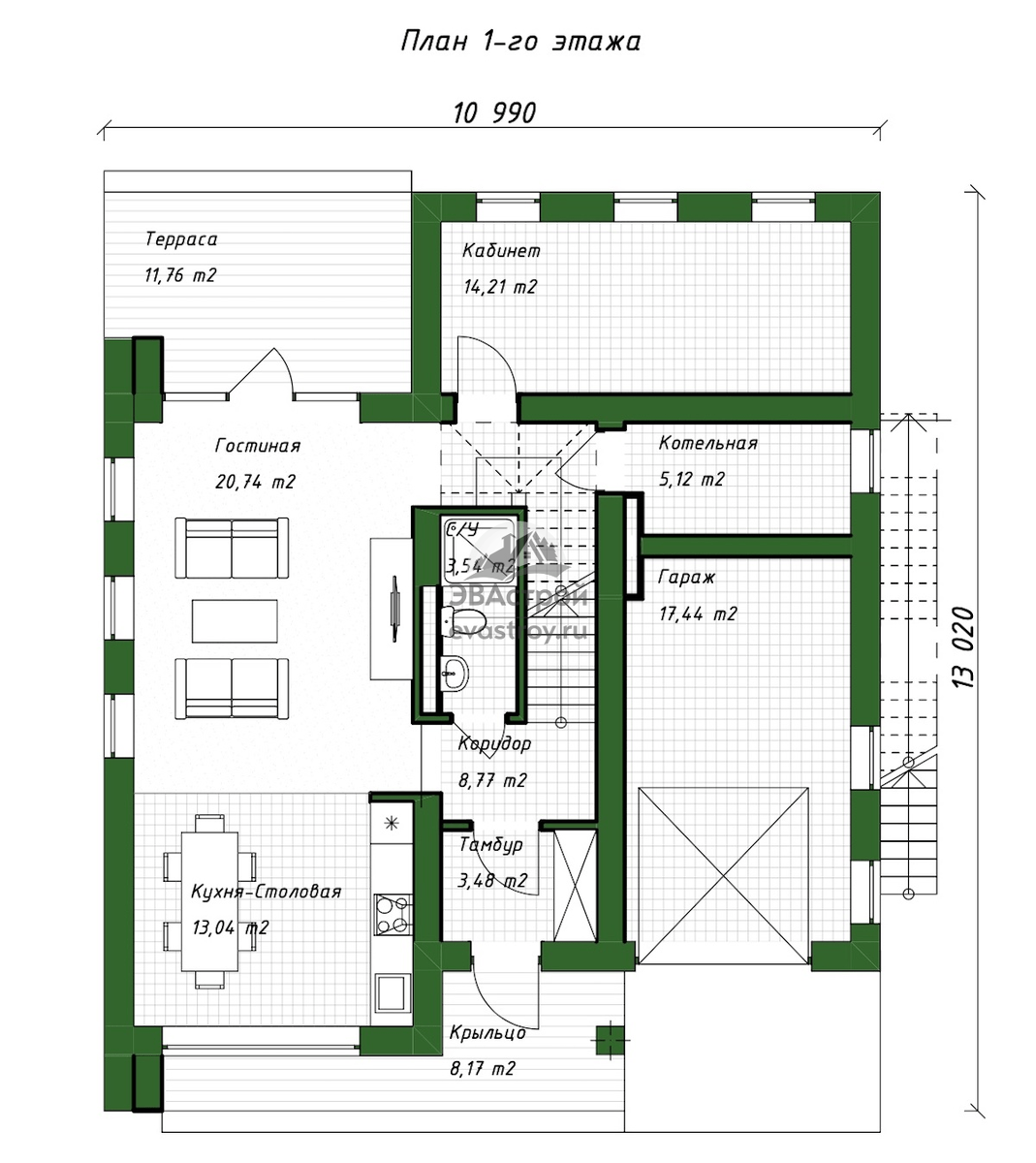
ПЛАНИРОВКА

На первом этаже расположены:

  • Гостиная (21 м2) и кухня-столовая (13 м2) в общем пространстве. Гостиная отличается обилием света и воздуха — кроме панорамного окна с выходом на террасу предусмотрено еще три вертикальных окна, открывающих вид на участок.
  • Из коридора (9 м2) начинается хорошо освещенная двухмаршевая лестница с забежной площадкой. В подмаршевом пространстве расположен санузел с душем (3,5 м2), входы в кабинет (14 м2) и котельную (5 м2). Кабинет, так же, как и гостиная, освещается тремя вертикальными окнами.
  • Гараж 17 м2 — не связан с домом; зона въезда освещается двумя окнами.
  • Тамбур 3,5 м2; справа войдет встроенный гардеробный шкаф.
-3

На втором этаже 2 спальни (16,6 м2, 16,7 м2) и общий санузел с душем (6 м2), где также предусмотрено большое окно. Из коридора открыт выход на просторную террасу (43 м2). По отдельной наружной лестнице с террасы можно спуститься на участок.

ТЕХНИЧЕСКИЕ РЕШЕНИЯ, ДИЗАЙН

Дом выполнен в двух этажах. Строгие линии и четкие пропорции придают его образу одновременно гармонию и динамику. В отделке использовано сочетание различных по фактуре материалов. Объемное решение и конструкции подчеркнуты с помощью светлой штукатурки и более темной клинкерной плитки.

У коттеджа плоская, частично эксплуатируемая крыша с ПВХ-мембраной — на ней расположена просторная терраса. Еще одна небольшая терраса предусмотрена на первом этаже. Панорамные окна перекликаются с прозрачными ограждениями, что вкупе со светлой отделкой создает легкий и воздушный образ дома.

В конструктивной части указаны стены из газобетона 400 и комбинированный свайно-ростверковый фундамент с монолитной плитой перекрытий. Крыльцо и гаражные ворота на главном фасаде. Крыльцо 8 м2, с углубленной входной частью.

Проект двухэтажного дома "107-52"

Подробнее с проектом можно ознакомиться на сайте evastroy.ru