Добавить в корзинуПозвонить
Найти в Дзене

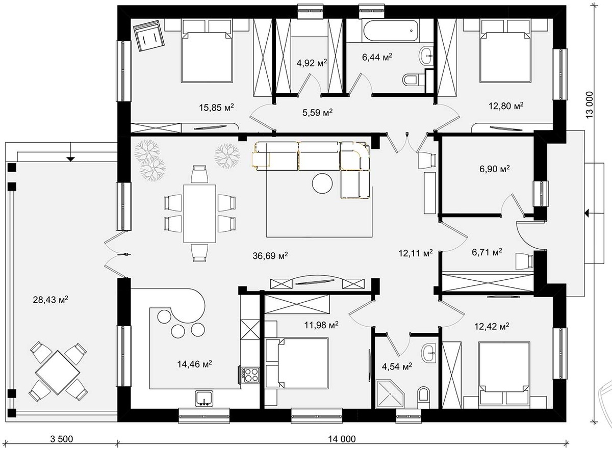
ПЕРЕВАЛ 148 м2- проект 1-этажного коттеджа с 4 спальнями, совмещенной гостиной, террасой

✅ Проект готовый, условия заказа чертежей - на основном сайте ПЕРЕВАЛ - новая версия фаворита нашего каталога, проекта дома АКСАЙ. Планировка выполнена по трёхчастной схеме деления плана. Середину плана занимают входная группа с котельной, холл и парадная гостиная с террасой. Правая и левая части - приватные, и могут планироваться по-разному в зависимости от нужд семьи. В типовой планировке справа от входа - две спальни (или спальня и кабинет), с санузлом и гардеробной. Слева - две детских или гостевых комнаты с общей душевой и кухня. Размер каждой из комнат подходит для размещения одной двуспальной или двух односпальных кроватей. ✔️ Планировка дома, несмотря на компактность и отсутствие коридоров, обеспечивает правильное функциональное зонирование помещений и комфортное безконфликтное пребывание всех жильцов. ✔️ Узнать актуальную стоимость документации, заказать проект можно на страничке проекта дома на сайте бюро ИНВАПОЛИС. Проект разработан в составе "Паспорт + строительный раздел"
Оглавление

✅ Проект готовый, условия заказа чертежей - на основном сайте

ПЕРЕВАЛ - новая версия фаворита нашего каталога, проекта дома АКСАЙ.

ПЛАН И ВНУТРЕННЕЕ ПРОСТРАНСТВО

Планировка выполнена по трёхчастной схеме деления плана.

Середину плана занимают входная группа с котельной, холл и парадная гостиная с террасой. Правая и левая части - приватные, и могут планироваться по-разному в зависимости от нужд семьи.

В типовой планировке справа от входа - две спальни (или спальня и кабинет), с санузлом и гардеробной. Слева - две детских или гостевых комнаты с общей душевой и кухня. Размер каждой из комнат подходит для размещения одной двуспальной или двух односпальных кроватей.

-2

✔️ Планировка дома, несмотря на компактность и отсутствие коридоров, обеспечивает правильное функциональное зонирование помещений и комфортное безконфликтное пребывание всех жильцов.

КОНСТРУКТИВНЫЕ ОСОБЕННОСТИ

  • Фундаменты монолитные ленточные до глубины промерзания грунта.
  • Перекрытие - пустотные плиты.
  • Наружные стены из газобетона с отделкой штукатуркой или клинкерной плиткой, несущие колонны кирпичные.
  • Перегородки из пазогребневых плит или гипсокартона толщиной 80 мм.
  • Чердачное перекрытие тёплое деревянное.
  • Кровля четырехскатная с фронтонами над выходами, спереди и сзади, по деревянным балкам и стропилам. Чердак холодный.

✔️ Узнать актуальную стоимость документации, заказать проект можно на страничке проекта дома на сайте бюро ИНВАПОЛИС. Проект разработан в составе "Паспорт + строительный раздел"

👇👇 Другие похожие проекты можно найти в подборке 👇👇

Проекты больших одноэтажников простой формы | Инваполис - проекты рациональных домов | Дзен

► Чтобы не пропускать публикации, реагируйте лайком 👍 и подписывайтесь на канал, комментируйте, тогда нейросети будут показывать нас вам чаще :)

► Получать обзоры наших проектов и следить за новостями и можно также в ВК,  ТЕЛЕГРАММ-КАНАЛЕ  или МАКСе ИНВАПОЛИС