Добавить в корзинуПозвонить
Найти в Дзене
ЭВАстрой

Проект дома для узкого участка - 107-78 (П127)

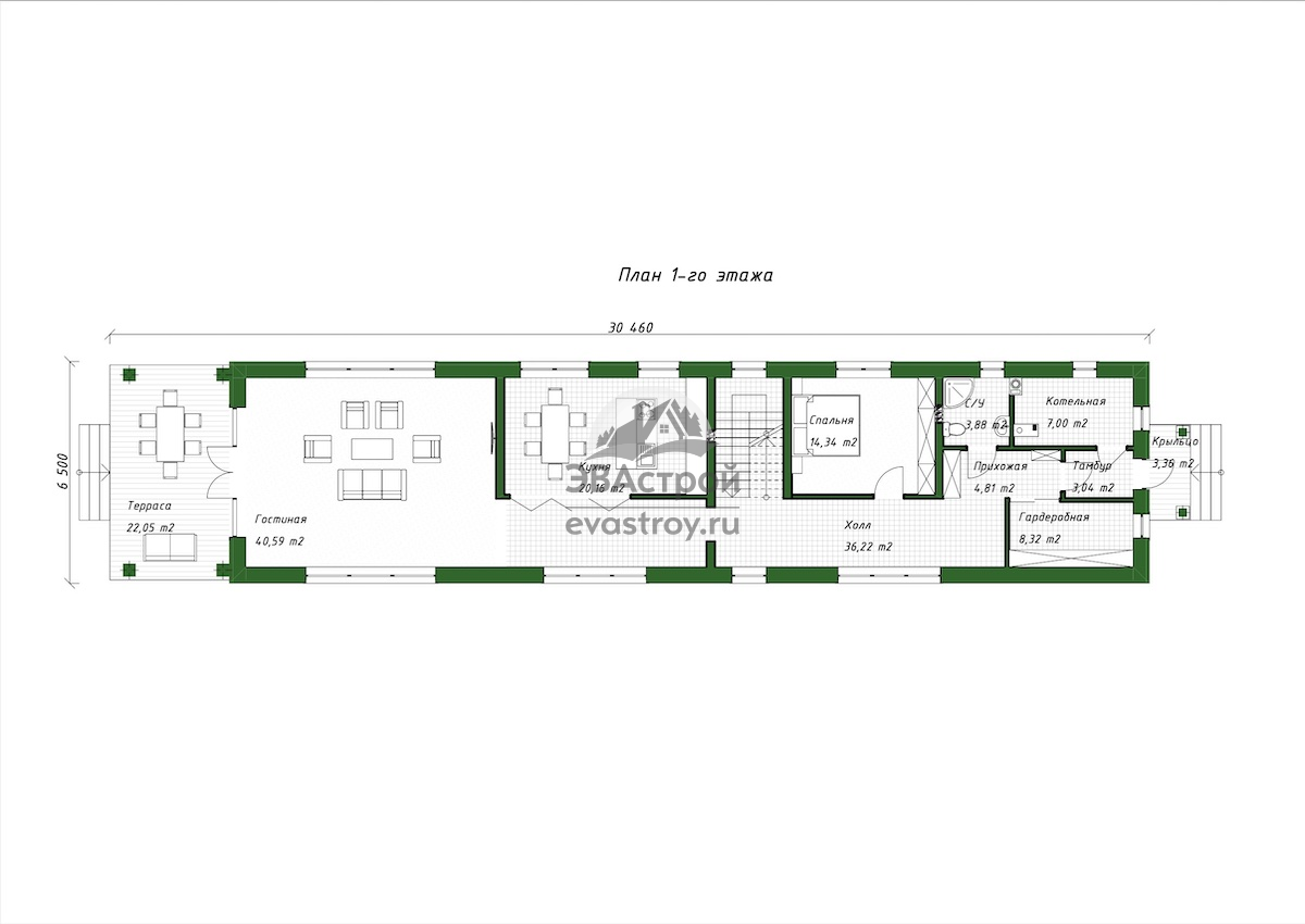
Номер проекта: 107-78 (П127) Разделы проекта: Архитектурный и Конструктивный разделы Узнать о проекте больше можно на сайте evastroy.ru или по телефону +7 (495) 175-30-40 Предлагаем проект узкого двухэтажного дома на два жилых этажа. Он выполнен в европейской стилистике и представляет собой отличное сочетание оригинальности и функциональности за счет использования самых современных архитектурных решений. Внутри запроектировано пять спален, большая гостиная, кухня, два совмещенных санузла и две общие гардеробные. Для отопления дома предусмотрена котельная. Общая площадь 290 м2. Первый этаж вместил гостиную с выходом на террасу, кухню с обеденной зоной, спальню. У входа расположился тамбур с доступом в котельную и прихожая, откуда можно попасть в гардеробную и санузел. В санузле предполагается установка душевой кабины. На обоих этажах длинные освещенные холлы, которые тянутся вдоль одной из стен, а вдоль второй стены и у торцов располагаются жилые и хозяйственные комнаты. На втором этаже
Оглавление
Номер проекта: 107-78 (П127)
Разделы проекта: Архитектурный и Конструктивный разделы
Узнать о проекте больше можно на сайте evastroy.ru или по телефону
+7 (495) 175-30-40
  • Общая площадь: 290 м2;
  • Габариты дома: 6.5 x 31.66 м;
  • Этажность: 2;
  • Фундамент: монолитная ж/б плита- 300 мм с ростверком;
  • Материал стен: поризованный керамический блок 380 мм;
  • Перекрытия: монолитное ж/б-200 мм;
  • Крыша: двухскатная;
  • Кровля: мягкая черепица;
  • Фасад: наружная отделка: клинкерная плитка; цоколь: клинкерная плитка;
  • Стиль: европейский.

Предлагаем проект узкого двухэтажного дома на два жилых этажа. Он выполнен в европейской стилистике и представляет собой отличное сочетание оригинальности и функциональности за счет использования самых современных архитектурных решений.

Внутри запроектировано пять спален, большая гостиная, кухня, два совмещенных санузла и две общие гардеробные. Для отопления дома предусмотрена котельная. Общая площадь 290 м2.

-2

ПЛАНИРОВКА

Первый этаж вместил гостиную с выходом на террасу, кухню с обеденной зоной, спальню. У входа расположился тамбур с доступом в котельную и прихожая, откуда можно попасть в гардеробную и санузел. В санузле предполагается установка душевой кабины.

На обоих этажах длинные освещенные холлы, которые тянутся вдоль одной из стен, а вдоль второй стены и у торцов располагаются жилые и хозяйственные комнаты.

-3

На втором этаже, кроме холла, четыре спальни, еще одна гардеробная и санузел, рассчитанный под установку ванны. Торцевые комнаты освещены широкими окнами. Спальни площадью от 14 м2 до 24 м2, в планировку двух комнат входят угловые рабочие столы.

Проект идеально подойдет для реализации на вытянутом участке.

ОСОБЕННОСТИ ПРОЕКТА

  • Сильно вытянутый корпус, его ширина всего 6.5 м, а длина составляет 31.66 м.
  • В качестве места отдыха предложена крытая терраса — она прилегает к гостиной и позволяет с комфортом разместиться всей семье и гостям. Оформлена терраса в одном стиле с основным зданием.
  • В доме имеется два отдельных входа. Это способствует безопасному проживанию большой семьи в данном коттедже, обеспечивает удобный и быстрый выход на улицу в случае непредвиденных ситуаций, что является важным условием для загородного дома.

ТЕХНИЧЕСКИЕ РЕШЕНИЯ, ДИЗАЙН

Для возведения здания используется поризованный керамический блок 380, монолитно-ростверковый фундамент с толщиной плиты 300 мм и монолитные перекрытия 200 мм. Для наружной отделки выбрана клинкерная плитка, которая не требует особого ухода, а фасад долго не теряет своего великолепия и блеска. Дизайн выполнен в двух цветах, с основным молочно-белым фоном и темно-серой отделкой. Входное крыльцо и террасу авторы проекта поместили на противоположных узких сторонах.

Проект двухэтажного дома "107-78"

Подробнее с проектом можно ознакомиться на сайте evastroy.ru