Добавить в корзинуПозвонить
Найти в Дзене
ЭВАстрой

Проект одноэтажного дома из арболита - 107-46 (П123)

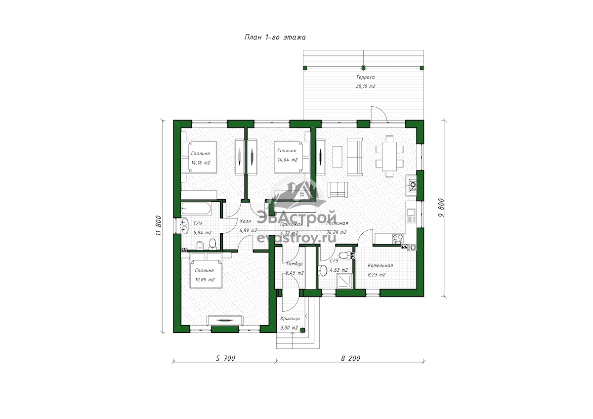
Номер проекта: 107-46 (П123) Разделы проекта: Архитектурный и Конструктивный разделы Узнать о проекте больше можно на сайте evastroy.ru или по телефону +7 (495) 175-30-40 Практичный одноэтажный дом для четырех человек. Коттедж выполнен в европейском стиле. Подходит для постоянного проживания. Общая площадь 143 м2. Состав: 3 спальни, гостиная с кухонной зоной, 2 санузла, котельная, тамбур, прихожая, холл. Достоинства проекта: экономичная технология строительства; предусмотрены только самые необходимые помещения; нет лишних и редко используемых площадей; крытая терраса для отдыха; отдельное помещение котельной. Через двойную дверь проходим в тамбур, размер которого (5,45 м2) позволяет использовать его для хранения вещей. Дополнительный шкаф можно установить в прихожей. Справа от тамбура санузел и котельная, где можно установить стиральную машину. На 36 м2 гостиной разместилась компактная угловая кухня, обеденная группа с выходом на террасу, камин и ТВ-зона с мягкой мебелью. Приватную час
Номер проекта: 107-46 (П123)
Разделы проекта: Архитектурный и Конструктивный разделы
Узнать о проекте больше можно на сайте evastroy.ru или по телефону
+7 (495) 175-30-40
  • Общая площадь: 143.34 м2;
  • Габариты дома: 13.9 x 14.4 м;
  • Этажность: 1;
  • Фундамент: фундаментная ж/б плита 250 мм;
  • Материал стен: арболит;
  • Перекрытия: по деревянным балкам;
  • Крыша: двухскатная;
  • Кровля: ондулин.;
  • Фасад: декоративная штукатурка с покраской; цоколь: декоративный камень;
  • Стиль: европейский.

Практичный одноэтажный дом для четырех человек. Коттедж выполнен в европейском стиле. Подходит для постоянного проживания. Общая площадь 143 м2. Состав: 3 спальни, гостиная с кухонной зоной, 2 санузла, котельная, тамбур, прихожая, холл. Достоинства проекта: экономичная технология строительства; предусмотрены только самые необходимые помещения; нет лишних и редко используемых площадей; крытая терраса для отдыха; отдельное помещение котельной.

-2

Через двойную дверь проходим в тамбур, размер которого (5,45 м2) позволяет использовать его для хранения вещей. Дополнительный шкаф можно установить в прихожей. Справа от тамбура санузел и котельная, где можно установить стиральную машину. На 36 м2 гостиной разместилась компактная угловая кухня, обеденная группа с выходом на террасу, камин и ТВ-зона с мягкой мебелью. Приватную часть дома предваряет отдельный холл. Отсюда расходятся двери в главную и две смежные спальни, а также в общий санузел.

Характерные черты экстерьера — широкий, почти квадратный корпус (13.9 x 14.4 м) и пологая двускатная крыша. Дизайн выдержан в сдержанных серо-белых тонах. Основной фон фасадов сформирован светло-серой штукатуркой, с которой гармонирует пестро-серый декоративный камень цоколя. Более нарядным дом выглядит благодаря ярко-белому декору, а это: подшивы крыши, опоры крыльца и террасы, оконные профили, дверное полотно и «изюминка» дизайна — уютные оконные ставни. Входную зону образует компактное крытое крыльцо с угловыми ступенями. Сбоку оно защищено выступом стены. Экономичность проекта достигается использованием современных материалов и технологий. В частности, это: Арболит (деревобетон). Легкий, исключительно теплый материал на 90% состоит из дерева, устойчив к микробам, грибкам и плесени, долго не загорается и доступен по цене. Ондулин (еврошифер) — долговечный и простой в укладке, при этом намного легче традиционного шифера. Надежный плитный фундамент толщиной 250 мм; Перекрытия по деревянным балкам.

Проект одноэтажного дома "107-46"

Подробнее с проектом можно ознакомиться на сайте evastroy.ru