Добавить в корзинуПозвонить
Найти в Дзене
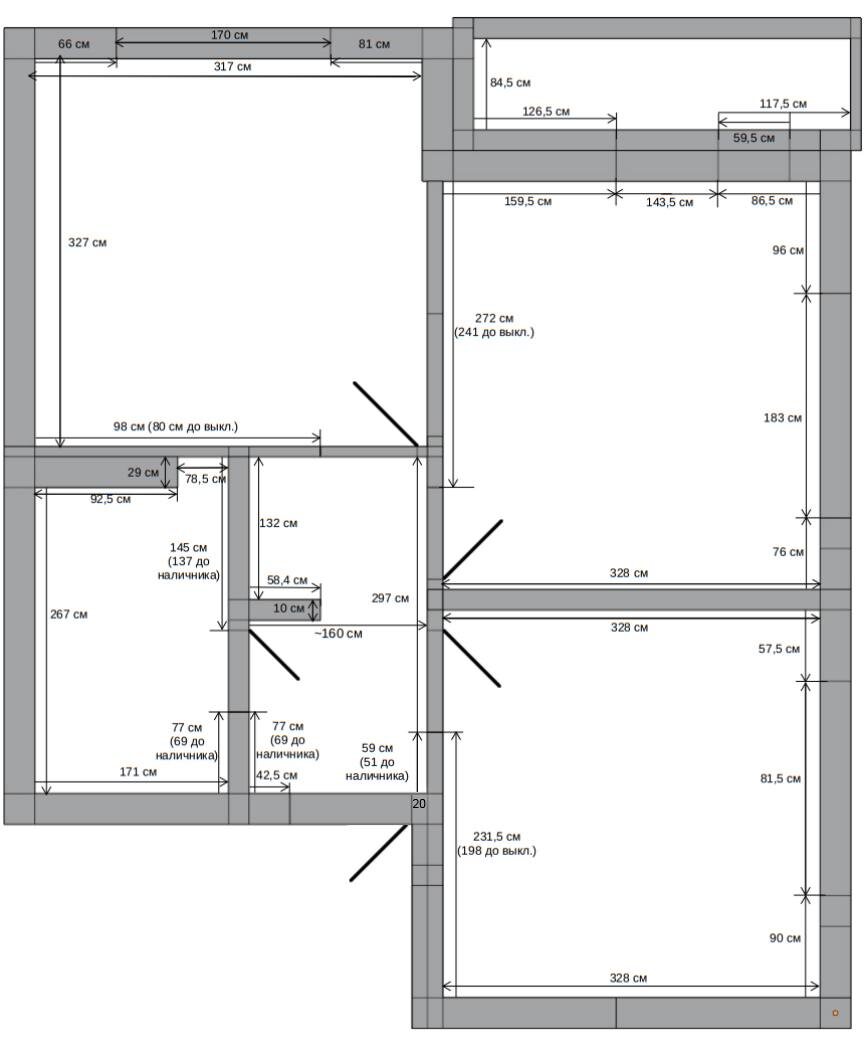
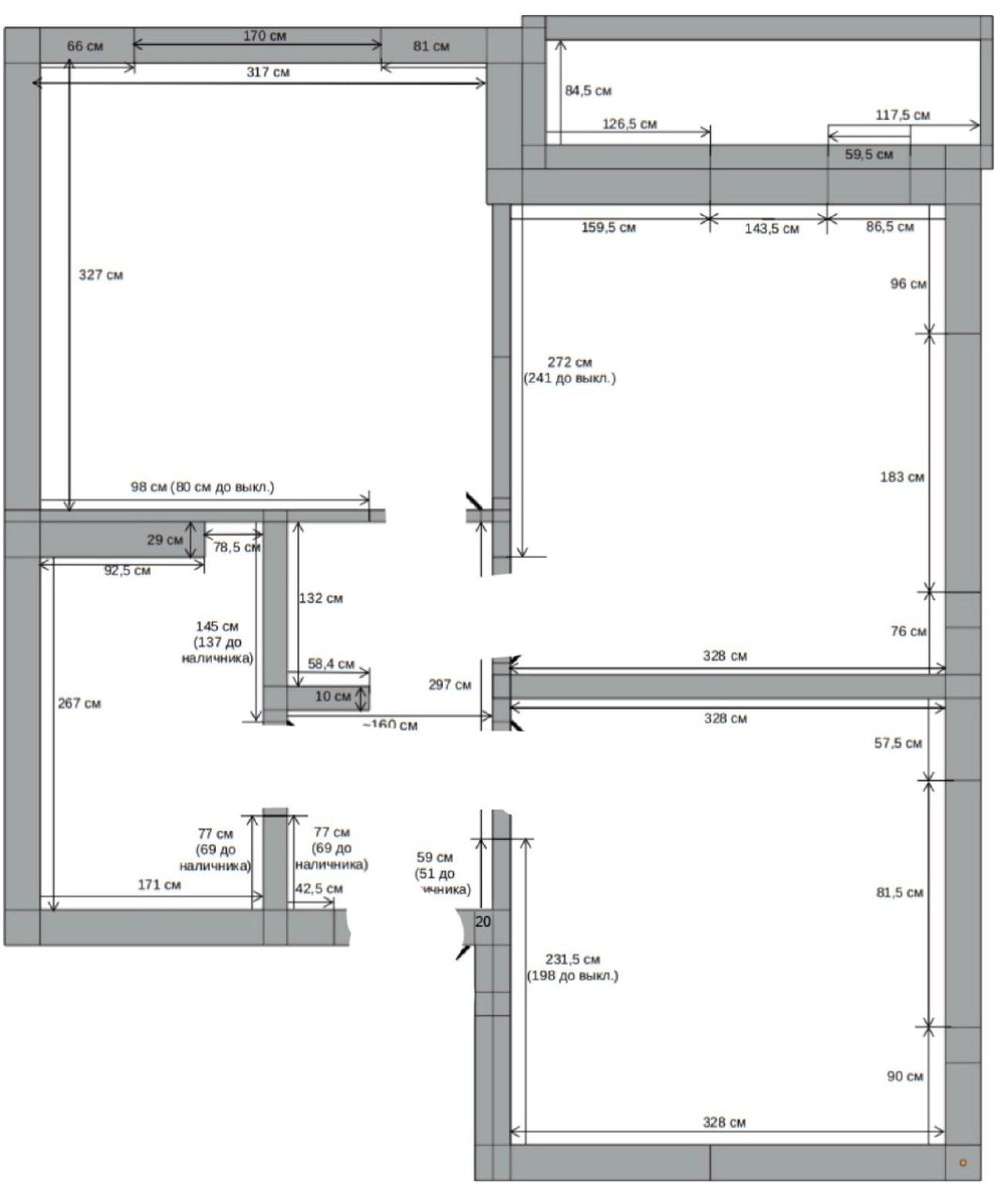
План Нехорошковой

Как вам идея вместе помозгоштурмить на тему этой планировки

? ТЗ на планировку для пары, квартира около 45 м² Молодая пара, 26 лет, без детей, но с прицелом на будущее. Квартира для жизни на несколько лет, не под перепродажу. Возможно, будет жить мопс. Главная задача — сделать уютное, светлое, спокойное и незахламленное пространство, где у каждого будет свое личное место, но при этом сохранится комфортная общая жизнь вдвоем. Нужно предусмотреть: — изолированную спальню с двуспальной кроватью — общее пространство для отдыха, фильмов и приема гостей — полноценное рабочее место для молодого человека, желательно не в спальне — личный уголок для девушки: место для чтения, уединения, ухода за собой, желательно с туалетным столиком — удобную отдельную кухню с хорошей рабочей поверхностью, обеденным столом и всей основной техникой — санузел с ванной, стиральной машиной и продуманным хранением — много закрытого хранения: одежда, обувь, сезонные вещи, бытовая химия, чемодан, гладильная доска, сушилка, пылесос и другое Что особенно важно: — не любя

Как вам идея вместе помозгоштурмить на тему этой планировки?

ТЗ на планировку для пары, квартира около 45 м²

Молодая пара, 26 лет, без детей, но с прицелом на будущее. Квартира для жизни на несколько лет, не под перепродажу. Возможно, будет жить мопс.

Главная задача — сделать уютное, светлое, спокойное и незахламленное пространство, где у каждого будет свое личное место, но при этом сохранится комфортная общая жизнь вдвоем.

Нужно предусмотреть:

— изолированную спальню с двуспальной кроватью

— общее пространство для отдыха, фильмов и приема гостей

— полноценное рабочее место для молодого человека, желательно не в спальне

— личный уголок для девушки: место для чтения, уединения, ухода за собой, желательно с туалетным столиком

— удобную отдельную кухню с хорошей рабочей поверхностью, обеденным столом и всей основной техникой

— санузел с ванной, стиральной машиной и продуманным хранением

— много закрытого хранения: одежда, обувь, сезонные вещи, бытовая химия, чемодан, гладильная доска, сушилка, пылесос и другое

Что особенно важно:

— не любят тесные, темные и перегруженные пространства

— хотят меньше визуального шума

— важен мягкий, комфортный свет

— молодой человек не любит белые интерьеры

— сейчас не хватает порядка, хранения, личного пространства и удобного сценария жизни

Итоговая цель: на небольшой площади собрать спальню, общую зону, рабочее место, личный уголок, удобную кухню и максимум хранения без ощущения тесноты.

-2