Добавить в корзинуПозвонить
Найти в Дзене

"Солнечная Калифорния" - кухня + закрытая веранда.

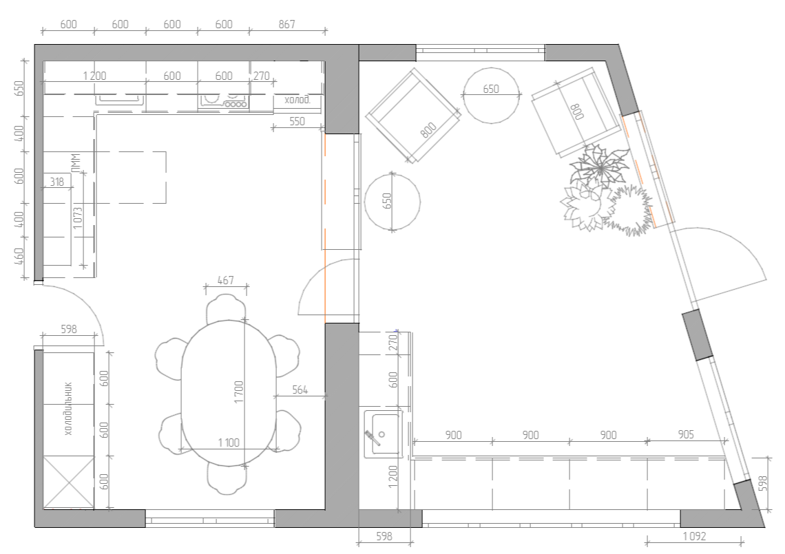
История у этого проекта непростая... Коллажи были созданы совсем для другого заказчика, но там что-то пошло не так - договора не случилось. Но мне очень хотелось, чтобы эта идея воплотилась в жизнь. История хозяйки этой кухни тоже непростая - построили с мужем дом, сделали красивый ремонт в неоклассическом стиле, но формат парадной кухни-гостиной хозяйке не подошел - не может она в ней полноценно расслабиться, остаться наедине с кулинарией и с собой: в гостиной всегда много народу (живут большой семьей: заказчица, ее муж, и семья дочери с 2-мя внуками). Плюс выходить с кухни-гостиной в огород за овощами и зеленью было неудобно. Для комфорта супруги, муж сделал пристройку к дому необычной формы - дверь веранды выходит на огород и теплицы. Раньше на месте пристройки было место отдыха хозяйки от работ в саду - кресла + столик, к ним уже вела пошаговая дорожка. Расположение дорожки решили не менять, поэтому пристройка получила такую необычную форму. Заказчица просила стиль ретро, яркие, со

История у этого проекта непростая... Коллажи были созданы совсем для другого заказчика, но там что-то пошло не так - договора не случилось. Но мне очень хотелось, чтобы эта идея воплотилась в жизнь.

История хозяйки этой кухни тоже непростая - построили с мужем дом, сделали красивый ремонт в неоклассическом стиле, но формат парадной кухни-гостиной хозяйке не подошел - не может она в ней полноценно расслабиться, остаться наедине с кулинарией и с собой: в гостиной всегда много народу (живут большой семьей: заказчица, ее муж, и семья дочери с 2-мя внуками). Плюс выходить с кухни-гостиной в огород за овощами и зеленью было неудобно.

Для комфорта супруги, муж сделал пристройку к дому необычной формы - дверь веранды выходит на огород и теплицы. Раньше на месте пристройки было место отдыха хозяйки от работ в саду - кресла + столик, к ним уже вела пошаговая дорожка. Расположение дорожки решили не менять, поэтому пристройка получила такую необычную форму.

Заказчица просила стиль ретро, яркие, солнечные цвета, ощущение южных краев. Показала ей коллажи, сделанные ранее - концепция была утверждена без правок.

На веранде предусмотрено место для рассады и пересадки растений без задействования зоны кухни (чтобы землей ничего не пачкать). В холодное время года веранда используется как зимний сад - в ней зимуют сортовые герани, миниатюрные розы и суккуленты (в летнее время эти растения обитают в кашпо в саду). Отапливаются помещения теплыми полами, на веранде в зимнее время температура поддерживается не выше 18 градусов - зимующие в ней растения требуют периода покоя.

На кухне расположили 2 холодильника: один side-by-side (в колонне), рядом с ним хозяйственный шкаф, в нем предусмотрена полка и розетка под микроволновую печь. Маленький ретро холодильник служит для хранения овощей и фруктов, в нем же хозяйка размораживает (оставляет на ночь) мясные и рыбные продукты. Столешницу оставили максимально свободной - на ней еще будут стоять тостер и подставка для ножей.

На рендерах можно увидеть розетки и светильники - когда заказчик заказывает сразу полный проект, электрику я отражаю в нем сразу.

Интерьер, имея достаточно спокойную базу, смотрится ярким за счет акцентного цвета - в будущем его легко можно будет поменять, если надоест. На фото ниже на веранде смоделирован закатный свет.

-5