Добавить в корзинуПозвонить
Найти в Дзене
ЭВАстрой

Проект двухэтажный жилого дома - 107-54 (П121)

Номер проекта: 107-54 (П121) Разделы проекта: Архитектурный и Конструктивный разделы Узнать о проекте больше можно на сайте evastroy.ru или по телефону +7 (495) 175-30-40 Прекрасное решение для загородной жизни — двухэтажный коттедж с четырьмя спальнями, выполненный в европейском стиле, общей площадью 235 м2. При реализации проекта одновременно с жилым корпусом возводятся: Таким образом, вы сразу получаете дом, парковочное место и места для отдыха. Подобное комплексное строительство выгодно тем, что сразу закрывает основные потребности семьи, и позволяет избежать долгостроя, В доме может проживать пять человек. Здание реализуется из газобетонных блоков 400, на плитно-монолитном фундаменте 300 мм, с монолитным ж/б перекрытием 200 мм. Наружная облицовка — кладка из светлого кирпича: одновременно с основной облицовкой выкладывается кирпичный рустовый узор на углах и вокруг окон. На плане дом прямоугольный, без выступов и углов. Крыша четырехскатная, шатровая, покрыта металлочерепицей. В ц
Оглавление
Номер проекта: 107-54 (П121)
Разделы проекта: Архитектурный и Конструктивный разделы
Узнать о проекте больше можно на сайте evastroy.ru или по телефону
+7 (495) 175-30-40
  • Общая площадь: 235.26 м2;
  • Габариты дома: 18.6 x 13.3 м;
  • Этажность: 2;
  • Фундамент: фундаментная ж/б плита 300 мм;
  • Материал стен: газобетонные блоки 400 мм;
  • Перекрытия: монолитное ж/б -200 мм;
  • Крыша: вальмовая, четырехскатная;
  • Кровля: металлочерепица;
  • Фасад: облицовочный кирпич; цоколь: декоративный камень;
  • Стиль: европейский.

Прекрасное решение для загородной жизни — двухэтажный коттедж с четырьмя спальнями, выполненный в европейском стиле, общей площадью 235 м2. При реализации проекта одновременно с жилым корпусом возводятся:

  • Пристроенный гараж (37 м2);
  • Остекленная веранда (10 м2);
  • Крытая терраса (10,5 м2).

Таким образом, вы сразу получаете дом, парковочное место и места для отдыха. Подобное комплексное строительство выгодно тем, что сразу закрывает основные потребности семьи, и позволяет избежать долгостроя,

-2

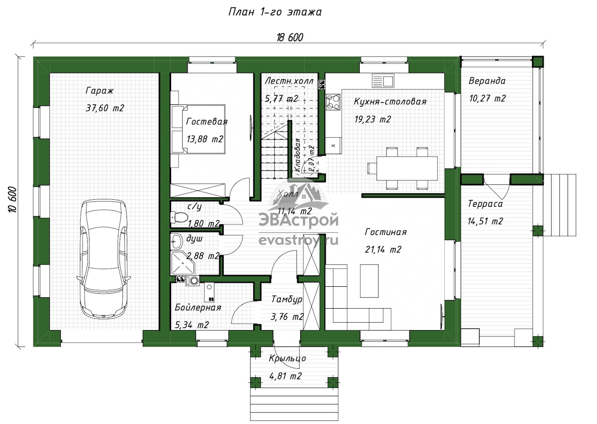
НА ПЕРВОМ ЭТАЖЕ:

  • Гостиная (21 м2) и кухня-столовая (19 м2) разделены короткой перегородкой, от которой при желании можно отказаться.
  • Гостевая спальня (14 м2) — уютная, удобная комната, расположена рядом с санитарными помещениями;
  • Раздельный санузел — состоит из туалета (2 м2) и душевой (3 м2);
  • Лестничный холл (6 м2). Пространство под верхним маршем занимает кухонная кладовка;
  • Бойлерная (5 м2) — сблокирована с санузлами, имеет выход в тамбур. Из бойлерной можно сделать выход в гараж; таким образом, отопительный блок станет связующим помещением между автостоянкой и домом;
  • Гараж отделен от дома глухой стеной; освещается тремя окнами. В нем свободно поместится автомобиль и мелкая техника; либо в задней части гаража можно устроить мастерскую.
  • Тамбур (4 м2) с гардеробным шкафом;
  • Центральный холл (14 м2) — объединяет все помещения. У входа можно поставить еще один шкаф.
  • 3 спальни — родительская (21 м2) и две детские (19 м2, (15 м2);
  • ванная с окном (13 м2); здесь удобно разместить стиральную машину;
  • гардеробная 5 м2.
-3

НА ВТОРОМ ЭТАЖЕ:

В доме может проживать пять человек.

ТЕХНИЧЕСКИЕ АСПЕКТЫ, ДИЗАЙН

Здание реализуется из газобетонных блоков 400, на плитно-монолитном фундаменте 300 мм, с монолитным ж/б перекрытием 200 мм. Наружная облицовка — кладка из светлого кирпича: одновременно с основной облицовкой выкладывается кирпичный рустовый узор на углах и вокруг окон. На плане дом прямоугольный, без выступов и углов. Крыша четырехскатная, шатровая, покрыта металлочерепицей. В центре главного фасада находится крыльцо со своей крышей, с левой стороны расположен гараж (въезд со стороны главного фасада); веранда и терраса размещены справа под общей крышей.

Проект двухэтажного дома с гаражом "107-54"

Подробнее с проектом можно ознакомиться на сайте evastroy.ru