Добавить в корзинуПозвонить
Найти в Дзене
ЭВАстрой

Проект индивидуального одноэтажного жилого дома - 107-57 (П111)

Номер проекта: 107-57 (П111) Разделы проекта: Архитектурный и Конструктивный разделы Узнать о проекте больше можно на сайте evastroy.ru или по телефону +7 (495) 175-30-40 Одноэтажный дом с тремя спальнями, общей площадью 139 м2, выполнен в европейском стиле. Среди его плюсов: С крыльца заходим в просторную прихожую (10 м2); справа предусмотрен шкаф во всю стену, слева — шкаф поменьше; в пространстве у двери можно расположить обувной пуфик, подставку для зонтов и пр. Рядом с прихожей — котельная (5.4 м2) и кладовая (4 м2) в одном помещении. Гостиная (28,5 м2) и кухня (15 м2) также находятся в общем зале, с единым входом из коридора и дверью на террасу. Кроме мастер-спальни (12,5 м2) предусмотрено еще две комнаты, площадью 14 м2, и общий санузел. Одна из этих спален обособлена от других. Дом подходит для семьи с двумя детьми; есть все необходимое — спальни, общая зона, места хранения, терраса, котельная для отопления в холодный сезон. Также это неплохой вариант для дачи. Тип фундамента —
Номер проекта: 107-57 (П111)
Разделы проекта: Архитектурный и Конструктивный разделы
Узнать о проекте больше можно на сайте evastroy.ru или по телефону
+7 (495) 175-30-40
  • Общая площадь: 139 м2;
  • Габариты дома: 17.23 x 11.75 м;
  • Этажность: 1;
  • Фундамент: мелкозаглубленный ленточный фундамент с монолитным перекрытием 180 мм;
  • Материал стен: газобетонные блоки 300 мм;
  • Перекрытия: по деревянным балкам - 200 мм;
  • Крыша: вальмовая, четырехскатная;
  • Кровля: мягкая кровля;
  • Фасад: панели ПВХ, планкен;
  • Стиль: европейский.

Одноэтажный дом с тремя спальнями, общей площадью 139 м2, выполнен в европейском стиле. Среди его плюсов:

  • Простая конструкция — на плане здание прямоугольное со сторонами 14,65 х 10,85; габариты с крыльцом и террасой — 17.23 x 11.75 м;
  • Отсутствие лестницы — удобно для передвижения и позволяет сэкономить место;
  • Мастер-спальня — комната родителей, оснащенная санузлом и гардеробной;
  • Небольшая крытая терраса (10 м2).
-2

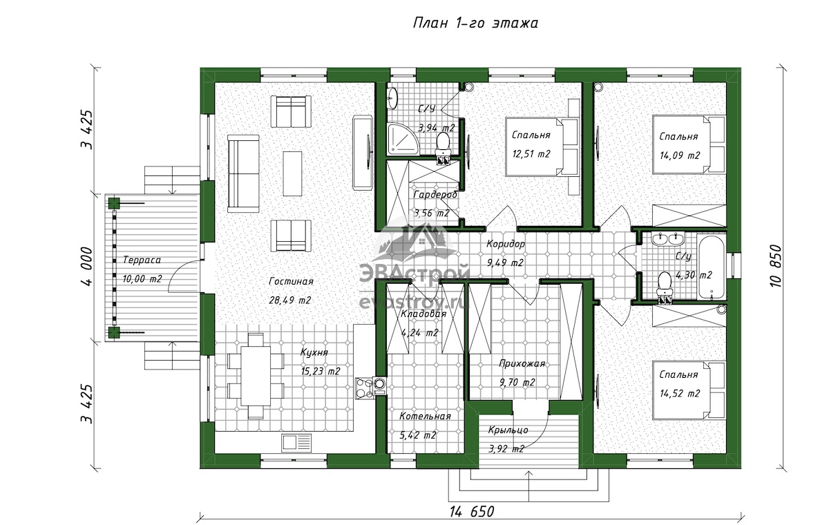
С крыльца заходим в просторную прихожую (10 м2); справа предусмотрен шкаф во всю стену, слева — шкаф поменьше; в пространстве у двери можно расположить обувной пуфик, подставку для зонтов и пр.

Рядом с прихожей — котельная (5.4 м2) и кладовая (4 м2) в одном помещении. Гостиная (28,5 м2) и кухня (15 м2) также находятся в общем зале, с единым входом из коридора и дверью на террасу.

Кроме мастер-спальни (12,5 м2) предусмотрено еще две комнаты, площадью 14 м2, и общий санузел. Одна из этих спален обособлена от других.

Дом подходит для семьи с двумя детьми; есть все необходимое — спальни, общая зона, места хранения, терраса, котельная для отопления в холодный сезон. Также это неплохой вариант для дачи.

ТЕХНИЧЕСКИЕ РЕШЕНИЯ, ДИЗАЙН

Тип фундамента — мелкозаглубленная лента с монолитным перекрытием 180 см. Преимущества такого гибридного фундамента — вы получаете плюсы и ленты и монолита; дополнительная устойчивость основания; усиление периметра под несущими стенами и, как следствие, снижение нагрузки на плиту. Для стен берутся газобетонные блоки 300, для перекрытий — деревянные балки сечением 200 мм. Венчает здание четырехскатная вальмовая крыша с мягкой кровлей.

Снаружи дом отделан: снизу на 2/3 — ПВХ-панелями, сверху — планкеном. Цветовое решение — приглушенное, неяркое, доминируют бежевые, серые, светло-коричневые тона; кровля и водостоки выделены темно-коричневым цветом. Фасады равномерно остеклены, кроме правого, куда выходит единственное окно санузла. Невысокое углубленное крыльцо (4 м2) находится на главном фасаде. Терраса с двусторонними ступенями примыкает к боковой стороне дома.

Проект одноэтажного дома "107-57"

Подробнее с проектом можно ознакомиться на сайте evastroy.ru