Π”ΠΎΠ±Π°Π²ΠΈΡ‚ΡŒ Π² ΠΊΠΎΡ€Π·ΠΈΠ½ΡƒΠŸΠΎΠ·Π²ΠΎΠ½ΠΈΡ‚ΡŒ
Найти Π² Π”Π·Π΅Π½Π΅
Ай Π΄Π° ΠΏΡ€Π΅ΠΏΠΎΠ΄!

πŸ˜ŽΠœΡƒΠΆΡ‡ΠΈΠ½Π° сгСнСрировал сСбС ΡˆΠΊΠ°Ρ„ Π² нСйросСти

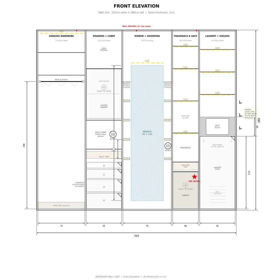
Π‘ΡƒΠΊΠ²Π°Π»ΡŒΠ½ΠΎ. Описал Claude количСство ящиков, ΠΏΠΎΠ»ΠΎΠΊ, Π³Π°Π±Π°Ρ€ΠΈΡ‚Ρ‹, отсСки для ΠΏΠ°Ρ€Ρ„ΡŽΠΌΠ΅Ρ€ΠΈΠΈ, располоТСниС Π·Π΅Ρ€ΠΊΠ°Π». Claude Π²Ρ‹Π΄Π°Π» 1400 строк ΠΊΠΎΠ΄Π° Π½Π° Python, ΠΈΠ· ΠΊΠΎΡ‚ΠΎΡ€Ρ‹Ρ… собрался Π³ΠΎΡ‚ΠΎΠ²Ρ‹ΠΉ Ρ‡Π΅Ρ€Ρ‚Ρ‘ΠΆ Π² PDF. PDF ΠΎΡ‚ΠΏΡ€Π°Π²ΠΈΠ»ΠΈ Π½Π° ΠΌΠ΅Π±Π΅Π»ΡŒΠ½ΡƒΡŽ Ρ„Π°Π±Ρ€ΠΈΠΊΡƒ β€” ΠΏΠΎΠ»ΡƒΡ‡ΠΈΠ»ΠΈ Π³ΠΎΡ‚ΠΎΠ²Ρ‹ΠΉ ΡˆΠΊΠ°Ρ„, Ρ‚ΠΎΡ‡ΡŒ-Π²-Ρ‚ΠΎΡ‡ΡŒ ΠΊΠ°ΠΊ Π² Π΄ΠΎΠΊΡƒΠΌΠ΅Π½Ρ‚Π΅. Как это Π²ΠΎΠΎΠ±Ρ‰Π΅ Π½Π°Π·Ρ‹Π²Π°Ρ‚ΡŒ? Π’Π°ΠΉΠ±-мСбСль? ΠŸΡ€ΠΎΠΌΠΏΡ‚-ΠΈΠ½Ρ‚Π΅Ρ€ΡŒΠ΅Ρ€? Π˜Π½Ρ‚Π΅Ρ€Π΅ΡΠ½ΠΎΠ΅ Ρ€Π΅ΡˆΠ΅Π½ΠΈΠ΅? ΠŸΠΈΡˆΠΈΡ‚Π΅ Π² коммСнтариях. Π‘Π΅Ρ€Π΅ΠΌ Ρ€Π΅ΡˆΠ΅Π½ΠΈΠ΅ Π² Ρ€Π°Π±ΠΎΡ‚Ρƒ? Или сСбС Ρ‡Ρ‚ΠΎ ΡΠΏΡ€ΠΎΠ΅ΠΊΡ‚ΠΈΡ€ΠΎΠ²Π°Ρ‚ΡŒ? πŸ‘- Π±Π΅Ρ€Π΅ΠΌ,Β  πŸ†— - ΠΏΠΎΠ΄ΡƒΠΌΠ°Π΅ΠΌ! πŸ›« @aidaprepod | #ΠΏΡ€ΠΎΠ΅ΠΊΡ‚

πŸ˜ŽΠœΡƒΠΆΡ‡ΠΈΠ½Π° сгСнСрировал сСбС ΡˆΠΊΠ°Ρ„ Π² нСйросСти. Π‘ΡƒΠΊΠ²Π°Π»ΡŒΠ½ΠΎ.

Описал Claude количСство ящиков, ΠΏΠΎΠ»ΠΎΠΊ, Π³Π°Π±Π°Ρ€ΠΈΡ‚Ρ‹, отсСки для ΠΏΠ°Ρ€Ρ„ΡŽΠΌΠ΅Ρ€ΠΈΠΈ, располоТСниС Π·Π΅Ρ€ΠΊΠ°Π».

Claude Π²Ρ‹Π΄Π°Π» 1400 строк ΠΊΠΎΠ΄Π° Π½Π° Python, ΠΈΠ· ΠΊΠΎΡ‚ΠΎΡ€Ρ‹Ρ… собрался Π³ΠΎΡ‚ΠΎΠ²Ρ‹ΠΉ Ρ‡Π΅Ρ€Ρ‚Ρ‘ΠΆ Π² PDF. PDF ΠΎΡ‚ΠΏΡ€Π°Π²ΠΈΠ»ΠΈ Π½Π° ΠΌΠ΅Π±Π΅Π»ΡŒΠ½ΡƒΡŽ Ρ„Π°Π±Ρ€ΠΈΠΊΡƒ β€” ΠΏΠΎΠ»ΡƒΡ‡ΠΈΠ»ΠΈ Π³ΠΎΡ‚ΠΎΠ²Ρ‹ΠΉ ΡˆΠΊΠ°Ρ„, Ρ‚ΠΎΡ‡ΡŒ-Π²-Ρ‚ΠΎΡ‡ΡŒ ΠΊΠ°ΠΊ Π² Π΄ΠΎΠΊΡƒΠΌΠ΅Π½Ρ‚Π΅.

Как это Π²ΠΎΠΎΠ±Ρ‰Π΅ Π½Π°Π·Ρ‹Π²Π°Ρ‚ΡŒ? Π’Π°ΠΉΠ±-мСбСль? ΠŸΡ€ΠΎΠΌΠΏΡ‚-ΠΈΠ½Ρ‚Π΅Ρ€ΡŒΠ΅Ρ€?

Π˜Π½Ρ‚Π΅Ρ€Π΅ΡΠ½ΠΎΠ΅ Ρ€Π΅ΡˆΠ΅Π½ΠΈΠ΅? ΠŸΠΈΡˆΠΈΡ‚Π΅ Π² коммСнтариях.

Π‘Π΅Ρ€Π΅ΠΌ Ρ€Π΅ΡˆΠ΅Π½ΠΈΠ΅ Π² Ρ€Π°Π±ΠΎΡ‚Ρƒ? Или сСбС Ρ‡Ρ‚ΠΎ ΡΠΏΡ€ΠΎΠ΅ΠΊΡ‚ΠΈΡ€ΠΎΠ²Π°Ρ‚ΡŒ?

πŸ‘- Π±Π΅Ρ€Π΅ΠΌ,Β  πŸ†— - ΠΏΠΎΠ΄ΡƒΠΌΠ°Π΅ΠΌ!

πŸ›« @aidaprepod | #ΠΏΡ€ΠΎΠ΅ΠΊΡ‚

-2