Добавить в корзинуПозвонить
Найти в Дзене

Золотой треугольник мойки: как не превратить моечную в филиал ада на земле

Кухня ресторана. Шеф-повар мечется у плиты, официанты носятся с подносами, а где-то в глубине, в самом сердце заведения, происходит главное таинство... Нет, не приготовление еды. А её уничтожение. Я говорю о моечном цехе. И если вы думаете, что «золотой треугольник» — это где хранят слитки или выдают премии персоналу, вы ошибаетесь. Это святая святых эргономики, где решается главный вопрос ресторанной вселенной: как грязная посуда превращается в чистую с минимальными потерями времени, нервов и, что особенно важно, бокалов. Добро пожаловать в мир, где каждый лишний шаг — это враг, а правильно расставленные столы и ванны могут спасти брак и сохранить рассудок посудомойщика. Сегодня разбираем Золотой треугольник мойки. Спойлер: это не про геометрию, а про ваши деньги. Если вы когда-нибудь видели, как посудомойщик бегает по кухне с горой тарелок в руках, пытаясь не растерять их по пути, а потом с такой же горой чистых — обратно, значит, вы стали свидетелем работы кривого треугольника. Или
Оглавление
ПРОСТОРНАЯ КУХНЯ не всегда хорошо! Много усилий уходит на перемещение!
ПРОСТОРНАЯ КУХНЯ не всегда хорошо! Много усилий уходит на перемещение!

Кухня ресторана. Шеф-повар мечется у плиты, официанты носятся с подносами, а где-то в глубине, в самом сердце заведения, происходит главное таинство... Нет, не приготовление еды. А её уничтожение. Я говорю о моечном цехе.

И если вы думаете, что «золотой треугольник» — это где хранят слитки или выдают премии персоналу, вы ошибаетесь. Это святая святых эргономики, где решается главный вопрос ресторанной вселенной: как грязная посуда превращается в чистую с минимальными потерями времени, нервов и, что особенно важно, бокалов.

Добро пожаловать в мир, где каждый лишний шаг — это враг, а правильно расставленные столы и ванны могут спасти брак и сохранить рассудок посудомойщика. Сегодня разбираем Золотой треугольник мойки. Спойлер: это не про геометрию, а про ваши деньги.

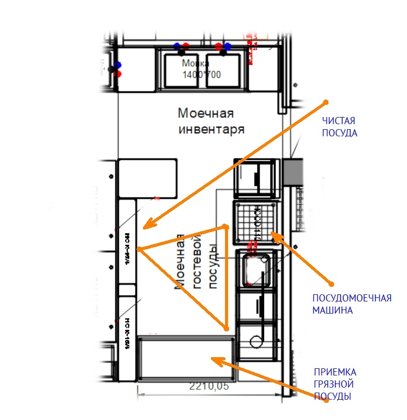
Что это за треугольник и с чем его едят?

ЗОЛОТОЙ ТРЕУГОЛЬНИК МОЕЧНОЙ
ЗОЛОТОЙ ТРЕУГОЛЬНИК МОЕЧНОЙ

Если вы когда-нибудь видели, как посудомойщик бегает по кухне с горой тарелок в руках, пытаясь не растерять их по пути, а потом с такой же горой чистых — обратно, значит, вы стали свидетелем работы кривого треугольника. Или его полного отсутствия.

Золотой треугольник мойки — это условная схема расположения трёх ключевых точек:

  1. Приём грязной посуды (стол сбора отходов / моечные ванны)
  2. Посудомоечная машина (ПММ)
  3. Выдача и сортировка чистой посуды (выходной стол / зона сушки)

Идея проста как правда: эти три точки должны образовывать треугольник, где сумма расстояний между ними минимальна. Никаких лишних шагов. Никаких пробежек через всю кухню с риском устроить голливудский бой посуды. Всё — в пределах вытянутой руки или, в крайнем случае, пары шагов.

Звучит как теория? О, нет. Это суровая практика, от которой зависит, будет ли ваш посудомойщик вас ненавидеть или... ну, хотя бы не ненавидеть.

Вершина №1: Стол для сбора отходов (или входные ворота ада)

Всё начинается здесь. Официанты сгружают горы грязной посуды, выскребают остатки еды, сортируют. И если на этом этапе происходит затор — поздравляю, весь ресторан встал.

Правильная организация этого узла — половина успеха.

Что должно быть:

  • Стол с отверстием для сбора отходов — чтобы официанты могли смахнуть остатки прямо в ведро/бак, а не копаться в тарелках, разбрасывая оливки по всему цеху.
  • Рядом — моечные ванны. Потому что то, что нельзя сразу запихнуть в посудомойку (котлы, кастрюли, противни), нужно замочить, отскоблить, а иногда и просто долго смотреть на них, набираясь смелости.
Входной стол для ПММ должен позволить отсортировать посуду по карзинам и сбить душирующим устройсвом остатки пищи.
Входной стол для ПММ должен позволить отсортировать посуду по карзинам и сбить душирующим устройсвом остатки пищи.

  • Достаточная длина стола. Если вы поставите столик шириной 60 см, а в ресторане 100 посадочных мест, готовьтесь к тому, что грязная посуда будет скапливаться на полу. И на стульях. И на соседнем столе. И в душе сотрудников. Она найдёт место.

Секрет: чем длиннее входная зона, тем меньше хаоса. Но если вы переборщите, посудомойщик начнёт марафонские забеги от одного конца стола до другого. Всё хорошо в меру.

Вершина №2: Посудомоечная машина (ПММ)

Посудомоечные машины в ресторане: купольный, фронтальные и тонельные. Для разных задач и производительности.
Посудомоечные машины в ресторане: купольный, фронтальные и тонельные. Для разных задач и производительности.

Сердце процесса. Там, где грязь встречается с горячей водой и моющим средством, чтобы исчезнуть в небытии.

Главные вопросы, которые нужно себе задать:

  • Купольная или тоннельная? Купольная (или фронтальная) — для небольших объёмов, эдакий «семейный автомобиль». Тоннельная — для больших потоков, «грузовик». Перепутать — значит либо переплатить за то, что будет простаивать, либо наблюдать, как очередь из грязных тарелок растёт быстрее, чем экономика Китая.
  • Где загрузка, а где выгрузка? У ПММ есть строго определённые стороны: в одну загружают грязное, из другой выгружают чистое. И если вы поставите машину так, что выходной стол окажется там, где у вас входная зона, вы создадите портал в параллельную реальность, где грязное и чистое путешествуют вместе. Санитарные врачи такое не одобряют.
  • Расстояние до входного стола. Идеально — стык в стык. Чтобы посудомойщик мог сдвинуть кассету с грязными тарелками, не вставая с места. Каждый дополнительный сантиметр — это лишний шаг. Каждый лишний шаг — это лишние 5 секунд. Каждые лишние 5 секунд — это ещё одна сигарета на перекуре. Шутка. Или нет.

Вершина №3: Выходной стол (и его величество Сушка)

Выходной стол. Для чистой посуды.
Выходной стол. Для чистой посуды.

Вот оно, чудо! Посудомоечная машина отрыгает (простите, выдаёт) кипяток и пар, а вместе с ними — кассеты с чистейшими, стерильными тарелками.

И тут начинается самое интересное. Их нужно:

  1. Принять. Желательно на специальный стол с поддоном, чтобы вода от перегретой посуды не заливала пол.
  2. Остудить. Потому что держаться за раскалённую тарелку голыми руками — это экстрим, который не входит в должностные обязанности.
  3. Разложить по местам. И вот здесь кроется главная ошибка 99% новичков.

Ошибка: сразу же нести чистую посуду в зал или на стеллажи.

Почему это ошибка: пока вы несёте одну кассету, из машины выгружается следующая. Потом следующая. Потом следующая. И через 15 минут ваш выходной стол выглядит как вулкан, который только что проснулся после тысячелетнего сна. Всё заставлено, некуда ставить, начинается паника.

Как правильно: предусмотреть зону промежуточного хранения чистой посуды прямо у выхода из ПММ. Это могут быть:

  • Длинный выходной стол (от 1,5 метров и больше)
  • Тележка для сушки
  • Стеллаж, расположенный вплотную

Чтобы чистая посуда могла спокойно «отдохнуть», остыть и подсохнуть, прежде чем отправиться в зал или на свои полки.

!!!! ВАЖНО !!!
После цикла мойки дайте посуде немного отстояться в корзине, чтоб испарилась влага. Тарелка горячая и испарение происходит достаточно быстро!

Как собрать треугольник: пошаговая инструкция для будущих миллионеров

Представьте себе на минуту, что вы играете в тетрис, но ставки выше — бюджет на оборудование и нервы персонала.

Шаг 1. Определитесь с объёмами.
Посчитайте, сколько комплектов посуды проходит через ваш ресторан в час пик. От этого зависит:

  • Мощность ПММ (количество кассет/час)
  • Длина входного и выходного столов
  • Количество моечных ванн

*Пример: если у вас 50 посадочных мест и средняя загрузка 70%, можно обойтись купольной машиной. Если вы кормите 200 человек в час в фуд-корте — здравствуй, тоннель.

Для понимания расстояний идеально нарисовать мелом расположение оборудования. Отлично подходит малярный скотч.
Для понимания расстояний идеально нарисовать мелом расположение оборудования. Отлично подходит малярный скотч.

Шаг 2. Нарисуйте план (идеально — на полу мелом).

Расставьте три точки: стол сбора отходов + ванны → ПММ → выходной стол.
Соедините их. Получился треугольник? Отлично. Все расстояния в пределах 1-2 шагов? Ещё лучше.


Теперь представьте, что вы посудомойщик. Пройдите этот маршрут. Покрутитесь. Почувствуйте себя героем. Если вы не запыхались и не наступили в лужу — вы на верном пути.

Шаг 3. Учитывайте направление потока.
Грязная посуда приходит с одной стороны. Чистая уходит в противоположную сторону. Идеально, если они не пересекаются. Потому что пересечение грязного и чистого — это не только нарушение санитарных норм, это ещё и отличный способ получить «подарок» от проверяющих и головную боль от главного технолога.

Шаг 4. Не забывайте про сушку.
Многие проектировщики (и владельцы) свято верят, что посуда выходит из ПММ сухой. Хорошая новость: бывает и такое. Плохая: не всегда. Добавьте в треугольник небольшую зону для остывания и сушки — и вы спасёте себя от мокрых тарелок, которые падают из рук, и от вечно влажных стеллажей.

Что будет, если треугольник сломается?

О, это классика жанра. Я видел это своими глазами. И вы, наверное, тоже.

Сценарий первый: «Треугольник вытянулся в линию»
Грязные тарелки приносят в один конец комнаты, ванны стоят посередине, ПММ — в другом конце, а выходной стол — вообще за углом. В результате посудомойщик за смену наматывает 10 километров. Он устаёт, злится, разбивает посуду и, самое главное, не успевает. Грязные тарелки скапливаются, официанты ждут, гости нервничают.

Сценарий второй: «Загрузка и выгрузка — одно и то же»
Входной и выходной стол — это один и тот же стол. Посуда загружается в ПММ с одной стороны, а выгружается... туда же. Да, такое бывает. Тогда грязное и чистое живут в мире и согласии на одной поверхности. Гигиена плачет в углу. Санитарные врачи радостно потирают руки.

Сценарий третий: «Свободное плавание»
Нет вообще никакой системы. Столы и ванны расставлены по принципу «куда влезло». Посудомойщик сам решает, где ему удобно. Это напоминает партизанское движение: каждый день — новый маршрут, каждый день — новые приключения. Эффективность — 5 из 10. Потери посуды — 20% в месяц. Нервы персонала — на нуле.

Бонус: золотые правила треугольника, которые вы должны запомнить

  1. Расстояние между точками — не более 1,5–2 шагов. Всё, что дальше, — это уже не работа, а фитнес.
  2. Входная зона должна быть длиннее выходной. Потому что грязной посуды всегда больше, и её нужно рассортировать, а чистая уходит сразу.
  3. Не экономьте на длине выходного стола. Лучше взять 1,5 метра, чем потом мучиться, куда ставить горячие кассеты.
  4. Предусмотрите место для крупногабарита. Котлы, кастрюли, противни — они не лезут в обычные ванны и не влезают в стандартные кассеты ПММ. Им нужно своё место, иначе они оккупируют весь цех.
  5. Оставьте коридор для прохода. Посудомойщик не должен быть боевым ниндзя, лавирующим между столами. Проход хотя бы 80–90 см спасёт и его, и вашу посуду.

И напоследок, с юмором

Золотой треугольник мойки — это не про роскошь. Это про выживание. Это про то, чтобы ваш посудомойщик не начал писать поэмы о бессмысленности бытия в перерывах между мытьём кастрюль. Или просто запил)

Правильно спроектированный треугольник — это когда:

  • Посуда не летает по цеху, а плавно перемещается от точки А к точке Б.
  • Посудомойщик улыбается (ну, хотя бы не плачет).
  • Бокалы доживают до своего естественного конца, а не разбиваются в первый же час работы.
  • Вы, как владелец, спите спокойно, зная, что моечный цех работает как швейцарские часы, а не как кузница дьявола. с чертями!))

В общем, стройте треугольник. Пусть он будет золотым, ровным и, желательно, на плане кухни, а не в ваших мечтах о том, как всё могло бы быть.

Все счасливы!)
Все счасливы!)

А если есть вопросы — пишите. Расскажу, как ещё можно сэкономить нервы, деньги и посуду. 😉

Подписывайтесь, чтобы не пропустить новые выпуски: в следующих сериях — «Как выбрать посудомоечную машину и не разориться», «Столы, ванны, стеллажи: искусство компромисса» и «Почему ваши тарелки всё ещё грязные, хотя вы купили самую дорогую ПММ».

__________________________________________________________________________________________
Статья была полезной? Тогда давайте знакомиться ближе!

Меня зовут Терентьев Артем, я директор и владелец компании ПЕРФЕКТ.

Мы профессионально занимаемся комплексным оснащением ресторанов, кафе, столовых, баров и предприятий общепита под ключ — от проекта и поставки оборудования до монтажа и пусконаладки.

🍽️ Что мы делаем:
— Подбираем нейтральное, холодильное и тепловое оборудование
— Поставляем посуду, инвентарь, мебель для залов
— Проектируем моечные цеха, линии раздачи, зоны приготовления
— Помогаем не переплачивать и не ошибаться с выбором

📦 Наши преимущества:
— Работаем с проверенными поставщиками (ЦМИ, Polair и другие)
— Даём честные рекомендации без навязывания
— Берём на себя логистику и сборку
— Всегда на связи после продажи

📞 Свяжитесь с нами, если нужна консультация или расчёт:
— Сайт:
https://perfekt.su/
— Телефон:
+7-863-2-707-900
— Email:
don@perfekt.su
— Мой личный канал в МАКС:
https://max.ru/id6167133961_biz

💬 Подписывайтесь на канал, чтобы не пропустить новые статьи:
🔗 [ПЕРФЕКТ | Комплексное оснащение общепита]

💚 Помогаем делать ресторанный бизнес удобнее, выгоднее и вкуснее!

С уважением, Артем Терентьев и команда ПЕРФЕКТ