Добавить в корзинуПозвонить
Найти в Дзене
ДОМ ОТ ПРОФИ

ТОП-3 ОДНОЭТАЖНЫХ ДОМОВ С ТРЕМЯ СПАЛЬНЯМИ ДО 150 М²

▪️Общая площадь 128 м² ▪️Площадь помещений 101 м² Особенности планировки: мастер-спальня, 2 комнаты, постирочная с зоной хранения ▪️Общая площадь 146 м² ▪️Площадь помещений 120 м² Особенности планировки: мастер-спальня, 2 спальни, просторная гардеробная у входа ▪️Общая площадь 135 м² ▪️Площадь помещений 95 м² Особенности планировки: 3 спальни, сауна в доме, большая терраса с выходом из кухни Пишите в наш бот номер проекта, и мы пришлем вам смету 👍🏼
Оглавление

1️⃣ Проект 12-128

▪️Общая площадь 128 м²

▪️Площадь помещений 101 м²

-2
Особенности планировки: мастер-спальня, 2 комнаты, постирочная с зоной хранения

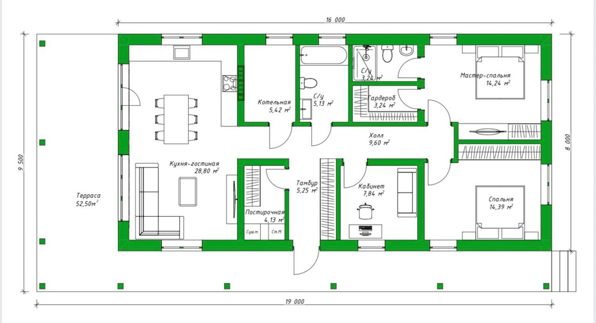
2️⃣ Проект 7-146

-3

▪️Общая площадь 146 м²

▪️Площадь помещений 120 м²

-4
Особенности планировки: мастер-спальня, 2 спальни, просторная гардеробная у входа

3️⃣ Проект 12-135

-5

▪️Общая площадь 135 м²

▪️Площадь помещений 95 м²

-6
Особенности планировки: 3 спальни, сауна в доме, большая терраса с выходом из кухни

Пишите в наш бот номер проекта, и мы пришлем вам смету 👍🏼