Найти в Дзене
DIVAN.RU

Пастельная симфония: современная евродвушка 32,1 кв.м в дымчато-зеленых тонах

Несмотря на маленькую площадь, в этой квартире успешно воплотили все пожелания хозяйки. Здесь есть полноценная кухня, гостиная с рабочей зоной, отдельная спальня и продуманные системы хранения. Посмотрим, как удалось достичь такого результата. Во время первой встречи заказчица продемонстрировала подборку интерьеров в зеленной гамме. Именно эти референсы легли в основу концепции интерьера в нежных пастельных оттенках. Первоначальная планировка квартиры от застройщика была сохранена. Пространство разделено на кухню-гостиную, отдельную спальню, компактную прихожую и совмещенный санузел. Главное преимущество квартиры — панорамное остекление. У окна организовали многофункциональную зону, объединяющую уголок для отдыха и рабочее пространство. Для визуального выделения рабочей области использован зеленый цвет. Противоположную стену декорировали панелями за диваном, которые создают интересный текстурный акцент. Диван Шилдс от divan.ru — элегантный и очень удобный. Благодаря высоким металлическ
Оглавление

Несмотря на маленькую площадь, в этой квартире успешно воплотили все пожелания хозяйки. Здесь есть полноценная кухня, гостиная с рабочей зоной, отдельная спальня и продуманные системы хранения. Посмотрим, как удалось достичь такого результата.

  • Объект: евродвушка 32,1 кв.м в ЖК «Волжский парк», г. Москва (потолки 2,6 м)
  • Автор проекта: дизайнер Елизавета Красноперова, автор фото Егор Воробьев
  • Бюджет: 1,27 млн рублей

Пожелания заказчицы

  • Использование зеленого цвета как основного в интерьере.
  • Организация многочисленных систем хранения.
  • Обустройство рабочего места в гостиной зоне.
  • Установка туалетного столика в спальне для повседневных сборов.
Во время первой встречи заказчица продемонстрировала подборку интерьеров в зеленной гамме. Именно эти референсы легли в основу концепции интерьера в нежных пастельных оттенках.

Планировочное решение

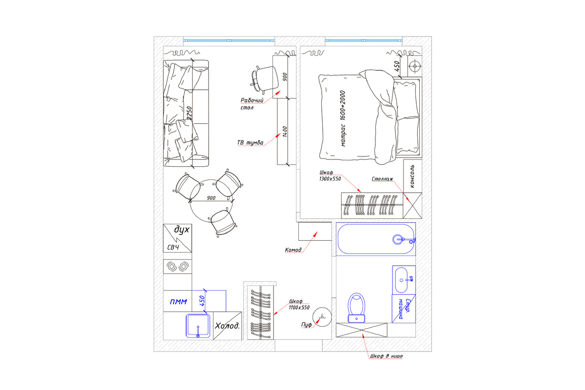
Первоначальная планировка квартиры от застройщика была сохранена. Пространство разделено на кухню-гостиную, отдельную спальню, компактную прихожую и совмещенный санузел.

Планировочное решение и расстановка мебели
Планировочное решение и расстановка мебели

Кухня-гостиная

Главное преимущество квартиры — панорамное остекление. У окна организовали многофункциональную зону, объединяющую уголок для отдыха и рабочее пространство. Для визуального выделения рабочей области использован зеленый цвет. Противоположную стену декорировали панелями за диваном, которые создают интересный текстурный акцент.

-3
Диван Шилдс от divan.ru — элегантный и очень удобный. Благодаря высоким металлическим ножкам модель выглядит легкой и визуально «парит» над полом, а мягкие линии создают в комнате атмосферу уюта.

➡️Товары бренда divan.ru

По обе стороны кухонного гарнитура установлены высокие пеналы до потолка. Фасады верхних шкафов, как и нижние модули, выполнены из ЛДСП под дерево. Верхние фасады в тон стен визуально сливаются с пространством. Столешницу тоже изготовили из ЛДСП, а фартук оформили керамической плиткой. Акценты в интерьере создает черный — в бытовой технике и скрытой фурнитуре.

Спальня

В небольшой спальне удалось разместить двуспальную кровать, туалетный столик с зеркалом и шкаф до потолка с системой открытых полок. Акцентная стена за изголовьем кровати выделена зеленым и декорирована молдингами.

Центральным элементом комнаты стала кровать Вилена 160 от divan.ru с мягким изголовьем. Подъемный механизм обеспечивает удобное хранение постельного белья под матрасом.
-7

➡️Товары бренда divan.ru

Санузел

«Стандартная раковина от застройщика уступила место большой современной модели из искусственного мрамора с тумбой, — комментирует дизайнер. — В нише за унитазом разместили изготовленный на заказ шкаф с открытыми полками, где скрыта розетка для полотенцесушителя. Завершающим штрихом стало обновление пластикового экрана на жалюзийный вариант».

Прихожая

Для удобства хранения сезонных вещей в прихожей смонтировали встроенный шкаф. Также на входе в квартиру стоит комод с тремя вместительными ящиками. Одна из стен коридора окрашена в нежный светло-зеленый цвет.

⭐️ Исполните свои интерьерные мечты! Выбирайте мебель, декор, освещение, текстиль и аксессуары с выгодой до 15% на divan.ru >>

-10

============================

Оцените интерьер в комментариях, а если материал понравился — не забудьте поставить лайк👍

🖤divan.ru — не только блог про интерьеры, но и производитель доступной дизайнерской мебели. Ищите новые идеи и переходите на сайт, чтобы воплотить их в жизнь.