Добавить в корзинуПозвонить
Найти в Дзене
Дом мечты с Bonolit

Дом с террасой: начать весной — жить летом!

Весна — удачное время, чтобы зайти в стройку без лишней раскачки. Земля уже оттаяла, погода становится стабильнее, впереди весь строительный сезон. Если проект дома сделан рационально и конструктив не перегружен сложными решениями, коробку можно пройти достаточно быстро и уже летом перейти к следующим этапам. На практике скорость строительства зависит не столько от количества рабочих на участке, сколько от того, насколько спокойно и продуманно сделан сам проект. Чем меньше сложной геометрии, нестандартных узлов и тяжёлых конструктивных решений, тем легче держать темп строительства и контролировать бюджет. Поэтому в малоэтажном строительстве всё чаще выбирают дома с простой архитектурой: компактная площадь, понятная геометрия здания и спокойная конструкция кровли. Такие проекты не требуют большого количества сложных сопряжений и значительно реже создают проблемы по ходу работ. Отдельную роль играет конструкция стены. Для частного дома одним из самых рациональных решений считается однос
Оглавление

Весна — удачное время, чтобы зайти в стройку без лишней раскачки. Земля уже оттаяла, погода становится стабильнее, впереди весь строительный сезон. Если проект дома сделан рационально и конструктив не перегружен сложными решениями, коробку можно пройти достаточно быстро и уже летом перейти к следующим этапам.

Скорость строительства начинается с проекта

На практике скорость строительства зависит не столько от количества рабочих на участке, сколько от того, насколько спокойно и продуманно сделан сам проект. Чем меньше сложной геометрии, нестандартных узлов и тяжёлых конструктивных решений, тем легче держать темп строительства и контролировать бюджет.

-2
Проекты домов из газобетона, коттеджи и бани, заказать чертежи бесплатно с полным описанием - Bonolit

Поэтому в малоэтажном строительстве всё чаще выбирают дома с простой архитектурой: компактная площадь, понятная геометрия здания и спокойная конструкция кровли. Такие проекты не требуют большого количества сложных сопряжений и значительно реже создают проблемы по ходу работ.

Однослойная стена как рациональное решение

Отдельную роль играет конструкция стены. Для частного дома одним из самых рациональных решений считается однослойная стена из автоклавного газобетона плотности D400 толщиной около 400 мм.

-3

Именно по такому принципу работает решение Bonolit 40 — когда сама стена одновременно выполняет несущую и теплозащитную функцию. В конструкции нет сложного многослойного «пирога», дополнительных утеплителей и лишних мокрых процессов.

Такой подход упрощает строительство и делает систему более понятной. Чем меньше слоёв и операций в конструкции стены, тем ниже вероятность ошибок и тем быстрее идёт работа на объекте.

Почему газобетон ускоряет строительство

Скорость также связана с самой технологией кладки. Газобетонные блоки имеют точную геометрию и укладываются на тонкошовный клей. Благодаря этому кладка идёт быстрее, чем у многих других штучных материалов. Крупный формат блока позволяет быстрее набирать высоту стен, а аккуратная геометрия снижает необходимость постоянных корректировок.

В результате коробка дома возводится значительно быстрее, чем при использовании более тяжёлых штучных материалов. А когда конструктив дома изначально простой, строительный цикл становится гораздо более предсказуемым.

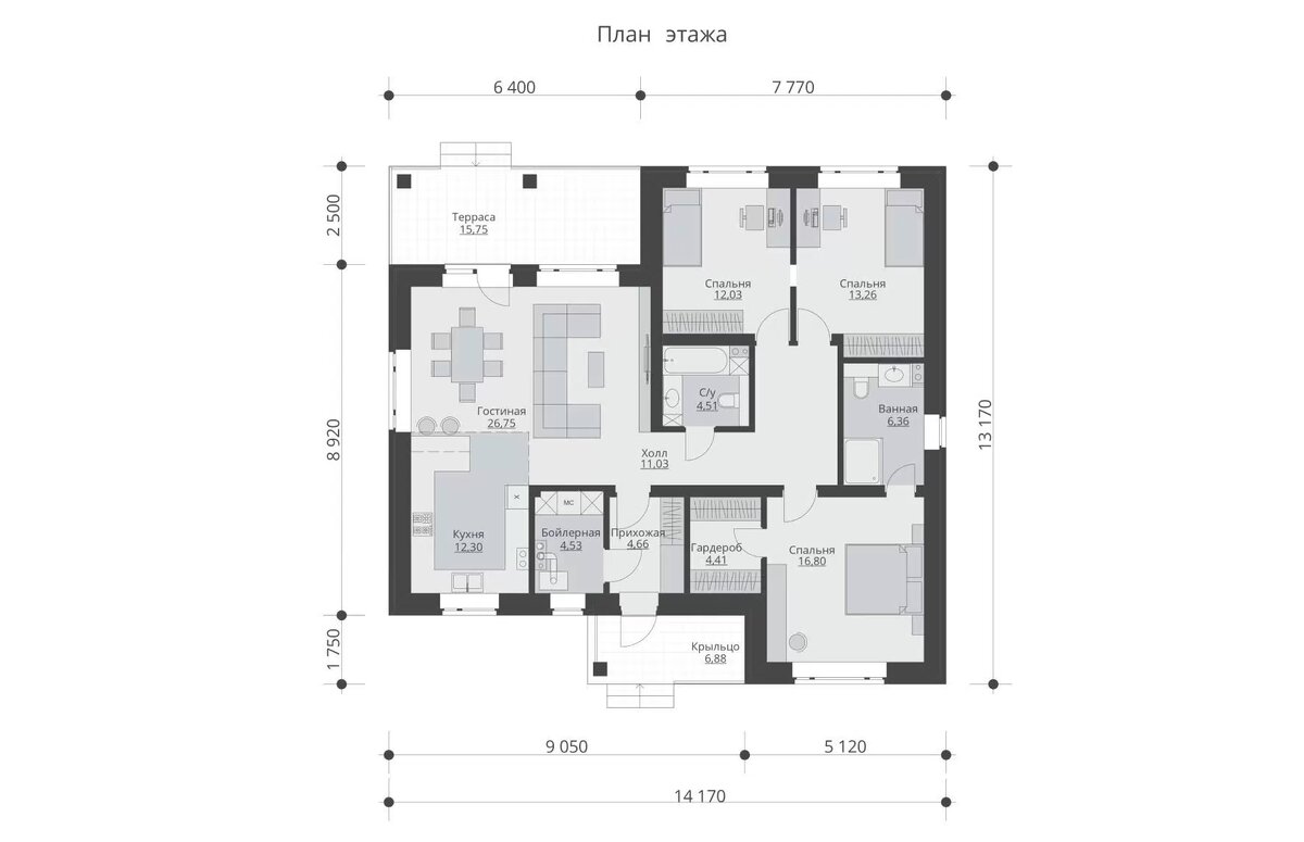
Терраса как продолжение жилого пространства

Терраса в таком доме — не просто декоративный элемент проекта. Она становится продолжением жилого пространства в тёплый сезон. Завтрак на улице, вечер с семьёй, возможность просто выйти из дома на свежий воздух — ради этого многие и принимают решение строить собственный дом.

Поэтому всё чаще акцент делают не на максимальной площади здания, а на грамотно организованном пространстве, где каждый элемент действительно работает на комфорт.

-4

Итог: когда быстрый сценарий действительно работает

В итоге быстрый сценарий строительства вполне реален. Если дом компактный, конструктив спокойный, стена однослойная из D400, а кровля без лишней сложности — весенний старт действительно может привести к очень быстрому результату.

Главное — выбирать решения, с которыми стройка идёт без лишних переделок и усложнений.

А блоки для такого дома можно подобрать на сайте Bonolit, где представлены решения для малоэтажного строительства, включая систему однослойных стен Bonolit 40.

Завод по производству газобетона официальный сайт Bonolit