План 1 этажа: План 2 этажа: План 1 этажа: План 2 этажа: План 1 этажа: План 2 этажа: Пишите номер понравившегося проекта в наш бот, и мы пришлем вам смету
План 1 этажа: План 2 этажа: План 1 этажа: План 2 этажа: План 1 этажа: План 2 этажа: Пишите номер понравившегося проекта в наш бот, и мы пришлем вам смету
...Читать далее
Оглавление
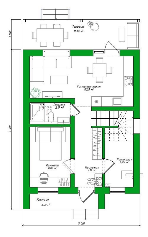
1. Проект двухэтажного дома с мансардным этажом 17-125
- Общая площадь 125 м²
- Площадь помещений 83,49 м²
- Габариты 8,7х7 м
- Высота 1 этажа 3м
- Высота 2 этажа 2,13 - 4,3м
План 1 этажа:
План 2 этажа:
2. Проект двухэтажного дома с мансардным этажом 17-151-1
- Общая площадь 151,5 м²
- Площадь помещений 98,8 м²
- Габариты 9х8,4 м
- Высота 1 этажа 3, 25 м
- Высота 2 этажа 1,95 - 4,13 м
План 1 этажа:
План 2 этажа:
3. Проект двухэтажного дома с мансардным этажом 17-162-1
- Общая площадь 161,5 м²
- Площадь помещений 118,8 м²
- Габариты 9,5 х 8,5 м
- Высота 1 этажа 3,25 м
- Высота 2 этажа 1,62 - 4,33 м
План 1 этажа:
План 2 этажа:
Пишите номер понравившегося проекта в наш бот, и мы пришлем вам смету