Найти в Дзене
KPD Дизайн Интерьера

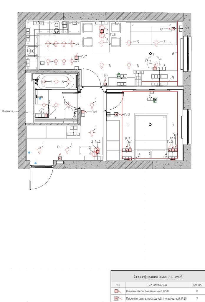
Почему электрика — это тоже про комфорт

? Электрика — это не только «розетки и выключатели». Это привычка включать свет с нужного места. Это отсутствие проводов под ногами. Это зарядка у кровати, подсветка шкафа, трек над кухней, люстра над столом, бра у кровати. Смарт-планировка продолжается с электрикой, которая зависит от расстановки мебели в квартире. Если всё продумать — комфорт приходит сам. Подробнее тут. #услуги Трости и гвозди

Почему электрика — это тоже про комфорт?

Электрика — это не только «розетки и выключатели».

Это привычка включать свет с нужного места. Это отсутствие проводов под ногами. Это зарядка у кровати, подсветка шкафа, трек над кухней, люстра над столом, бра у кровати.

Смарт-планировка продолжается с электрикой, которая зависит от расстановки мебели в квартире.

Если всё продумать — комфорт приходит сам. Подробнее тут.

#услуги

Трости и гвозди

-2
-3