Добавить в корзинуПозвонить
Найти в Дзене
«Воронежские новости»

Исторический квартал в центре Воронежа выставили на торги за 23,1 млн рублей

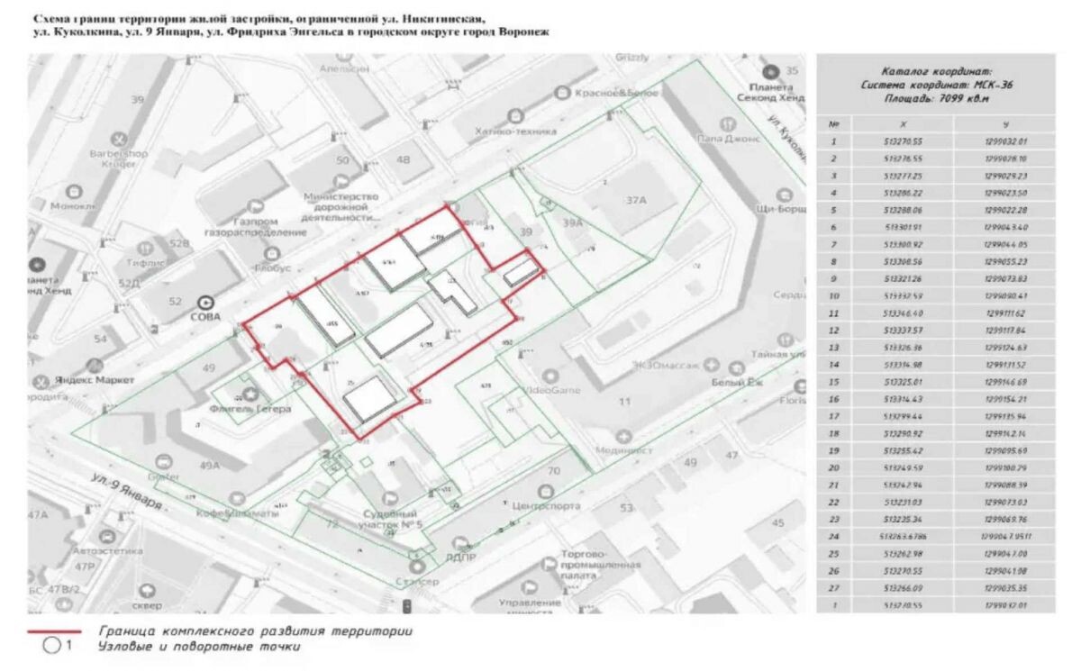
Администрация Воронежа объявила о начале поиска инвестора для комплексного развития территории (КРТ) в исторической части города. Участок, ограниченный улицами Никитинская, Куколкина, 9 Января и Фридриха Энгельса, выставлен на торги. Площадь территории под освоение составляет около 7,1 тыс кв метров. Начальная цена права на заключение договора КРТ – 23,1 млн руб. Шаг аукциона – примерно 1,16 млн руб, размер задатка равен стартовой цене. Согласно условиям, на этом месте планируется возвести многоквартирные дома – от двух до семи этажей. Проектом также предусмотрено строительство подземной парковки. Поскольку участок находится в исторической части Воронежа, к застройщику предъявляются особые требования. Новый жилой комплекс должен быть вписан в существующий архитектурный облик, а также сохранены объекты, представляющие историческую ценность. Прием заявок на участие в аукционе с задатком продлится до 14 апреля. Сами торги запланированы на 20 апреля. Напомним о том, что власти определили п

Администрация Воронежа объявила о начале поиска инвестора для комплексного развития территории (КРТ) в исторической части города. Участок, ограниченный улицами Никитинская, Куколкина, 9 Января и Фридриха Энгельса, выставлен на торги.

Площадь территории под освоение составляет около 7,1 тыс кв метров. Начальная цена права на заключение договора КРТ – 23,1 млн руб. Шаг аукциона – примерно 1,16 млн руб, размер задатка равен стартовой цене.

Согласно условиям, на этом месте планируется возвести многоквартирные дома – от двух до семи этажей. Проектом также предусмотрено строительство подземной парковки.

Поскольку участок находится в исторической части Воронежа, к застройщику предъявляются особые требования. Новый жилой комплекс должен быть вписан в существующий архитектурный облик, а также сохранены объекты, представляющие историческую ценность.

Прием заявок на участие в аукционе с задатком продлится до 14 апреля. Сами торги запланированы на 20 апреля.

Напомним о том, что власти определили подрядчика, который займется восстановлением объекта культурного наследия регионального значения – дома Шуклиных на улице Карла Маркса, 70. Единственным участником торгов стало воронежское ООО «Регионстрой». Завершить реставрацию необходимо до 1 декабря 2026 года.

Екатерина Теплых
Журналист