Добавить в корзинуПозвонить
Найти в Дзене

Каков проект, таков и ремонт. Огрехи в обычном дизайн проекте.

В прошлом году доделывал пару проектов после других дизайнеров.
С первого взгляда, обычные проекты. Но при внимательном просмотре находишь огрехи несовместимые с качественным ремонтом. В конце концов, у каждого дизайнера свой стиль работы. Один выдаёт подробный проект, другой днюет и ночует на стройке и все косяки проекта разруливает на месте. Один "раздувает" листаж проект. Другой считает, что неинформативные чертежи (для галочки) только мешают. Один выдаёт только то, что нужно заказчику. Но есть чертежи, которые заказчику не интересны, а строителям нужны. Да, всё так.
Но я месяц работал с их проектом...
И некоторые моменты напрягают: В чисто-чистом поле листа маленький квадратик.
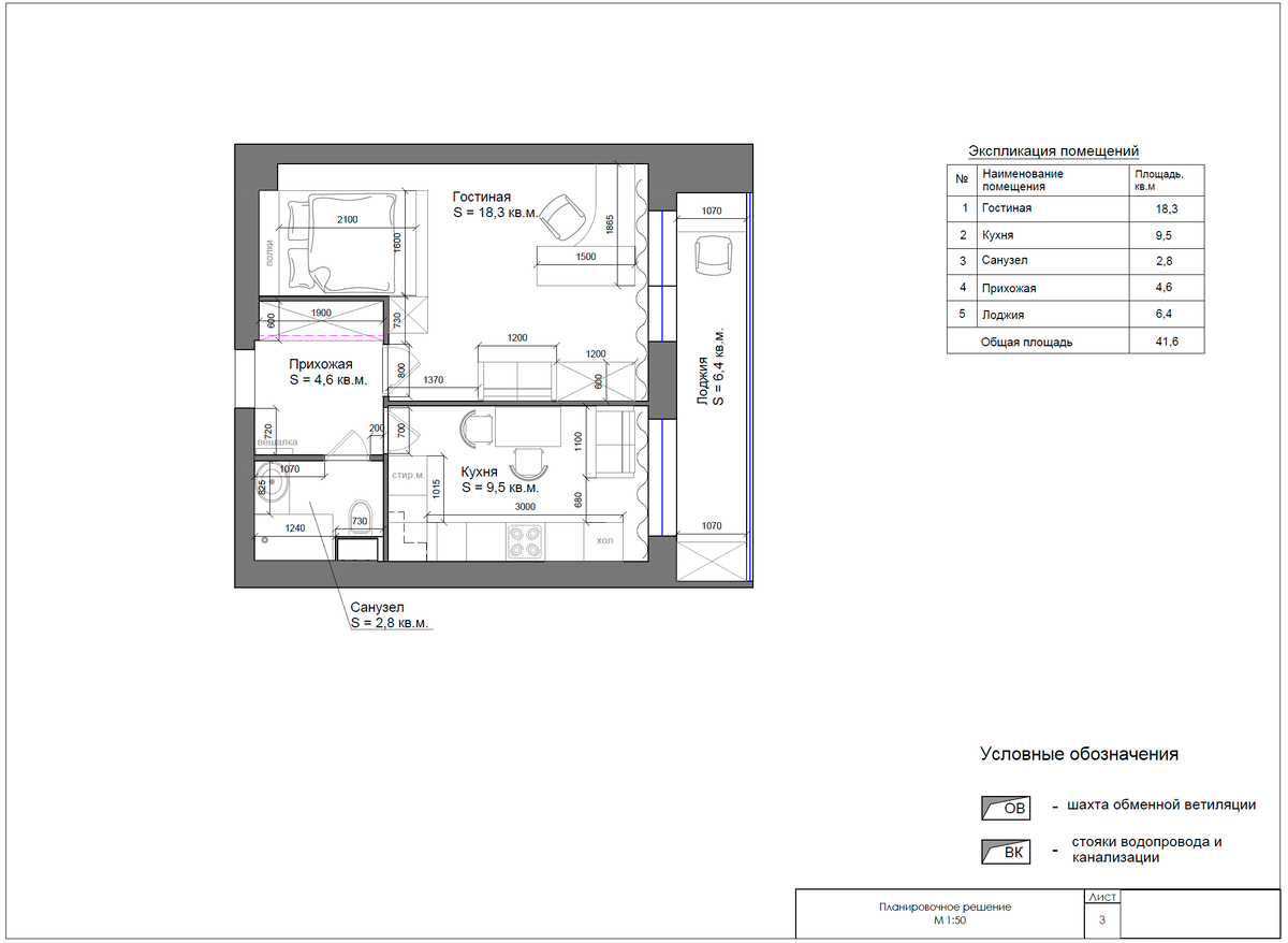
Это чертёж квартиры. Почему так мелко?! Видимо дизайнер предполагал, что при печати на листе какого-то формата чертёж получится в масштабе 1:50 (зачем это нужно не знаю). Я стараюсь выделить для чертежа как можно больше места на листе. И использую крупные шрифты, чтобы проект можно было распечатать на л
Оглавление

В прошлом году доделывал пару проектов после других дизайнеров.
С первого взгляда,
обычные проекты. Но при внимательном просмотре находишь огрехи несовместимые с качественным ремонтом.

А может, я сгущаю краски?

В конце концов, у каждого дизайнера свой стиль работы.

Один выдаёт подробный проект, другой днюет и ночует на стройке и все косяки проекта разруливает на месте.

Один "раздувает" листаж проект. Другой считает, что неинформативные чертежи (для галочки) только мешают.

Один выдаёт только то, что нужно заказчику. Но есть чертежи, которые заказчику не интересны, а строителям нужны.

Да, всё так.
Но я месяц работал с их проектом...
И некоторые моменты напрягают:

Компоновка листа.

В чисто-чистом поле листа маленький квадратик.
Это чертёж квартиры.

Почему так мелко?! Видимо дизайнер предполагал, что при печати на листе какого-то формата чертёж получится в масштабе 1:50 (зачем это нужно не знаю).

Я стараюсь выделить для чертежа как можно больше места на листе. И использую крупные шрифты, чтобы проект можно было распечатать на листе формата A4 (если квартира не очень большая).

-2

Штамп.

Я считаю, что в штампе не нужно ничего лишнего.
Но должно быть всё необходимое, а именно:
Номер листа и название чертежа — это понятно.
Дата - для отслеживания актуальности версии чертежа.
Идентификатор проекта для смежников (в данном случае "Саянская").
Номер телефона дизайнера, чтобы строители могли оперативно уточнить, если что-то не понятно.
Хэш-тэг дизайнера, чтобы можно было найти его сайт.

-3

Но это всё мелочи.

В конце концов, стиль оформления чертежей - дело вкуса дизайнера.
На сам проект компоновка листа не влияет же...
Или влияет?
Оказывается влияет.

Обмер.

На таком мелком чертеже размеры внутри помещений не поместились. И дизайнер проставил их снаружи помещений.

Гениально!

-4

Допустим, для коридора и санузла можно понять к чему эти размеры относятся.
А вот для окон в большой комнате - нет.
(Дело в том, что размеры окон со стороны квартиры и со стороны балкона в этой серии домов разные).

Пара размеров не указана.
Газовая труба не указана.
Стояки труб отопления не указаны.

А квартира маленькая. Тут каждый сантиметр на счету.
Перемерил. Санузел на 0.5 м²
меньше оказался.

-5

Не нагнетай.
Проект как проект.

Ну не указал дизайнер пару размеров на обмерах. С кем не бывает.
А сантехническую кабину всё равно сносить и строить заново будут. Там вообще все размеры поплывут.

Да, проект действительно вполне обычный. Ничего такого уж совсем плохого в нем нет. И было бы очень интересно посмотреть обычный состав чертежей в обычном реальном проекте.

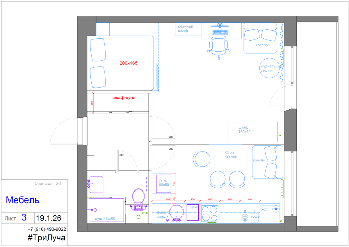
Состав проекта.

С составом проекта всё хорошо. Я делаю примерно те же чертежи. Только по разделам их разбиваю:
ПЛАНИРОВКА
ЭЛЕКТРИКА
ОТДЕЛКА

И ещё QR код - ссылку на картинки даю:

-7

Но есть и отличия.
Вот о них и поговорим в следующей статье.

#ТриЛуча

Актуальные цены на дизайн-проект смотрите на моем сайте.
☎ +7 916 490-9022