Добавить в корзинуПозвонить
Найти в Дзене

Пока Telegram испытывал технические сложности, у нас произошло важное событие — мы успешно сдали очередной проект! Представляем вам дом‑баню

«Лорд»: Размеры: 3×7 м, общая площадь — 35 м². Назначение: идеально подходит для круглогодичного проживания. Комплектация: отделка, электрика, освещение и разводка труб уже включены в стоимость. Фасад: выполнен из брашированной доски, цвет — тёмно‑коричневый. Сроки: изготовление — около 35 дней, установка — всего за 1 день! Планировка включает: ✅спальню с панорамным окном; ✅большую гостиную с кухонной зоной; ✅вместительный санузел; ✅помывочную; ✅парную. Мы искренне гордимся этим проектом — он подтверждает, что совершенство качества, стиля и комфорта достижимо! ✨ Поделитесь впечатлениями в комментариях — нам очень важно ваше мнение! 👇

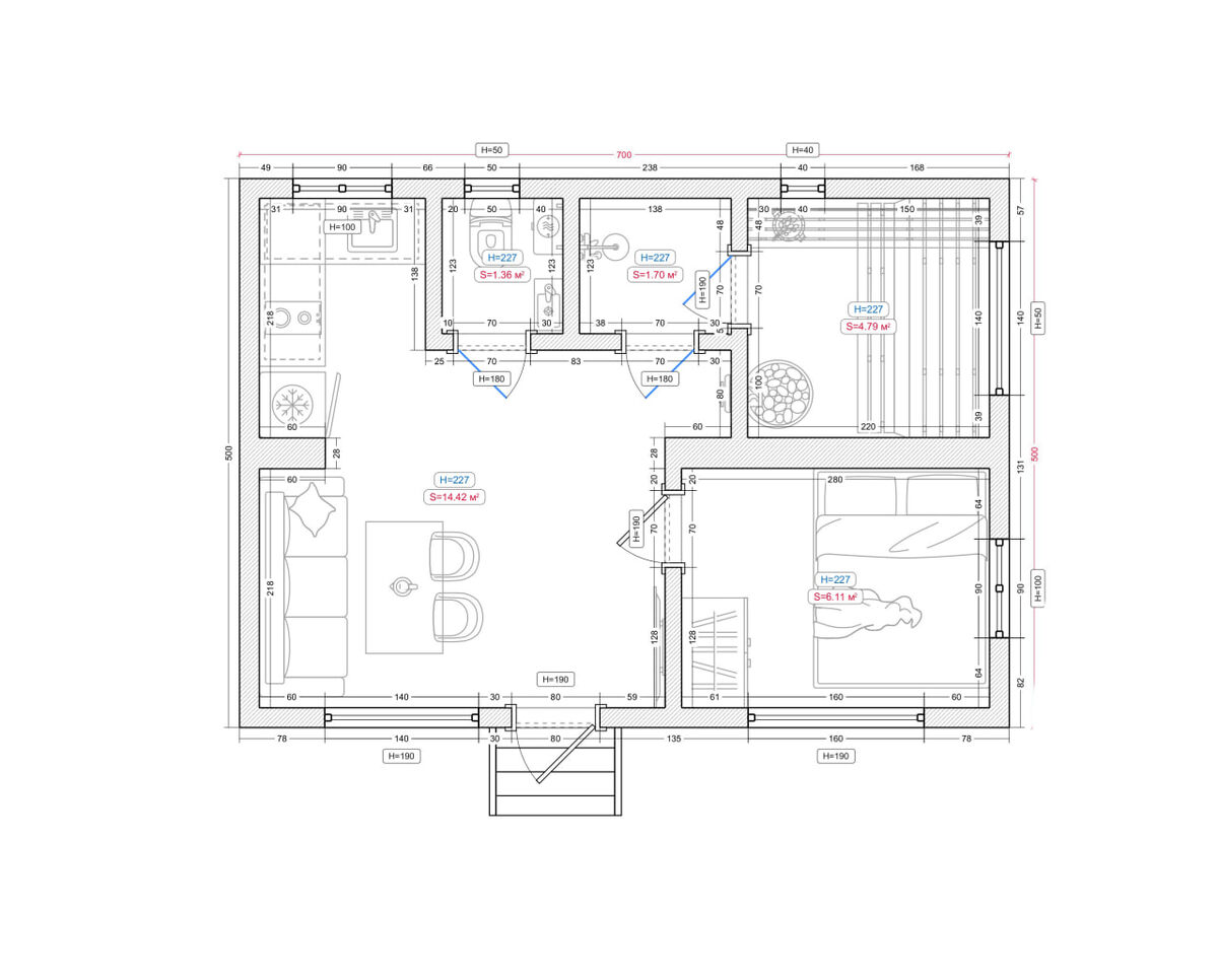
Пока Telegram испытывал технические сложности, у нас произошло важное событие — мы успешно сдали очередной проект! Представляем вам дом‑баню «Лорд»:

Размеры: 3×7 м, общая площадь — 35 м².

Назначение: идеально подходит для круглогодичного проживания.

Комплектация: отделка, электрика, освещение и разводка труб уже включены в стоимость.

Фасад: выполнен из брашированной доски, цвет — тёмно‑коричневый.

Сроки: изготовление — около 35 дней, установка — всего за 1 день!

Планировка включает:

✅спальню с панорамным окном;

✅большую гостиную с кухонной зоной;

✅вместительный санузел;

✅помывочную;

✅парную.

Мы искренне гордимся этим проектом — он подтверждает, что совершенство качества, стиля и комфорта достижимо! ✨

Поделитесь впечатлениями в комментариях — нам очень важно ваше мнение! 👇

-2
-3
-4
-5
-6
-7
-8
-9
-10