Добавить в корзинуПозвонить
Найти в Дзене

Бассейн в доме и очередь в туалет: Почему эта популярная планировка — архитектурная ловушка

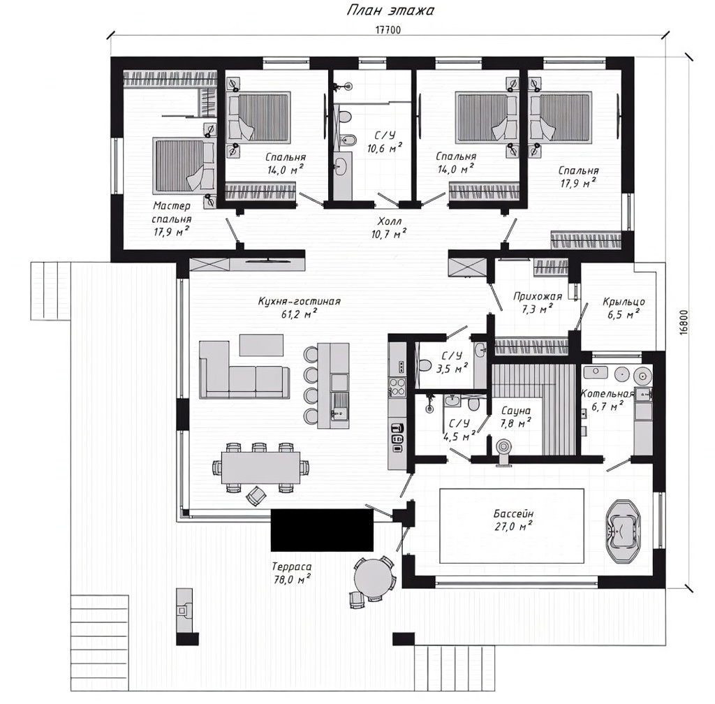
На бумаге этот проект выглядит как ультимативная мечта: почти 300 квадратов общей площади, SPA-комплекс с бассейном, сауной и терраса, на которой можно играть в футбол. Габариты 17х16 метров внушают уважение — это серьезный дом для серьезных вложений. Но за фасадом «дорогой жизни» скрывается планировочная катастрофа, которая превратит быт владельца в бесконечный логистический квест. Как девелопер, я часто вижу, как люди попадают в эту ловушку: они тратят десятки миллионов на бассейн и сауну, но экономят на базовой эргономике. В итоге получается дом, в котором круто провести вечеринку в субботу, но совершенно невозможно жить в понедельник. Четыре спальни на один единственный санузел в жилом блоке — это не просто ошибка, это приговор ликвидности объекта. Давайте разберем по пунктам, почему эта планировка — наглядное пособие того, как НЕ надо проектировать семейный дом в 2026 году. Если показать этот чертеж человеку, который всю жизнь прожил в городской квартире, у него перехватит дыхание
Оглавление

На бумаге этот проект выглядит как ультимативная мечта: почти 300 квадратов общей площади, SPA-комплекс с бассейном, сауной и терраса, на которой можно играть в футбол. Габариты 17х16 метров внушают уважение — это серьезный дом для серьезных вложений. Но за фасадом «дорогой жизни» скрывается планировочная катастрофа, которая превратит быт владельца в бесконечный логистический квест.

Как девелопер, я часто вижу, как люди попадают в эту ловушку: они тратят десятки миллионов на бассейн и сауну, но экономят на базовой эргономике. В итоге получается дом, в котором круто провести вечеринку в субботу, но совершенно невозможно жить в понедельник. Четыре спальни на один единственный санузел в жилом блоке — это не просто ошибка, это приговор ликвидности объекта. Давайте разберем по пунктам, почему эта планировка — наглядное пособие того, как НЕ надо проектировать семейный дом в 2026 году.

Фасад благополучия: почему этот проект «продаёт» себя с первого взгляда

-2

Если показать этот чертеж человеку, который всю жизнь прожил в городской квартире, у него перехватит дыхание. Это классический пример планировки-приманки. Здесь есть всё, что ассоциируется с «красивой жизнью» из журналов, и эти зоны действительно спроектированы с размахом.

  • Кухня-гостиная 61 м2: Это настоящий аэродром. Площадь средней двухкомнатной квартиры отдана под одно общее пространство. Зонирование здесь выполнено почти идеально: кухонный остров отделяет зону готовки, обеденная группа на 8–10 человек встает без проблем, а мягкая зона с диваном ориентирована на панорамные окна. Это пространство создано для того, чтобы поражать гостей масштабом.
  • SPA-зона как главный козырь: Бассейн площадью 27 м2 внутри дома — это серьезная заявка на премиальность. Вместе с сауной (7,8 м2) и отдельным санузлом при ней это помещение занимает почти 50 квадратов. Сценарий «из парной — в воду, а потом с чашкой чая на террасу» здесь прописан идеально.
  • Терраса 78,0 м2: Огромный деревянный настил, который огибает дом, — это мечта любого дачника. Она почти в два раза больше жилой площади всех спален в этом доме. На ней можно разместить и летнюю кухню, и зону для йоги, и шезлонги.

В чем подвох?

Проблема в том, что когда вы строите дом для себя, вы живете не в гостиной и не в бассейне. Вы живете в спальном блоке. И именно там архитектор совершил «преступление», которое перечеркивает все достоинства этой гигантской гостиной. Покупатель видит бассейн и влюбляется, но он не замечает, что в этом огромном доме ему негде будет уединиться и смыть с себя усталость без очереди.

Спальный «тупик»: как один санузел на четыре комнаты убивает комфорт

-3

Вот здесь и зарыта главная проблема этого проекта. Посмотрите на верхнюю часть чертежа — спальный блок. У нас есть четыре полноценные комнаты (17.9 м2, 14.0 м2, 14.0 м2 и еще одна 17.9 м2). В сумме это почти 64 м2 жилой площади, где теоретически могут жить 6–8 человек (родители, трое детей и, например, гости или бабушка).

И на всю эту толпу предусмотрен один-единственный общий санузел площадью 10.6 м2.

  1. «Фальшивая» мастер-спальня: Архитектор смело пометил крайнюю левую комнату как «Мастер-спальню». Но давайте называть вещи своими именами: в 2026 году мастер-спальня без собственного санузла и гардеробной — это просто большая комната. Хозяин дома, заплативший за бассейн и 300 квадратов бетона, вынужден утром брать полотенце, открывать дверь, выходить в общий холл (где в это время уже бегают дети или сонные гости) и идти в общую ванную. Это не приватность, это общежитие премиум-класса.
  2. Утренний логистический ад: Представьте утро семьи из четырех человек. Очередь в единственный душ и туалет в жилой зоне превратит начало дня в стресс. Да, внизу есть санузлы при SPA (3.5 м2 и 4.5 м2), но кто захочет в пижаме бежать через весь дом, мимо входной двери и панорамных окон гостиной, чтобы просто умыться?
  3. Архитектурный диссонанс: Это самый странный момент. Застройщик нашел деньги на бассейн (дико дорогой в строительстве и обслуживании объект), на террасу в 78 м2 и на огромную гостиную. Но он «сэкономил» 5–7 м2 на втором санузле в спальной зоне, который радикально изменил бы качество жизни.

Вердикт по блоку: Эта планировка нарушает главное правило современного дома — автономность взрослой зоны. Для дома такого масштаба здесь должно быть минимум три санузла в жилом блоке: один личный в мастер-спальне, один детский и один гостевой/общий. В текущем виде это дом для «тусовок», где спальни нужны только для того, чтобы упасть в кровать после бассейна, но никак не для комфортной семейной жизни.

Ловушка для кошелька: Сколько стоит обслуживать 27 метров воды?

-4

Давайте поговорим о том, о чем архитекторы «забывают» сказать на этапе эскиза. Бассейн в доме — это не просто дыра в полу с водой. Это один из самых дорогих в строительстве и обслуживании объектов в частном жилье. Бассейн площадью 27 м2 (а в этой планировке он еще и скругленный, что усложняет стройку) требует:

  1. Постоянного подогрева воды и воздуха. Чтобы в помещении было комфортно, температура воздуха должна быть на 2–3 градуса выше температуры воды. В нашем климате это колоссальные затраты на газ и электричество.
  2. Мощной системы вентиляции и осушения. Испарение с 27 м2 воды — это сотни литров влаги в сутки. Без мощного (и дико шумного) осушителя и приточно-вытяжной вентиляции ваш дом с панорамными окнами и, возможно, деревянными элементами в каркасе превратится в рассадник черной плесени за один сезон.
  3. Химического баланса. Постоянная очистка, дозирование химии, замена фильтров. Это либо ваше время, либо абонентская плата специалисту (15–20 тысяч рублей в месяц).

Котельная 6,7 м2: Это помещение просто не потянет всё необходимое оборудование. По нормативам, для газового котла, бойлера, водоочистки (которая в Подмосковье бывает размером с два холодильника), коллекторов теплого пола и мощной системы вентиляции и осушения для бассейна (самая объемная часть) нужно техническое помещение в полтора-два раза больше. Этот чертеж врет — инженерное «сердце» такого дома просто не поместится на 6,7 м2. Его придется выносить в отдельный хозблок или жертвовать частью террасы.

Ликвидность: Кому вы это продадите?

-5

Этот дом — идеальный пример «неликвидной роскоши». Он выглядит круто в соцсетях, но его архитектурные просчеты уничтожают его рыночную стоимость.

  1. Не для семьи. Семьи, готовые платить за дом такого масштаба, требуют Мастер-зону со своим санузлом. Очереди в туалет в 2026 году — это неликвид.
  2. Дорогой в аренде. Для сдачи на уикенд это отличный вариант: SPA, гостиная. Но постоянные эксплуатационные расходы на бассейн съедят большую часть прибыли. Сдавать его нужно будет в два-три раза дороже, чем обычный дом.
  3. Непригодный для жизни. Это «дом-SPA», временная резиденция для релакса, но никак не семейная «крепость». Вложив миллионы в бассейн и сауну, владелец получил в итоге жилой блок, по комфорту уступающий хорошей трехкомнатной квартире.

Вердикт: Это дом для тех, кто хочет произвести впечатление, но не планирует в нем жить. Покупая такой проект, вы покупаете не комфорт, а обязательства по обслуживанию 27 метров воды. Мое мнение: для реальной жизни в Подмосковье от этого проекта лучше бежать.

Куда идти за подробностями?

На моем Telegram-канале я выкладываю разборы реальных планировок — показываю «золотые» решения и те, от которых стоит бежать. Подписывайтесь, чтобы видеть дом глазами девелопера.

Если вы находитесь в поиске и не хотите тратить месяцы на просмотры неликвида, пройдите небольшой тест по этой ссылке. Это займет пару минут, и в результате вы получите индивидуальную подборку загородных объектов, которые подходят только под ваши критерии и бюджет.

А если у вас уже есть проект и вы хотите, чтобы я взглянул на него глазом эксперта — пишите мне в личные сообщения: @rodionsayf. Порой один вовремя перенесенный дверной проем на этапе чертежа экономит миллионы на этапе эксплуатации.