Добавить в корзинуПозвонить
Найти в Дзене

90% людей строят неудобные дома — посмотрите, как надо на 169 м²

Когда выбирают проект дома, чаще всего ищут баланс.
Чтобы не слишком большой - но и не тесный.
Чтобы было удобно каждый день - а не только красиво на картинке.
Именно таким получился этот дом площадью 169 м².
Оглавление

Когда выбирают проект дома, чаще всего ищут баланс.

Чтобы не слишком большой - но и не тесный.

Чтобы было удобно каждый день - а не только красиво на картинке.

Именно таким получился этот дом площадью 169 м².

Здесь нет лишних метров, но есть всё необходимое для комфортной жизни семьи.

Общая идея дома

Планировка построена по классическому и самому удобному принципу:

  • первый этаж - для жизни, общения и гостей
  • второй этаж - для отдыха и личного пространства

Это решение проверено временем - и именно его выбирают большинство семей.

Первый этаж — пространство для жизни

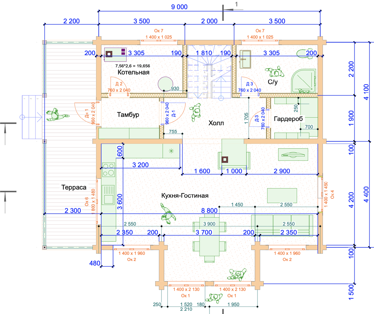
План 1 этажа
План 1 этажа

Главная особенность первого этажа — ощущение простора и логики.

Кухня-гостиная — центр дома

Просторная кухня-гостиная становится сердцем дома.

Здесь:

  • собирается семья
  • проходят ужины и праздники
  • создаётся основная атмосфера

Большие окна и выход на террасу делают пространство светлым и «живым».

Дом не замыкается внутри - он продолжает себя на участке.

Терраса — продолжение дома

-3

Терраса - это не просто дополнение.

Это:

  • утренний кофе на свежем воздухе
  • летние ужины
  • место отдыха после рабочего дня

Такие решения делают дом по-настоящему загородным.

Удобная входная зона

Тамбур, холл, гардероб - всё продумано для повседневного комфорта.

Это значит:

  • чистота в доме
  • удобство в любую погоду
  • логичное распределение пространства

Отдельная котельная

В проекте предусмотрено полноценное техническое помещение.

Это даёт:

  • удобство размещения оборудования
  • отсутствие шума в жилых зонах
  • запас по возможностям системы отопления

Второй этаж — пространство для отдыха

План 2 этажа
План 2 этажа

Второй этаж полностью отдан под приватную зону.

И это одно из главных достоинств проекта.

Комнаты для всей семьи

На этаже предусмотрены:

  • спальня
  • детские комнаты
  • дополнительная комната (гостевая или кабинет)

Такое решение позволяет:

  • каждому иметь своё пространство
  • сохранить тишину и комфорт

Удобная логика планировки

Центральный холл связывает все помещения.

Нет проходных комнат, нет лишних переходов.

Всё просто и удобно.

-5

Комфортные размеры

Комнаты не перегружены и не уменьшены «впритык».

В них достаточно места:

  • для мебели
  • для хранения
  • для жизни

Это особенно важно, когда дом используется круглый год.

Почему такие дома выбирают чаще всего

-6

Площадь 169 м² - это именно тот формат, который сегодня востребован.

Он даёт:

  • комфорт без лишних затрат на содержание
  • достаточно пространства для семьи
  • удобство ежедневной жизни

Это дом, который не нужно «обслуживать» - в нём просто живут.

-7

Вывод

Этот проект - хороший пример современного загородного дома:

  • без перегруженности
  • без лишних метров
  • с понятной и удобной логикой

Здесь всё сделано так, чтобы дом был не только красивым,

но и комфортным каждый день.

Наши проекты можно посмотреть на сайте:

КАМЕНЬДЕРЕВО

Если хотите обсудить строительство вашего дома - можно связаться напрямую:

📞 8-921-723-20-92 (Алексей)

Камень Дерево - строим дома, в которых живут.