Добавить в корзинуПозвонить
Найти в Дзене

Перепланировка квартиры в новостройке

Квартира 70 м², две спальни, кухня-гостиная, ванная и большой коридор. Газа нет. Внутренние стены — гипс, внешние — монолит. Соседи по стене, где спальня и кухня. Квартира угловая, второй этаж. Будут жить два человека, два кота и, возможно, когда-то ребенок и собака. Задача: сделать отдельный гардероб с входом НЕ через спальню. В ванной комнате уместить и душ, и ванну. Коридор хочется использовать функциональнее. И добавить маленький рабочий стол с компьютером в гостиной. Идея заказчика: вход в гардероб из коридора, забрав немного площади от спальни. В ванной вынести стиралку в коридор в мини-хозблок, тогда ванна по одной стороне от двери, душ — по другой. Но как будто пытаемся впихнуть слишком много 🤔» Интересный факт: окна гостиной выходят на лесопарк, поэтому гостиную-кухню хочется оставить здесь, чтобы при отдыхе смотреть на зелень 👉 Итоговое решение от нас: На входе выравниваем стены — так появляется полноценная закрытая гардеробная с отдельным входом из коридора. Именно то, что
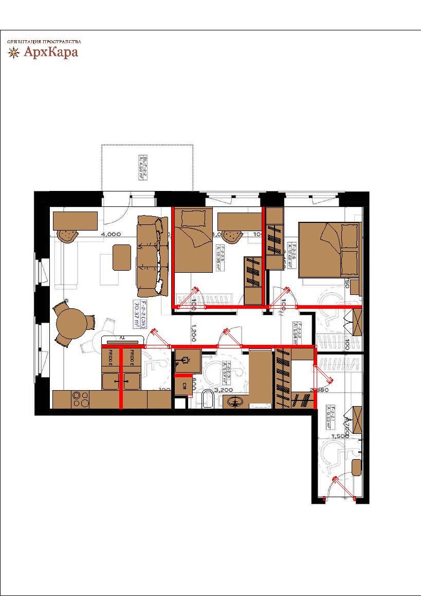
План квартиры с размещением мебели от застройщика
План квартиры с размещением мебели от застройщика

Квартира 70 м², две спальни, кухня-гостиная, ванная и большой коридор. Газа нет. Внутренние стены — гипс, внешние — монолит. Соседи по стене, где спальня и кухня. Квартира угловая, второй этаж.

Будут жить два человека, два кота и, возможно, когда-то ребенок и собака.

Задача: сделать отдельный гардероб с входом НЕ через спальню. В ванной комнате уместить и душ, и ванну. Коридор хочется использовать функциональнее. И добавить маленький рабочий стол с компьютером в гостиной.

Идея заказчика: вход в гардероб из коридора, забрав немного площади от спальни. В ванной вынести стиралку в коридор в мини-хозблок, тогда ванна по одной стороне от двери, душ — по другой. Но как будто пытаемся впихнуть слишком много 🤔»

Интересный факт: окна гостиной выходят на лесопарк, поэтому гостиную-кухню хочется оставить здесь, чтобы при отдыхе смотреть на зелень

Что получилось
Что получилось

👉 Итоговое решение от нас:

На входе выравниваем стены — так появляется полноценная закрытая гардеробная с отдельным входом из коридора. Именно то, что хотел заказчик: никаких проходов через спальню, всё под рукой при выходе из дома.

Ванную комнату увеличиваем за счет коридора и переноса стен комнат всего на 20 см. Этого оказывается достаточно, чтобы разместить и полноценную ванну, и отдельный душ. А еще здесь находится стойка для стиральной машины с зоной сушки над ней — никакой лишней мебели в коридоре, всё спрятано в мокрой зоне.

На кухне появляется закрытая кладовая за счет небольшого перераспределения площадей — удобный бонус для хранения круп, техники и корма для котов 😺

В гостиной рабочее место нашло свой угол рядом с балконной дверью — компьютер не мешает просмотру телевизора, потому что ТВ-зона вынесена на стену со стороны кухни. Диван расположен у стены напротив окон, так что вид на лесопарк остается главной фишкой пространства. Обеденный стол встал у простенка между окнами — свет, вид и удобная посадка в одной точке.

Телевизор и компьютер не пересекаются: пока один смотрит кино, второй может спокойно работать или играть. Все счастливы.

А вы как думаете: ванна + душ в одной комнате — это роскошь или необходимость? Делитесь мнением в комментариях 👇