Добавить в корзинуПозвонить
Найти в Дзене

10 вещей, которые делают дом удобным

Сохраните, чтобы не забыть перед ремонтом! Удобный интерьер — это про то, как вы живёте каждый день. Разберём базовые решения, которые действительно меняют качество жизни. 1. Продуманная планировка
Основа всего. Важно не количество комнат, а логика: где вы отдыхаете, работаете, принимаете гостей. 2. Достаточное количество хранения
Шкафов почти всегда не хватает. Закладывайте больше: встроенные системы, гардеробные, хозяйственные шкафы. 3. Розетки в нужных местах
Чтобы не было удлинителей по всей квартире, продумывайте розетки под сценарии жизни, а не «по стандарту». 4. Разные сценарии освещения
Один свет — всегда плохо. Нужны: общий, функциональный, атмосферный. Это влияет и на комфорт, и на восприятие интерьера. 5. Удобная кухня
Рабочий треугольник (мойка — плита — холодильник) должен быть логичным.
И обязательно — достаточная рабочая поверхность. 6. Мастер-блок (если позволяет площадь)
Спальня + гардеробная + санузел. Это уровень комфорта, к которому быстро привыкаешь. 7. Продуманная

Сохраните, чтобы не забыть перед ремонтом!

Удобный интерьер — это про то, как вы живёте каждый день. Разберём базовые решения, которые действительно меняют качество жизни.

Дизайн-проект в ЖК Остров
Дизайн-проект в ЖК Остров

1. Продуманная планировка
Основа всего. Важно не количество комнат, а логика: где вы отдыхаете, работаете, принимаете гостей.

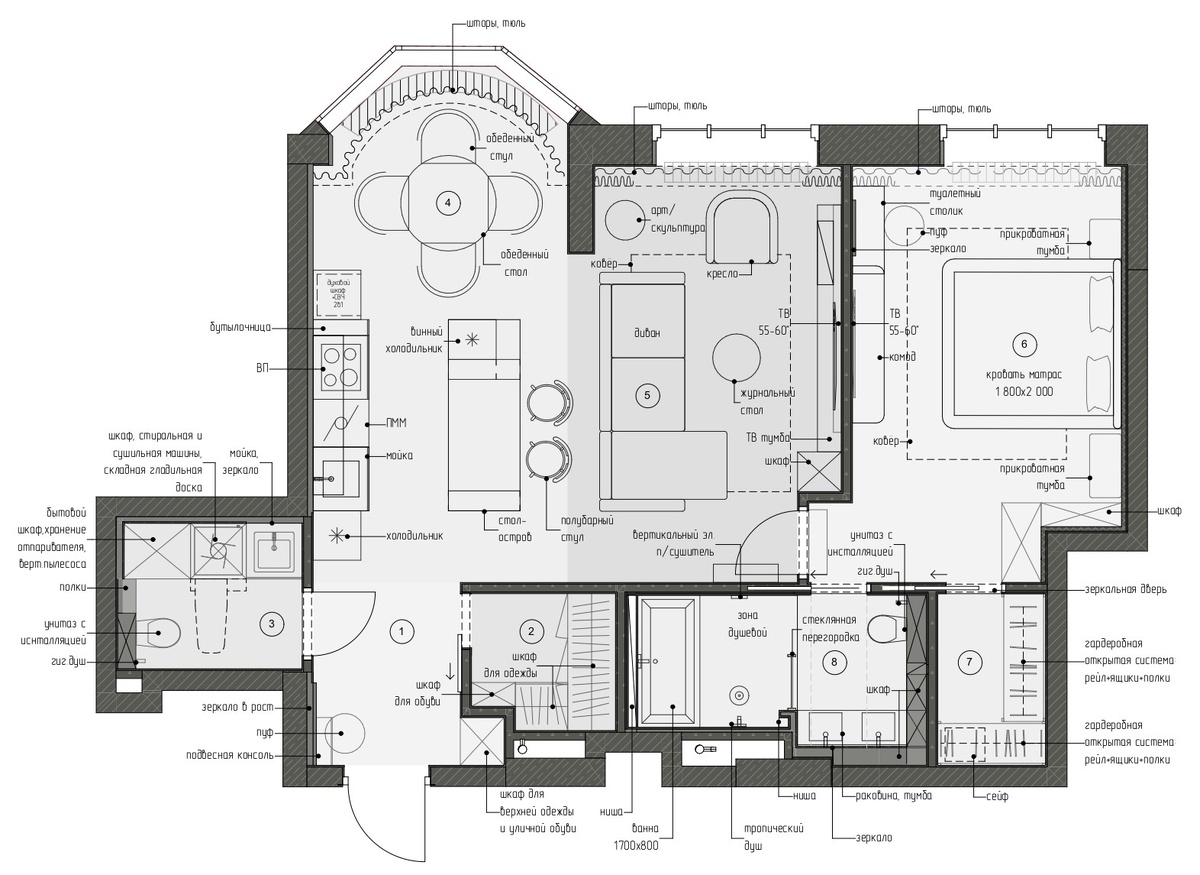
Планировочное решение в ЖК Full House
Планировочное решение в ЖК Full House

2. Достаточное количество хранения
Шкафов почти всегда не хватает. Закладывайте больше: встроенные системы, гардеробные, хозяйственные шкафы.

Дизайн-проект в ЖК Шагал
Дизайн-проект в ЖК Шагал
Дизайн-проект загородного дома
Дизайн-проект загородного дома

3. Розетки в нужных местах
Чтобы не было удлинителей по всей квартире, продумывайте розетки под сценарии жизни, а не «по стандарту».

Дизайн-проект загородного дома
Дизайн-проект загородного дома
Дизайн-проект загородного дома
Дизайн-проект загородного дома

4. Разные сценарии освещения
Один свет — всегда плохо. Нужны: общий, функциональный, атмосферный. Это влияет и на комфорт, и на восприятие интерьера.

Дизайн-проект в ЖК Диалог
Дизайн-проект в ЖК Диалог
Дизайн-проект в ЖК Диалог
Дизайн-проект в ЖК Диалог

5. Удобная кухня
Рабочий треугольник (мойка — плита — холодильник) должен быть логичным.
И обязательно — достаточная рабочая поверхность.

Дизайн-проект в ЖК Шагал
Дизайн-проект в ЖК Шагал

6. Мастер-блок (если позволяет площадь)
Спальня + гардеробная + санузел. Это уровень комфорта, к которому быстро привыкаешь.

Дизайн-проект в ЖК Остров
Дизайн-проект в ЖК Остров
Дизайн-проект в ЖК Остров
Дизайн-проект в ЖК Остров
Дизайн-проект в ЖК Остров
Дизайн-проект в ЖК Остров
Дизайн-проект в ЖК Остров
Дизайн-проект в ЖК Остров
Дизайн-проект в ЖК Остров
Дизайн-проект в ЖК Остров

7. Продуманная прихожая
Место, которое задаёт первое впечатление: где снять обувь, куда повесить одежду, где зеркало.

Дизайн-проект в ЖК Foriver
Дизайн-проект в ЖК Foriver
Дизайн-проект в ЖК Foriver
Дизайн-проект в ЖК Foriver
Дизайн-проект в ЖК Foriver
Дизайн-проект в ЖК Foriver

8. Хозяйственная зона
Постирочная, шкаф для бытовых вещей, место для хранения техники — это то, что убирает визуальный шум из интерьера.

Дизайн-проект загородного дома
Дизайн-проект загородного дома

9. Акустика и тишина
Звукоизоляция, мягкие материалы, текстиль — всё это влияет на ощущение уюта и отдыха.

10. Логика движения по квартире
Важно, чтобы ничего не мешало: двери не сталкивались, проходы были удобными, а пространство «читалось» интуитивно.

Дизайн-проект в ЖК Тринити
Дизайн-проект в ЖК Тринити
Дизайн-проект в ЖК Тринити
Дизайн-проект в ЖК Тринити
Дизайн-проект в ЖК Тринити
Дизайн-проект в ЖК Тринити

Получили ключи и думаете, с чего начать ремонт? Чтобы не тратить месяцы на поиски материалов и не ошибиться с планировкой, оставьте свои данные по ссылке.

✔️ Мы разработаем дизайн-проект, который учтёт ваши привычки, стиль жизни и поможет избежать лишних затрат.

И помните, хороший интерьер — это когда вы не замечаете, как он работает. Вы просто наслаждаетесь каждый день, проживая в нём.

Хобби
3,2 млн интересуются