Добавить в корзинуПозвонить
Найти в Дзене

ОЛОНЕЦ 201 м2- проект 6-комнатного дома для многодетной семьи.

✅ Проект готовый, условия заказа чертежей - на основном сайте Проект этого дома разработан для семей из нескольких поколений. Он подойдет и для многодетных семей, и для любителей принимать гостей, и даже может выполнять роль мини-гостиницы. Общая площадь помещений дома 201 м2, жилая - 176 м2 В доме есть все помещения для жизни людей разного возраста и темперамента: большие общие комнаты первого этажа и веранда, шесть спален, размещённых на разных уровнях дома и имеющих разную площадь (при этом второй этаж может, например, быть полностью «детским»), хозяйственные помещения цокольного этажа, просторная прихожая. Все комнаты дома достаточно, но не излишне, просторны и удобно расположены, что позволило вместить столько помещений в очень компактный дом. Большую часть первого этажа занимает единое пространство кухни-столовой и каминной. Здесь же спальня для гостей и санузел. При желании общее пространство может быть разделено перегородками. Из столовой можно выйти на веранду. Над хозяйствен
Оглавление

✅ Проект готовый, условия заказа чертежей - на основном сайте

Проект этого дома разработан для семей из нескольких поколений. Он подойдет и для многодетных семей, и для любителей принимать гостей, и даже может выполнять роль мини-гостиницы. Общая площадь помещений дома 201 м2, жилая - 176 м2

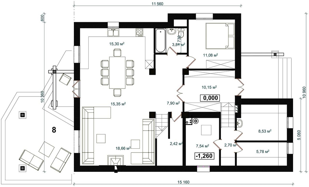
Планы и внутреннее пространство.

В доме есть все помещения для жизни людей разного возраста и темперамента: большие общие комнаты первого этажа и веранда, шесть спален, размещённых на разных уровнях дома и имеющих разную площадь (при этом второй этаж может, например, быть полностью «детским»), хозяйственные помещения цокольного этажа, просторная прихожая.

Все комнаты дома достаточно, но не излишне, просторны и удобно расположены, что позволило вместить столько помещений в очень компактный дом.

Большую часть первого этажа занимает единое пространство кухни-столовой и каминной. Здесь же спальня для гостей и санузел. При желании общее пространство может быть разделено перегородками. Из столовой можно выйти на веранду.

-2

Над хозяйственным цоколем устроена жилая комната с отдельным санузлом, которая будет удобна для старшего поколения или молодой семьи с малышом.

На мансарде расположены четыре спальни с ванной комнатой и просторный холл. Пропорции комнат и продуманное размещение проемов позволяют удобно разместить мебель.

-3

Небольшая ширина дома делает возможным его строительство на узких участках.

Привязка к участку.

Дом выглядит нарядно со всех сторон. Полифасадность архитектуры и небольшие габариты позволят удачно «вживить» его в участки различной конфигурации, площади и ориентации по сторонам света. Небольшая ширина делает возможным строительство на узких и небольших участках.

  • Заказать документацию можно на страничке проекта дома на сайте бюро ИНВАПОЛИС. Проект разработан в составе "Паспорт + строительный раздел"

► Чтобы не пропускать публикации, реагируйте лайком 👍 и подписывайтесь на канал, комментируйте, тогда нейросети будут показывать нас вам чаще :)

► Получать обзоры наших проектов и следить за новостями и можно также в ТЕЛЕГРАММ-КАНАЛЕ  или МАКСе ИНВАПОЛИС

Брак
50,3 тыс интересуются