Найти в Дзене

Проект индивидуального жилого дома DTE-53

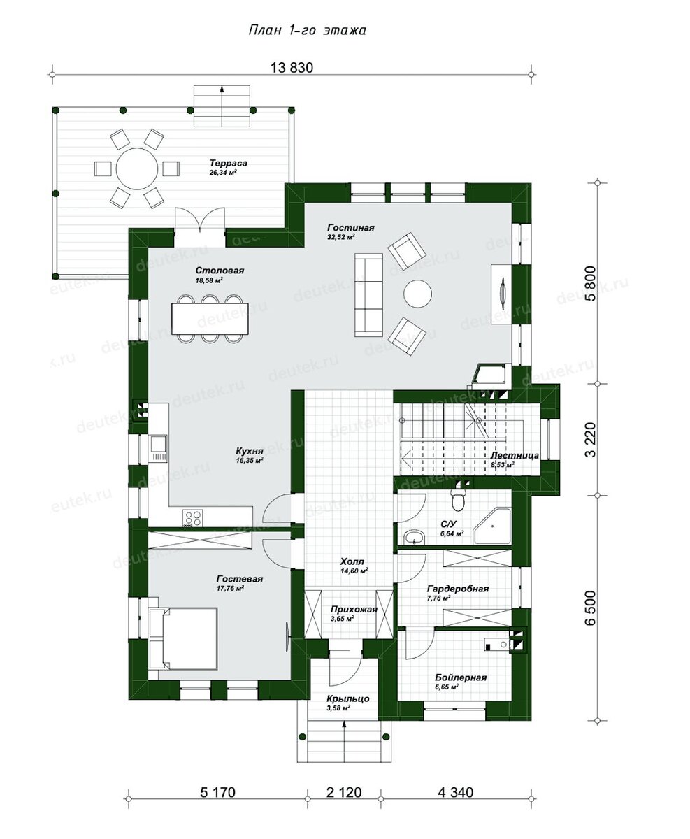
Номер проекта: DTE-53 Разделы проекта: Архитектурный и Конструктивный разделы Заказать проект можно на сайте deutek.ru или по телефону +7 (495) 175-30-40 Другие проекты можете посмотреть в этом разделе https://zen.yandex.ru/proektirovaniedomov Предлагаем проект двухэтажного жилого дома с пятью спальнями. Коттедж выполнен в евростиле, общей площадью 297 м2 и габаритами 13.83 x 18.92 м. Подойдет для большой семьи численностью 5-6 человек, а также в качестве загородного дома отдыха. Состав помещений: 5 спален (в том числе 2 гостевые), гостиная, столовая, кухня, санузел, 2 ванные, гардеробная, бойлерная, холлы. В публичном пространстве первого яруса выделена гостиная (32,5 м2) с камином, столовая (18,5 м2, есть выход на террасу) и кухня (16 м2, расположена недалеко от входа, с отдельной дверью из холла). С кухней граничит гостевая, с окнами на главный и боковой фасады. Слева от холла — техслужбы: бойлерная, вместительная гардеробная, санузел. В прихожей с двух сторон можно установить шкафы
Номер проекта: DTE-53
Разделы проекта: Архитектурный и Конструктивный разделы
Заказать проект можно на сайте deutek.ru или по телефону
+7 (495) 175-30-40
Другие проекты можете посмотреть в этом разделе
https://zen.yandex.ru/proektirovaniedomov
  • Общая площадь: 297.47 м2;
  • Габариты дома: 13.83 x 18.92 м;
  • Этажность: 2;
  • Фундамент: фундаментная ж/б плита 300 мм;
  • Материал стен: керамический блок 440 мм;
  • Перекрытия: монолитная ж.б. плита 180 мм;
  • Крыша: вальмовая, многоскатная;
  • Кровля: металлочерепица;
  • Фасад: кирпич облицовочный, фасадная штукатурка;
  • Стиль: европейский.

Предлагаем проект двухэтажного жилого дома с пятью спальнями. Коттедж выполнен в евростиле, общей площадью 297 м2 и габаритами 13.83 x 18.92 м. Подойдет для большой семьи численностью 5-6 человек, а также в качестве загородного дома отдыха. Состав помещений: 5 спален (в том числе 2 гостевые), гостиная, столовая, кухня, санузел, 2 ванные, гардеробная, бойлерная, холлы.

-2

В публичном пространстве первого яруса выделена гостиная (32,5 м2) с камином, столовая (18,5 м2, есть выход на террасу) и кухня (16 м2, расположена недалеко от входа, с отдельной дверью из холла). С кухней граничит гостевая, с окнами на главный и боковой фасады. Слева от холла — техслужбы: бойлерная, вместительная гардеробная, санузел. В прихожей с двух сторон можно установить шкафы-купе.

-3

На втором этаже выделяется размерами холл — 31 м2. Для главной спальни отведено 26 м2, собственная ванная и балкон. Для остальных жильцов предусмотрена общая ванная, гостевая отмечена мини-балконом. Часть холла между спальнями можно отгородить — получится уютный светлый кабинет.

Преимущества проекта: построив такой дом, вы сможете переселиться туда всей большой семьей; или же приезжать на каникулы, в отпуск и в выходные. Комфортабельное жилье со всеми удобствами — лучшее дополнение к тишине и чистому воздуху загорода. Из функциональных плюсов — уютная крытая терраса, спальня на первом этаже, просторная дневная зона и большой холл верхнего яруса. Технические решения, дизайн Коттедж возводится из керамоблоков 440, на фундаментной ж/б плите с монолитно-плитными ж/б перекрытиями. Наружная отделка — красно-коричневый облицовочный кирпич баварская кладка, декоративные элементы выделены белой штукатуркой. Многоскатная кровля покрыта металлочерепицей. Из интересных элементов экстерьера отметим: ризалиты с полуфронтонами; Сблокированные окна; окна с расстекловкой; французские балконы; крестообразные ограждения; углубленное крыльцо с двумя колоннами и отдельной крышей.

Проект индивидуального жилого дома

Подробнее с проектом можно ознакомиться на сайте deutek.ru

Подписывайтесь на канал, ставьте лайки.