Добавить в корзинуПозвонить
Найти в Дзене

#Анатомия_проекта | Выпуск 3

Пока мы с Денисом и Алисой будем утверждать мудборды и подбирать оттенки, стройка не встанет на паузу. Как так? Очень просто: альбом рабочих чертежей ушёл в работу. Почему это важно? Даже если вы точно знаете, какие обои будете клеить и где будет стоять кровать, без чертежей строители сделают это «на глаз». А «на глаз» в эргономике не работает. Вот какие планы из альбома уже на руках у бригады (и почему они критичны именно для этой спальни + лоджии 4,5 м²): 📐 План возводимых перегородок Мы запроектировали отдельную гардеробную с полноростовым зеркалом. Перегородка уже выставлена, и никто не «перенесёт её на 10 см влево», потому что на чертеже есть точная привязка. 🔌 План розеток Розетки у кровати — для зарядки, розетки у подвесного стола Алисы — для фена и ноутбука, розетки в игровой зоне Дениса — для PS и ТВ. И да, розетка для гирлянды под окном. Всё зафиксировано. Без плана про гирлянду бы забыли вспомнили только накануне Нового года. 💡 План освещения Три сценария: - Общий

#Анатомия_проекта | Выпуск 3

Пока мы с Денисом и Алисой будем утверждать мудборды и подбирать оттенки, стройка не встанет на паузу.

Как так? Очень просто: альбом рабочих чертежей ушёл в работу.

Почему это важно? Даже если вы точно знаете, какие обои будете клеить и где будет стоять кровать, без чертежей строители сделают это «на глаз». А «на глаз» в эргономике не работает.

Вот какие планы из альбома уже на руках у бригады (и почему они критичны именно для этой спальни + лоджии 4,5 м²):

📐 План возводимых перегородок

Мы запроектировали отдельную гардеробную с полноростовым зеркалом. Перегородка уже выставлена, и никто не «перенесёт её на 10 см влево», потому что на чертеже есть точная привязка.

🔌 План розеток

Розетки у кровати — для зарядки, розетки у подвесного стола Алисы — для фена и ноутбука, розетки в игровой зоне Дениса — для PS и ТВ. И да, розетка для гирлянды под окном. Всё зафиксировано. Без плана про гирлянду бы забыли вспомнили только накануне Нового года.

💡 План освещения

Три сценария:

- Общий свет (потолочная люстра) — для уборки и сборов.

- Рабочий свет — над зеркалом Алисы (4000K, нейтральный).

- Свет для отдыха — бра у кровати и подсветка закарнизных ниш.

Каждая лампа на своём месте, каждый выключатель — в зоне досягаемости.

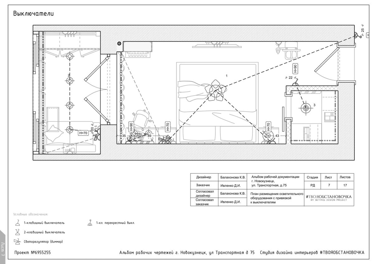
🎛 План привязки выключателей к осветительным приборам

Это связка, которая часто «забывается». Например: выключатель у входа включает общий свет, а перекрестные с каждой стороны кровати его выключают. На бра у кровати у каждого свой выключатель. И никакого «ой, а почему эта кнопка зажигает не ту лампу?».

🌡 План тёплых полов

На лоджии — электрический тёплый пол под SPC-плитку (она выбрана за износостойкость и аллергическую безопасность). Зона прогрева, расположение терморегулятора — всё на чертеже.

❄️ План кондиционеров

Сплит-система в спальне — так, чтобы холодный воздух не дул на кровать. Внутренний блок спрятали в короб над стеллажом, который придает композиции эстетически-законченный вид.

🪵 План напольных покрытий

Спальня и лоджия — SPC-плитка (влагостойкость, легко мыть). Направление укладки — всё размечено. Строители могут подготовить черновой пол с учётом характеристик выбранного покрытия.

🧱 План отделки стен

Где обои, где краска, где стеновые декоративные панели. И главное — строители теперь могут обеспечить соответствующее качество отделки.

⬆️ План устройства потолков

Натяжной потолок в спальне и на лоджии, чтобы скрыть проводку и нивелировать неровности). Опуск потолков, закладные под шторы — всё есть.

📄 Развёртки стен всех помещений. Это святая святых. На развёртках показано:

Где висит зеркало (высота, отступ от стола).

Где розетка у кровати (не за изголовьем, а сбоку).

Как встроен стеллаж в нишу.

Куда выведена подсветка гардеробной.

Без развёрток рабочие могут повесить зеркало на 10 см выше, и оно будет неудобно.

Что в итоге?

Строители уже штробят стены под розетки, монтируют перегородку гардеробной и укладывают тёплый пол. А мы спокойно дорабатываем колористику и мудборды. Никто никого не ждёт, никто не гадает «как же это будет выглядеть».

Альбом рабочих чертежей — это мост между «хочу» и «будет». Без него даже идеальный бриф и крутая планировка превращаются в хаос на стройке.

🎬 Хотите посмотреть полный альбом чертежей для этой спальни и лоджии?

Вот ссылка на просмотр (PDF, 16 листов)

Дальше — расскажу, как из чертежей родился цвет: колористический паспорт и мудборды. Следите за #Анатомия_проекта 👇

-2
-3