Найти Π² Π”Π·Π΅Π½Π΅
АртБтрой

🏑 Новый ΠΏΡ€ΠΎΠ΅ΠΊΡ‚ каркасного Π΄ΠΎΠΌΠ° с ΠΏΠ°Π½ΠΎΡ€Π°ΠΌΠ½Ρ‹ΠΌ остСклСниСм

Π‘ΠΎΠ²Ρ€Π΅ΠΌΠ΅Π½Π½Ρ‹ΠΉ Π΄ΠΎΠΌ, Π² ΠΊΠΎΡ‚ΠΎΡ€ΠΎΠΌ ΡΠΎΡ‡Π΅Ρ‚Π°ΡŽΡ‚ΡΡ простор, свСт ΠΈ ΠΊΠΎΠΌΡ„ΠΎΡ€Ρ‚ ✨ ΠŸΠ°Ρ€Π°ΠΌΠ΅Ρ‚Ρ€Ρ‹: β–ͺ️ Ρ€Π°Π·ΠΌΠ΅Ρ€Ρ‹: 11 Γ— 15 ΠΌ β–ͺ️ ΠΏΠ»ΠΎΡ‰Π°Π΄ΡŒ Ρ‚Ρ‘ΠΏΠ»ΠΎΠ³ΠΎ ΠΊΠΎΠ½Ρ‚ΡƒΡ€Π°: 130 ΠΌΒ² ΠŸΠ»Π°Π½ΠΈΡ€ΠΎΠ²ΠΊΠ°: β–ͺ️ просторная кухня-гостиная β–ͺ️ 3 спальни β–ͺ️ 3 санузла - ΡƒΠ΄ΠΎΠ±Π½ΠΎ для сСмьи ΠΈ гостСй β–ͺ️ 2 тСррасы для ΠΎΡ‚Π΄Ρ‹Ρ…Π° ΠΈ ΡƒΡŽΡ‚Π° Π½Π° свСТСм Π²ΠΎΠ·Π΄ΡƒΡ…Π΅ β˜€οΈ ΠŸΠ°Π½ΠΎΡ€Π°ΠΌΠ½ΠΎΠ΅ остСклСниС наполняСт Π΄ΠΎΠΌ свСтом ΠΈ Π²ΠΈΠ·ΡƒΠ°Π»ΡŒΠ½ΠΎ Ρ€Π°ΡΡˆΠΈΡ€ΡΠ΅Ρ‚ пространство - идСально для Π·Π°Π³ΠΎΡ€ΠΎΠ΄Π½ΠΎΠΉ ΠΆΠΈΠ·Π½ΠΈ. Π₯ΠΎΡ‚ΠΈΡ‚Π΅ ΡƒΠ·Π½Π°Ρ‚ΡŒ подробности, ΠΊΠΎΠΌΠΏΠ»Π΅ΠΊΡ‚Π°Ρ†ΠΈΡŽ ΠΈ сроки ΡΡ‚Ρ€ΠΎΠΈΡ‚Π΅Π»ΡŒΡΡ‚Π²Π°? ΠΠ°ΠΏΠΈΡˆΠΈΡ‚Π΅ Π½Π°ΠΌ Π² Π»ΠΈΡ‡Π½Ρ‹Π΅ сообщСния - всё расскаТСм πŸ“©

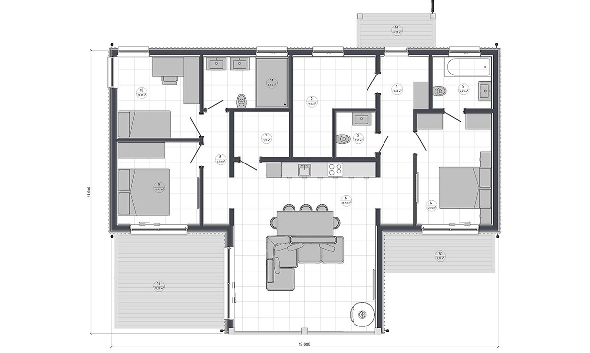
🏑 Новый ΠΏΡ€ΠΎΠ΅ΠΊΡ‚ каркасного Π΄ΠΎΠΌΠ° с ΠΏΠ°Π½ΠΎΡ€Π°ΠΌΠ½Ρ‹ΠΌ остСклСниСм

Π‘ΠΎΠ²Ρ€Π΅ΠΌΠ΅Π½Π½Ρ‹ΠΉ Π΄ΠΎΠΌ, Π² ΠΊΠΎΡ‚ΠΎΡ€ΠΎΠΌ ΡΠΎΡ‡Π΅Ρ‚Π°ΡŽΡ‚ΡΡ простор, свСт ΠΈ ΠΊΠΎΠΌΡ„ΠΎΡ€Ρ‚ ✨

ΠŸΠ°Ρ€Π°ΠΌΠ΅Ρ‚Ρ€Ρ‹:

β–ͺ️ Ρ€Π°Π·ΠΌΠ΅Ρ€Ρ‹: 11 Γ— 15 ΠΌ

β–ͺ️ ΠΏΠ»ΠΎΡ‰Π°Π΄ΡŒ Ρ‚Ρ‘ΠΏΠ»ΠΎΠ³ΠΎ ΠΊΠΎΠ½Ρ‚ΡƒΡ€Π°: 130 ΠΌΒ²

ΠŸΠ»Π°Π½ΠΈΡ€ΠΎΠ²ΠΊΠ°:

β–ͺ️ просторная кухня-гостиная

β–ͺ️ 3 спальни

β–ͺ️ 3 санузла - ΡƒΠ΄ΠΎΠ±Π½ΠΎ для сСмьи ΠΈ гостСй

β–ͺ️ 2 тСррасы для ΠΎΡ‚Π΄Ρ‹Ρ…Π° ΠΈ ΡƒΡŽΡ‚Π° Π½Π° свСТСм Π²ΠΎΠ·Π΄ΡƒΡ…Π΅ β˜€οΈ

ΠŸΠ°Π½ΠΎΡ€Π°ΠΌΠ½ΠΎΠ΅ остСклСниС наполняСт Π΄ΠΎΠΌ свСтом ΠΈ Π²ΠΈΠ·ΡƒΠ°Π»ΡŒΠ½ΠΎ Ρ€Π°ΡΡˆΠΈΡ€ΡΠ΅Ρ‚ пространство - идСально для Π·Π°Π³ΠΎΡ€ΠΎΠ΄Π½ΠΎΠΉ ΠΆΠΈΠ·Π½ΠΈ.

Π₯ΠΎΡ‚ΠΈΡ‚Π΅ ΡƒΠ·Π½Π°Ρ‚ΡŒ подробности, ΠΊΠΎΠΌΠΏΠ»Π΅ΠΊΡ‚Π°Ρ†ΠΈΡŽ ΠΈ сроки ΡΡ‚Ρ€ΠΎΠΈΡ‚Π΅Π»ΡŒΡΡ‚Π²Π°?

ΠΠ°ΠΏΠΈΡˆΠΈΡ‚Π΅ Π½Π°ΠΌ Π² Π»ΠΈΡ‡Π½Ρ‹Π΅ сообщСния - всё расскаТСм πŸ“©

-2
-3
-4
-5