Добавить в корзинуПозвонить
Найти в Дзене

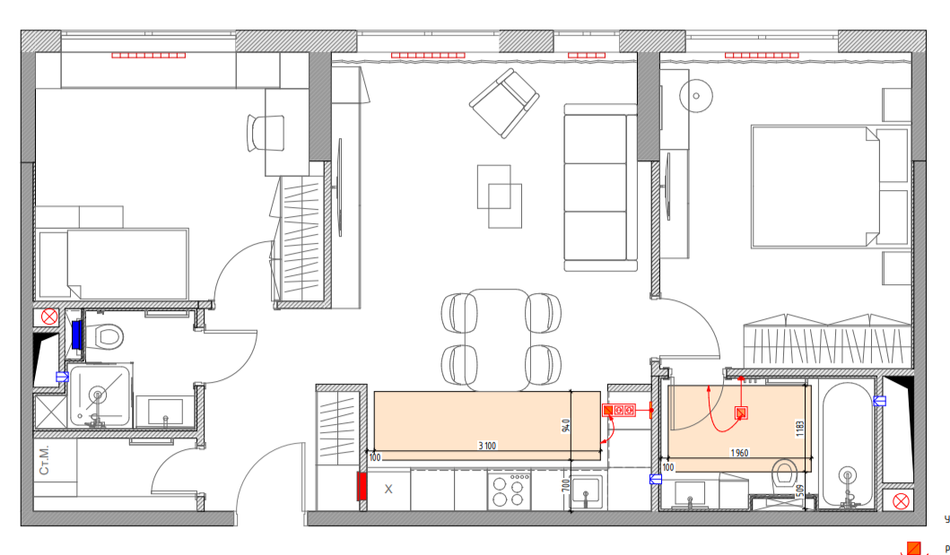
2-комнатная квартира с нестандартной планировкой!

Необычные планировки современных квартир давно не редкость, и сегодняшняя «двушка» у нас с проходной кухней-гостиной. Предлагаем вам оценить то, насколько удобной получилась итоговая планировка. Начнем с цветовой гаммы, в этой квартире она традиционная для многих современных интерьеров – базовый цвет здесь бежевый. Если говорить про общественное пространство квартиры, то здесь бежевый сочетается с глубоким синим оттенком. Его немного, но за счет своей глубины и приглушенной яркости он легко доминирует над базовыми цветами. Отделка стен прихожей, в частности откосов, керамогранитом – это лучшее, что придумано на сегодня. Такой вариант избавит вас от потертостей и царапин, которые обязательно появляются на окрашенных поверхностях. МДФ более «живучий» вариант, но только если в доме нет собак или кошек. В зоне прихожей расположена дверь – это постирочная, ну или прачечная, кому как нравится. Изначально тут была кладовая на 3,7 м2, а рядом маленький туалет. После планировки осталась прачечн

Необычные планировки современных квартир давно не редкость, и сегодняшняя «двушка» у нас с проходной кухней-гостиной. Предлагаем вам оценить то, насколько удобной получилась итоговая планировка.

Портфолио Remplanner
Портфолио Remplanner

Начнем с цветовой гаммы, в этой квартире она традиционная для многих современных интерьеров – базовый цвет здесь бежевый. Если говорить про общественное пространство квартиры, то здесь бежевый сочетается с глубоким синим оттенком. Его немного, но за счет своей глубины и приглушенной яркости он легко доминирует над базовыми цветами.

Отделка стен прихожей, в частности откосов, керамогранитом – это лучшее, что придумано на сегодня. Такой вариант избавит вас от потертостей и царапин, которые обязательно появляются на окрашенных поверхностях. МДФ более «живучий» вариант, но только если в доме нет собак или кошек.

Портфолио Remplanner
Портфолио Remplanner

В зоне прихожей расположена дверь – это постирочная, ну или прачечная, кому как нравится. Изначально тут была кладовая на 3,7 м2, а рядом маленький туалет. После планировки осталась прачечная на 2,2 м2 и появился полноценный санузел площадью 3 м2.

Размер этой прачечной всего 224х100 см, это площадь, которую можно выделить в большинстве квартир. При этом сюда вынесена вся техника: стиральная и сушильная машина, все для глажки и пылесосы. Здесь же организовано место хранения бытовой химии и инвентаря для уборки.

Электрический полотенцесушитель в сочетании с настенной сушилкой позволяет сушить вещи, которые нельзя класть в сушильную машину, или просто разные мелочи, ради которых нет смысла ее запускать.

Портфолио Remplanner
Портфолио Remplanner

Стоит ли выделить место под все перечисленное? Определенно, если площадь квартиры позволяет.

Соседний санузел оформлен в более темной бежево-коричневой гамме. Здесь довольно традиционный выбор цвета: плитка под мрамор является базой, черные элементы – акценты, и мебельные фасады орехового цвета служат компаньоном.

Здесь нет никаких неожиданных решений, только проверенные временем: поддон из плитки с небольшим бортиком, встроенные полки, тоже из плитки, встроенные смесители – лаконичная эстетика.

Портфолио Remplanner
Портфолио Remplanner

Далее у нас детская для девочки-подростка. Комната светлая, оформлена с уклоном в неоклассику, декоративные элементы украшают потолок и стены. Чтобы добавить красок, в зоне кровати сделали несколько вставок с цветными обоями, рисунок и цветовая гамма подбирались под проект. Ну и обратите внимание на светильники!

Не устанем повторять – в детской очень важно разделять спальное место и зону отдыха. Прежде всего это позволяет детям общаться с их гостями в комфортной обстановке: расположившись на креслах, диванчике или, как в этом случае, в мягкой зоне у окна.

Кровать – это приватная зона, а не место, куда стоит усаживать гостей. В данном проекте спальное место у нас дополнительно зонировано с помощью тумбы с книжными полками.

Ну и рабочий стол, расположенный в углу у окна, компактно вписан в общее пространство комнаты. Он встроен в нишу между двумя шкафами, один для одежды, второй для учебных материалов, игрушек и прочего.

Портфолио Remplanner
Портфолио Remplanner

В комнате площадью 13 м2 максимально продуманное хранение. Оно занимает минимум места, но при этом вмещает очень много. В основном за счет использования всей зоны вокруг окна. Кстати, если планируете подобное оформление, не забывайте про обязательные вентиляционные отверстия в цоколе мебельной конструкции и на подоконнике – только так будет работать принцип конвекции, и в комнате будет тепло.

Портфолио Remplanner
Портфолио Remplanner

Переходим в самую большую комнату в квартире – кухню-гостиную. Как уже было сказано, она проходная.

Портфолио Remplanner
Портфолио Remplanner

Справа зона кухни, в центре обеденная, слева гостиная, на все 26,5 м2. Кухня выглядит симметричной, хотя имеет угловую конфигурацию. Эффект достигнут за счет фальш стенок, одна закрывает поворотную часть кухни, вторая – шкафы в прихожей. Обе шириной 65 см и смотрятся как две колонны, между которых встроена кухня. Дополнительным обрамлением служит опущенный на 15 см потолок (в нем скрыт вентканал вытяжки) и граница, на которой соединяется плитка кухонной зоны с паркетом пространства столовой и гостиной.

Наполнение традиционное: встроенная техника, мойка подстольного монтажа. Есть достаточно свободного места для готовки и расположения мелкой техники. Хранение объемное, в три яруса. Фасады комбинированные, МДФ под покраску. Основная часть гладкая, фасады навесных модулей с фрезеровкой и металлической вставкой в цвет светильников.

Портфолио Remplanner
Портфолио Remplanner

Столовая зона максимально компактная, учитывая, что расположена она почти на проходе. Мягкие полукресла и стол с закругленными углами – отличный вариант для такого расположения. Их плавные формы проще и безопаснее обходить, чем мебель с острыми углами.

Портфолио Remplanner
Портфолио Remplanner

Гостиная с синими вставками и трехмерными панелями выглядит современно и уютно. Она небольшая, ее границы обозначены ковром, мебели немного, но диван и кресло довольно объемные.

Позади дивана, в синем цвете – несущая колонна, увеличивать до ее толщины межкомнатную перегородку мы не стали, просто добавили в получившееся пространство за диваном консоль. На ней удобно разместить вазу с цветами, положить пульт или книгу.

Портфолио Remplanner
Портфолио Remplanner

Финальная часть квартиры – мастер-спальня, от обычной ее отличает наличие отдельного санузла. С него и начнем.

Портфолио Remplanner
Портфолио Remplanner

Это ванная комната площадью 5,3 м2. Первое, что отметим – двухуровневый потолок. На первый взгляд, это чисто декоративное решение, чтобы немного сбалансировать высоту небольшого и узкого помещения, но в реальности оно чисто функциональное.

Портфолио Remplanner
Портфолио Remplanner

Вентиляционная шахта расположена в углу слева, где стоит ванна, а кухня находится за стенкой справа. Было три варианта: опустить весь потолок, опустить только часть шириной 20-30 см или сделать двухуровневый потолок с опуском по всему периметру. Выбрали третий вариант за его эстетику.

Портфолио Remplanner
Портфолио Remplanner

Цветовая гамма здесь светлее, чем в санузле с душевой. Здесь использовано три вида плитки, акцентная в зоне тумбы с раковиной. Кстати, самостоятельно создать дизайн-проект ванной комнаты и рассчитать количество плитки в разных вариантах раскладки можно в онлайн-планировщике Remplanner.

Портфолио Remplanner
Портфолио Remplanner

Если в душевой у нас более темная плитка сочетается с ореховым цветом мебельных панелей, то здесь для элементов мебели использована эмаль светло-серого цвета. Она подходит к выбранной цветовой гамме и хорошо сочетается с латунным цветом, который здесь выбран для акцентных деталей интерьера и сантехники.

С точки зрения планировки тут тоже ничего необычного: ванна со сливом в центре, для удобного доступа к сифону, и стеклянной ширмой. В шкафчике над инсталляцией организовано хранение, а вместо полотенцесушителя используется система теплого пола.

Портфолио Remplanner
Портфолио Remplanner

Из ванной комнаты попадаем сразу в спальню – светлое помещение в классическом стиле, с неброскими акцентами.

Кровать – традиционный центр всей планировки. Ее обрамляют подвесные тумбы и настольные лампы с оригинальным дизайном. Динамику стен обеспечивают молдинги, которые превращают плоские стены в почти рельефные.

Большой шкаф для одежды, разделенный на две секции, и тумба под телевизором служат основным местом хранения вещей. Такой объем хранения не всем подойдет, поскольку предполагает минимализм и своевременное расхламление пространства. Если вы пока не овладели этими навыками, советуем уделить время поиску возможности вписать гардеробную или даже две в пространство квартиры.

На этом обзор квартиры завершаем, по вопросам, связанным с индивидуальным дизайн-проектом, можете оставлять заявку у нас на сайте. Если ищете идеи для ремонта – загляните в наше портфолио. Ну а если вы хотите создать дизайн-проект самостоятельно, вам точно пригодится наш планировщик Remplanner. Удачи вам в поисках решений и проведении ремонта!