Добавить в корзинуПозвонить
Найти в Дзене
VOLDOMA

Дом по проекту БД-66 от VOLDOMA

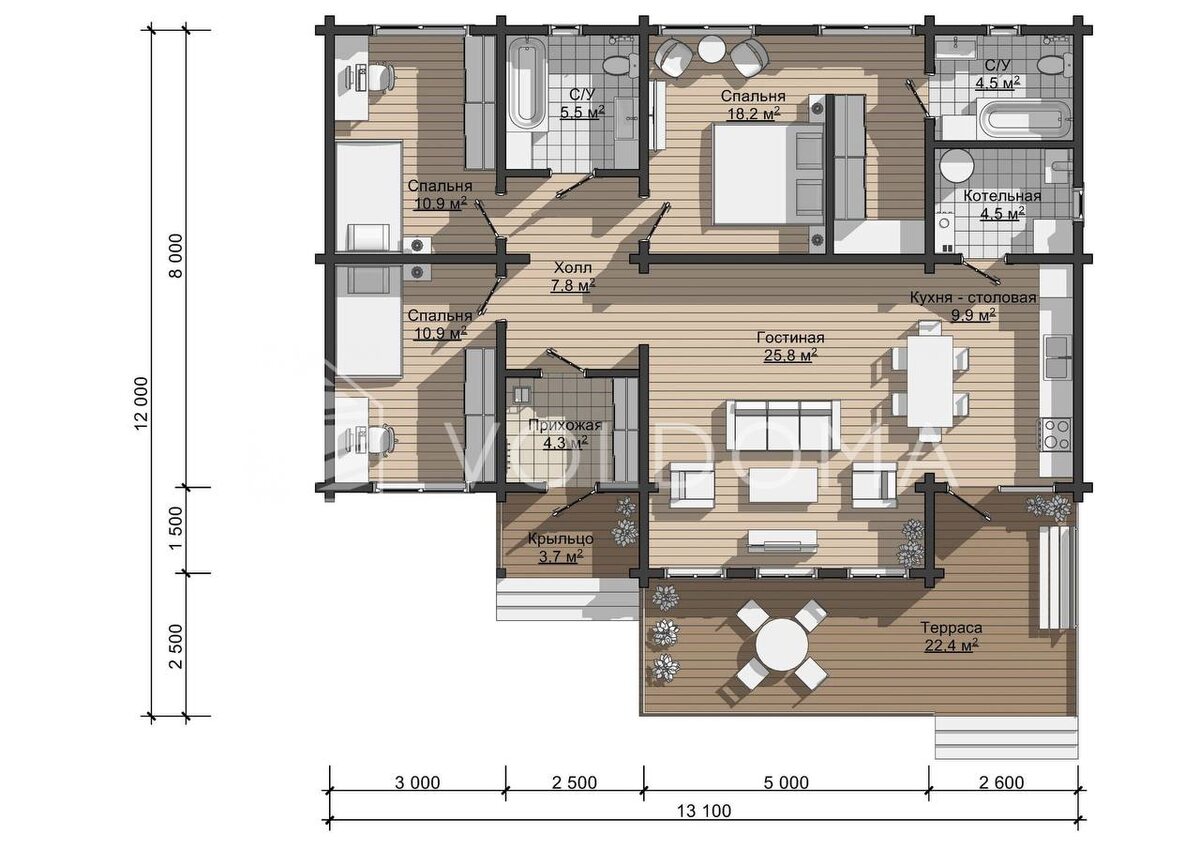
Если цените пространство и автономию, настоящее качество жизни, то таким местом может стать этот загородный дом. Компания VOLDOMA представляет просторный, светлый одноэтажный дом из клееного бруса — БД-66. Характеристики: • Площадь: 129 м² • Размер: 12мх13 м • Этажность: 1 • Санузлов: 2 • Материал стен: клееный брус производства АО «Сокольский ДОК», Сегежа Групп • Фундамент: железобетонные сваи • Кровля: металлочерепица GrandLine 0,5 мм. Строим с отделкой и инженерными коммуникациями за 4 месяца. Этот проект – не просто дом, а гармоничное пространство, где каждая деталь продумана для уюта, света и тепла. - Кухня-гостиная в 35,7 м2 – это душа дома, где легко дышится. Большие окна, высокие потолки – здесь будет светло даже в хмурый день. Это место, где собирается вся семья, где можно принять гостей или просто провести вечер за книгой. Место для кулинарных шедевров и задушевных разговоров за чашкой чая. Удобная планировка и близость с котельной позволяет организовать пространство так

Дом по проекту БД-66 от VOLDOMA.

Если цените пространство и автономию, настоящее качество жизни, то таким местом может стать этот загородный дом.

Компания VOLDOMA представляет просторный, светлый одноэтажный дом из клееного бруса — БД-66.

Характеристики:

• Площадь: 129 м²

• Размер: 12мх13 м

• Этажность: 1

• Санузлов: 2

• Материал стен: клееный брус производства АО «Сокольский ДОК», Сегежа Групп

• Фундамент: железобетонные сваи

• Кровля: металлочерепица GrandLine 0,5 мм.

Строим с отделкой и инженерными коммуникациями за 4 месяца.

Этот проект – не просто дом, а гармоничное пространство, где каждая деталь продумана для уюта, света и тепла.

- Кухня-гостиная в 35,7 м2 – это душа дома, где легко дышится. Большие окна, высокие потолки – здесь будет светло даже в хмурый день. Это место, где собирается вся семья, где можно принять гостей или просто провести вечер за книгой. Место для кулинарных шедевров и задушевных разговоров за чашкой чая. Удобная планировка и близость с котельной позволяет организовать пространство так, чтобы всё было под рукой.

- 3 спальни: две по 10,9 м2 и мастер-спальня - 18,2 м2+с/у 4,5м2. Это уже не просто комната, а настоящие личные апартаменты. Здесь можно разместить не только кровать и шкаф, но и зону для чтения, рабочий уголок, тренажёр или будуар.

- Терраса 22,4 м2 – продолжение гостиной под открытым небом. Фактически – ещё одна комната, но без стен. Летняя столовая, место для утренней зарядки, чтения в шезлонге или вечерних посиделок. Дом не заканчивается стенами – он живёт и на улице.

Преимущества:

- Одноэтажность: никаких лестниц, безопасно для детей и комфортно для взрослых.

- Грамотное зонирование: «тихие» спальни отдельно от шумной гостиной и кухни.

- Свет и воздух: окна на несколько сторон и выход на террасу делают дом живым и солнечным.

- Практичность: два санузла, отдельная котельная – комфорт и порядок в доме.

- Экономичная площадь: мало коридоров, каждый метр работает.

- Дом для общения: большая гостиная и терраса собирают семью и гостей.

Звоните, пишите:

Андрей Данилов 8 (921) 250-60-66

Юлия Тиханова 8 (921) 534-54-44

Алексей Автамонов 8 (921) 064-74-44

8 (800) 222-82-44

Офис: г. Вологда, ул. Ярославская, д. 25, оф. 26. voldoma@yandex.ru

-2
-3
-4
-5
-6
-7
-8
-9