Добавить в корзинуПозвонить
Найти в Дзене
Мастера Ремонта

ДИЗАЙН-ПРОЕКТ ДЛЯ ДВУШКИ С ОТДЕЛКОЙ НА ТАЙНИНСКОЙ УЛИЦЕ

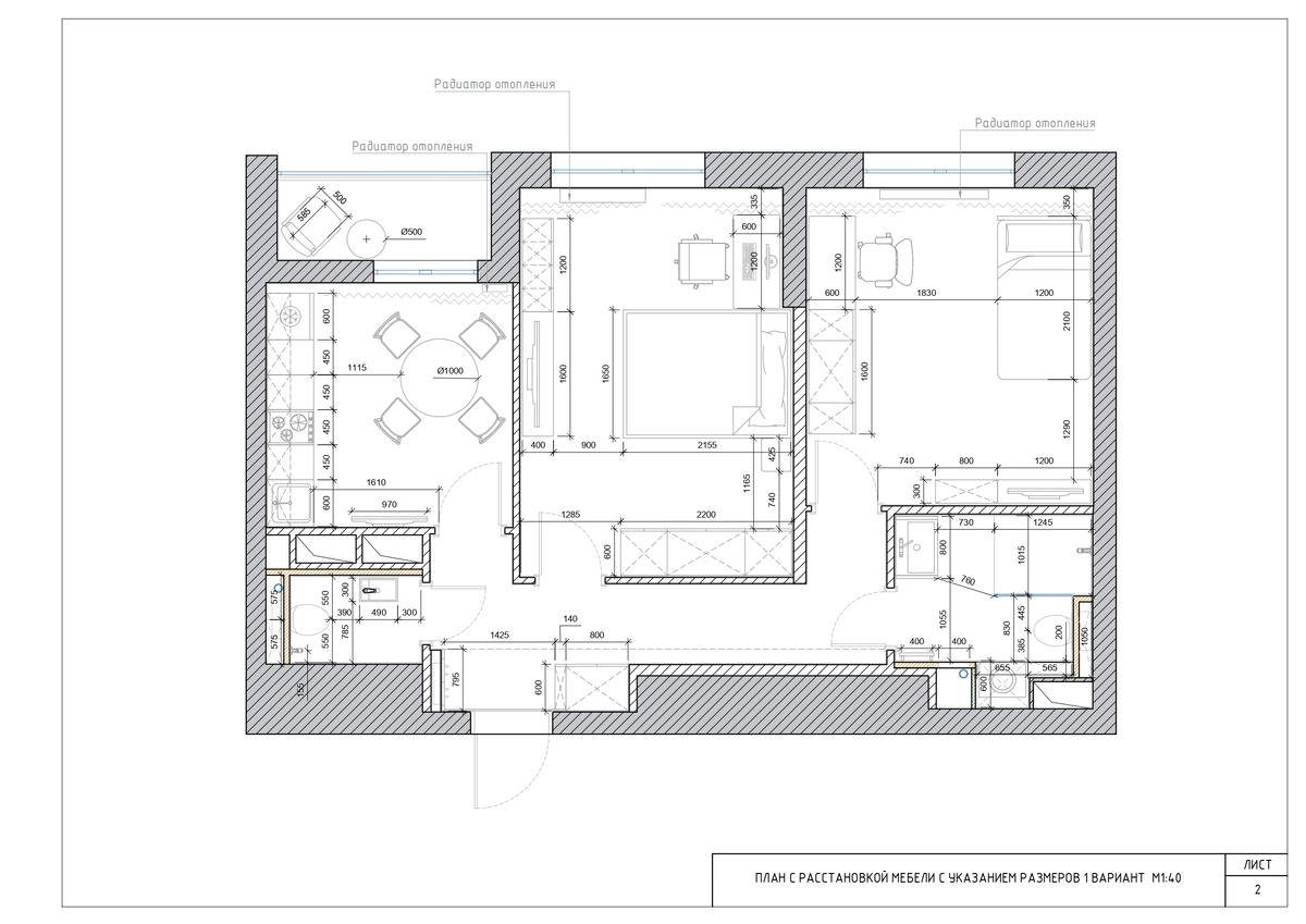
ЧТО МЫ ПОЛУЧИЛИ НА ВХОДЕ: ПЛАНИРОВОЧНОЕ РЕШЕНИЕ Главный запрос был на сохранение нескольких жилых комнат. Спальня и комната для ребенка. Необходимости в гостиной не было. Раздельный санузел, интересное решение для душа, и долго выбирали — ванная или душ. Функциональная, но компактная кухня. СПАЛЬНЯ Спальня в этом проекте может показаться оторванной от общей стилистики и концепции всей квартиры, однако это не так. Главные цвета здесь – теплый кофейный, медовые оттенки дерева и белые акценты. Одним из главных элементов стала стена из керамогранита. ДЕТСКАЯ Детская для мальчика переходного возраста. Главные цвета — небесно-голубой, оранжевый и белый. Яркая и светлая комната за счет такого цветового решения не выглядит скучной и она не привязана к определенному возрасту. Не типичный для детских комнат угловой диван, вместо односпальной кровати – решение позволяющее не менять меблировку долгое время. Вся мебель универсальна, возрастную группу определяет только наполнение: игрушки, книги, эл

ЧТО МЫ ПОЛУЧИЛИ НА ВХОДЕ:

  1. Заказчик — молодой мужчина, живет вместе с сыном. Почти все время работает вне дома.
  2. Лосиноостровской район, Тайнинская улица, 7. Квартира площадью 61м² (полноценная двушка с хорошей кухней, но надобности в зале не было, поэтому было решено переделать его в детскую).
  3. Принимали квартиру как новостройку с чистовой отделкой от застройщика.

ПЛАНИРОВОЧНОЕ РЕШЕНИЕ

Главный запрос был на сохранение нескольких жилых комнат. Спальня и комната для ребенка. Необходимости в гостиной не было. Раздельный санузел, интересное решение для душа, и долго выбирали — ванная или душ. Функциональная, но компактная кухня.

СПАЛЬНЯ

Спальня в этом проекте может показаться оторванной от общей стилистики и концепции всей квартиры, однако это не так. Главные цвета здесь – теплый кофейный, медовые оттенки дерева и белые акценты. Одним из главных элементов стала стена из керамогранита.

Несмотря на обилие кофейных оттенков, не типичных для светлого интерьера квартиры, линейность, поддерживаемая черными элементами, активно прослеживается.
Несмотря на обилие кофейных оттенков, не типичных для светлого интерьера квартиры, линейность, поддерживаемая черными элементами, активно прослеживается.
-3

ДЕТСКАЯ

Детская для мальчика переходного возраста. Главные цвета — небесно-голубой, оранжевый и белый. Яркая и светлая комната за счет такого цветового решения не выглядит скучной и она не привязана к определенному возрасту.

-4

Не типичный для детских комнат угловой диван, вместо односпальной кровати – решение позволяющее не менять меблировку долгое время. Вся мебель универсальна, возрастную группу определяет только наполнение: игрушки, книги, элементы декора.

-5

КУХНЯ-СТОЛОВАЯ

Кухонный гарнитур в одну линию поддерживается потолочными светильниками и ими же зонируется пространство. Трек визуально повторяет эту линию. Ярким элементом является стеклянный шкаф с подсветкой, он дает воздушный эффект кухонному гарнитуру, а в вечернее время является ламповым источником освещения. За счет двустворчатой двери на лоджию в кухне много естественного света.

-6

Кухня-столовая выполнена в спокойных тонах. Стены и кухонный гарнитур предложены в одном цветовом ключе. Декоративные панели в обеденной зоне выкрашены в цвет стен, что делает их не заметным, но читаемыми.

-7

ЛОДЖИЯ

Лоджия – светлое и уютное пространство с панорамными окнами - стала зоной для отдыха в летнее время. Наличие розеток позволяет так же провести здесь время за работой на ноутбуке или планшете. Лоджия не утеплена, использовать ее можно только в теплое время года. Декоративное панно выполнено из обрезков плит в санузле.

-8

ПРИХОЖАЯ-КОРИДОР

Коридор сделан в более темных тонах серого колера. Холодный серый настенного и напольного покрытия разбавляется теплым деревом в оформлении входной группы. Точечные светильники, подсветка и плинтуса выстроены в одну линию, они задают линейность всего пространства, которая поддерживается черным профилем в оформлении межкомнатных дверей.

Встроенный шкаф достаточно просторен, за накладной панелью с крючками скрыт люк доступа к щитку и тех. коммуникациям. Оптимальное количество подсветки позволяет использовать ее как самостоятельный источник освещения.

-9

МАЛЫЙ-САНУЗЕЛ

Санузел небольших размеров, в нем расположены базовые предметы наполнения. За счет использования на стенах разных плит керамогранита в определенном расположении получилось создать из одного маленького пространства две явных функциональных зоны. Линейная подсветка, обрамленная черным профилем, дублирует линии с двери и визуально вытягивает пространство вверх. Создать «колодец» не дает сочетание вертикальной и горизонтальной раскладки керамогранита на стенах.

-10

МАСТЕР-САНУЗЕЛ

В этой комнате присутствует тот же визуальный эффект деления помещения на функциональные зоны, как и в малом санузле.  За счет разного керамогранита и линий подсветки с черным профилем помещение делится на три зоны: основная зона, зона умывания и совершенно отдельная душевая кабина.

-11

ХОД РЕМОНТА

Главная идея и деталь – линейность. Акцентный цвет – черный, именно он поддерживает геометрию пространства, воплощаясь в разных элементах. Важным элементом в интерьере стала подсветка в разных вариациях ее применения. Реализация проходит с небольшими изменениями. Меблировка частично собрана в готовых решениях, но есть несколько позиций под заказ.

Сейчас сделана вся черновая отделка, уложен пол, сделана покраска стен и установлены двери. С клиентом мы всегда на связи и ждем от него следующую порцию видео и фотографий!