Добавить в корзинуПозвонить
Найти в Дзене
Мастера Ремонта

СОВРЕМЕННЫЕ 55М² ВО ВТОРИЧКЕ — ЭТО РЕАЛЬНО

Какая была задача:
Хозяева данной квартиры семейная пара, которая приобрела квартиру для себя и своего личного комфорта. Поэтому мы решили полностью поменять эту грустную вторичку на современную квартиру в стиле «Неоклассика». Место: Москва, Открытое шоссе 23к5
Тип помещения: Вторичка
Площадь: 55 м²
Кто будет жить: семейная пара
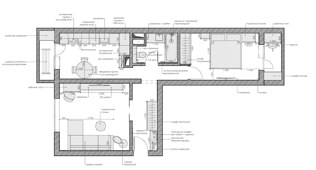
Тип проекта: полный комплект чертежей с визуализацией и подбором мебели ТЕХНИЧЕСКОЕ ЗАДАНИЕ ОТ ЗАКАЗЧИКА РАССТАНОВКА МЕБЕЛИ
Так как квартира компактная, еще одним из важных факторов для заказчиков было хранение. Его много и оно везде! Наш дизайнер постарался максимально использовать каждый уголок под хранение, но при этом не перегружая им квартиру. ГОСТИНАЯ: Взгляд приманивает огромный угловой, светлый диван, который был выполнен под заказ. Напротив вместительная TV-тумба со стеклянной витриной и вторым дополнительным рабочим местом. Эту комнату мы решили не заставлять мебелью, чтобы в дальнейшем ее можно было легко переделать в детскую комнату. КУХНЯ Кухонный

Какая была задача:
Хозяева данной квартиры семейная пара, которая приобрела квартиру для себя и своего личного комфорта. Поэтому мы решили полностью поменять эту грустную вторичку на современную квартиру в стиле «Неоклассика».

Место: Москва, Открытое шоссе 23к5
Тип помещения: Вторичка
Площадь: 55 м²
Кто будет жить: семейная пара
Тип проекта: полный комплект чертежей с визуализацией и подбором мебели

ТЕХНИЧЕСКОЕ ЗАДАНИЕ ОТ ЗАКАЗЧИКА

  1. Стараться не демонтировать стены и не делать перепланировку;
  2. Светлые оттенки. В процессе мы решили добавить оливковый цвет, как акцентный;
  3. Полный авторский надзор и помощь от дизайнера;
  4. Комплектация в одном месте;
  5. Скорость и качество работы.

РАССТАНОВКА МЕБЕЛИ
Так как квартира компактная, еще одним из важных факторов для заказчиков было хранение. Его много и оно везде! Наш дизайнер постарался максимально использовать каждый уголок под хранение, но при этом не перегружая им квартиру.

-2

ГОСТИНАЯ:

Взгляд приманивает огромный угловой, светлый диван, который был выполнен под заказ. Напротив вместительная TV-тумба со стеклянной витриной и вторым дополнительным рабочим местом. Эту комнату мы решили не заставлять мебелью, чтобы в дальнейшем ее можно было легко переделать в детскую комнату.

-3

КУХНЯ

Кухонный гарнитур – один из основных акцентов в этой квартире. По желанию заказчицы нижние ящики кухни окрашены в оливковый цвет, который встречается нам во всех комнатах.

-4

Еще одним не менее заметным акцентом является противоположная стена. Ее мы решили заполнить молдингами, чтобы не оставлять эту стену пустой, но при этом добавить интересных деталей в интерьер которые соответствуют выбранной стилистике.

КУХОННЫЙ БАЛКОН

Так как одной из основных задачей квартиры было большое количество мест хранения, мы предусмотрели на балконе шкаф и тумбу. Также здесь предусмотрена подвесная сушилка для белья, которая не занимает много места, и отлично подходит для балкона.

-5

ПРИХОЖАЯ

Длинная, узкая прихожая одна из самых частых проблем во вторичном жилье. Мы решили эту проблему большим шкафом 6 в 1.

-6

Он сочетает в себе банкетку на которую можно присесть переобуться либо же поставить тяжелые пакеты, закрытое хранение верхней одежды и обуви, вешалки быстрого доступа, дополнительные полки для хранения прочей мелочи, а также ниша под робот-пылесос. Вот так просто можно уместить всё и даже больше в узкой прихожей, если продумать все детали!

-7

СПАЛЬНЯ:

Верным решением в данной спальне было нарастить стену и встроить в нишу вместительный шкаф, куда поместиться всё необходимое. Слева от кровати прикроватная тумба, а справа поместился туалетный-макияжный столик, который также выполняет функцию прикроватной тумбы. И конечно, самым заметным «пятном» является роспись ручной работы за изголовьем кровати. Получилось очень уютно и сдержанно!

[gallery columns="2" size="full" ids="13912,13913"]

БАЛКОН В СПАЛЬНЕ

Еще одним пожеланием заказчиков было отдельное рабочее место, и было принято решение сделать балкон в спальне под кабинет. У нас отлично получилось разместить там рабочее место, а также дополнительный шкаф для хранения документов и книг.

-8

САНУЗЕЛ

После ремонта маленький и не эргономичный санузел превратился в светлый с разнообразными местами для хранения санузел с полноценной ванной.

-9