Добавить в корзинуПозвонить
Найти в Дзене
Мастера Ремонта

ЖК «ЛЕСНАЯ ОТРАДА» — функциональное пространство для того, кто работает из дома

Какая была задача:
Хозяйка делает квартиру под себя, так как проводит в ней долгое время, а также работает и дома. Важно было сделать уютно, функционально. Место: Москва, Косой переулок, д2.
Тип помещения: Новостройка в бетоне
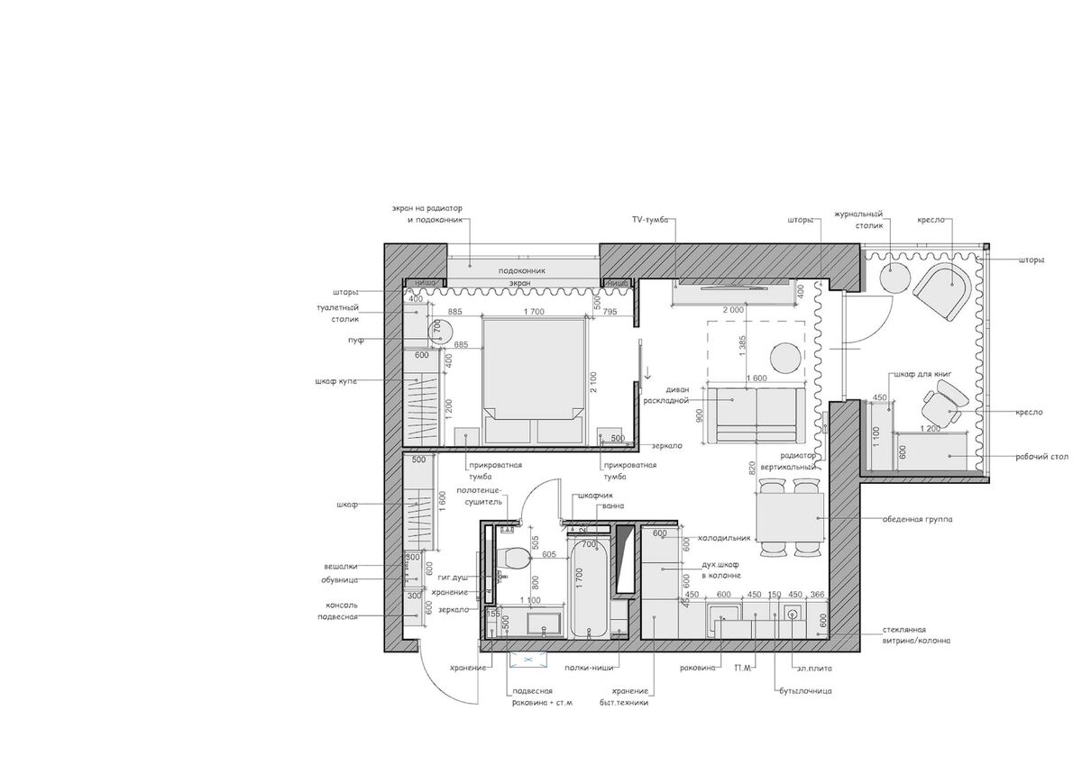
Площадь: 47 м²
Кто будет жить: девушка
Тип проекта: полный комплект чертежей с визуализацией и подбором мебели ПЛАНИРОВОЧНОЕ РЕШЕНИЕ Так как квартира предназначена для постоянного проживания, нужно было сделать ее максимально функциональной и уютной, чтобы был уголок как для работы, так и для отдыха. Нам удалось разместить все необходимое для комфортного проживания, приема гостей и рабочую зону. ПРИХОЖАЯ От застройщика мы получили узкую прихожую, где было достаточно непросто разместить все необходимо, но мы справились. Мы смогли вместить большой шкаф для верхней одежды, секцию под хранение бытового инвентаря и робота-пылесоса, банкетку, крючки быстрого доступа. а также подвесную консоль. КУХНЯ-ГОСТИНАЯ Акцентом всей кухни является шкаф с подсветкой он дает воздуш

Какая была задача:
Хозяйка делает квартиру под себя, так как проводит в ней долгое время, а также работает и дома. Важно было сделать уютно, функционально.

Место: Москва, Косой переулок, д2.
Тип помещения: Новостройка в бетоне
Площадь: 47 м²
Кто будет жить: девушка
Тип проекта: полный комплект чертежей с визуализацией и подбором мебели

ПЛАНИРОВОЧНОЕ РЕШЕНИЕ

Так как квартира предназначена для постоянного проживания, нужно было сделать ее максимально функциональной и уютной, чтобы был уголок как для работы, так и для отдыха. Нам удалось разместить все необходимое для комфортного проживания, приема гостей и рабочую зону.

ПРИХОЖАЯ

От застройщика мы получили узкую прихожую, где было достаточно непросто разместить все необходимо, но мы справились. Мы смогли вместить большой шкаф для верхней одежды, секцию под хранение бытового инвентаря и робота-пылесоса, банкетку, крючки быстрого доступа. а также подвесную консоль.

-2

КУХНЯ-ГОСТИНАЯ

Акцентом всей кухни является шкаф с подсветкой он дает воздушный эффект кухонному гарнитуру, а в вечернее время является приглушенным источником освещения, так же ка ки зона ТВ. Интерьер выдержан в холодных бежевых оттенках с черными элементами декора, фурнитуры и розеток. Также, стараемся не забывать про ваших четвероногих друзей и выделяем им отдельное пространство.

-3

ЛОДЖИЯ

Это было отдельное пожелание заказчицы, так как она работает из дома, надо было приспособить лоджию и для работы. и для отдыха.

-4

Продуманное рабочее место — один из важнейших параметров для тех, кто работает из дома.

СПАЛЬНЯ

Здесь мы сделали стандартный набор мебели и добавили две прикроватные тумбочки, одна из которых служит приставным столиком для ноутбука. Также, закрыли радиатор панелями и у нас оставалась пустая ниша от края окна до стен. Мы решили сделать там полки-ниши из гипсокартона, которые будут скрыты за шторами, как дополнительное место хранения.

-5

САНУЗЕЛ

Ванная, большая тумба с накладной трендовой раковиной, зеркало с подсветкой, скрытый карниз для шторки встроенный в потолок и множество мест хранения над инсталляцией.

-6