11 марта в новом корпусе Государственной Третьяковской галереи подвели итоги конкурса архитектурных проектов для Арктической зоны России «Неочевидное. Арктика», в котором участвовали студенты и молодые архитекторы до 30 лет.
Наш коллега Глеб Чуркин представил проект «Линия Арктики» и стал победителем в номинации «Архитектурный спидкубинг», а также получил диплом профессионального выбора от агентства стратегического развития «Север».
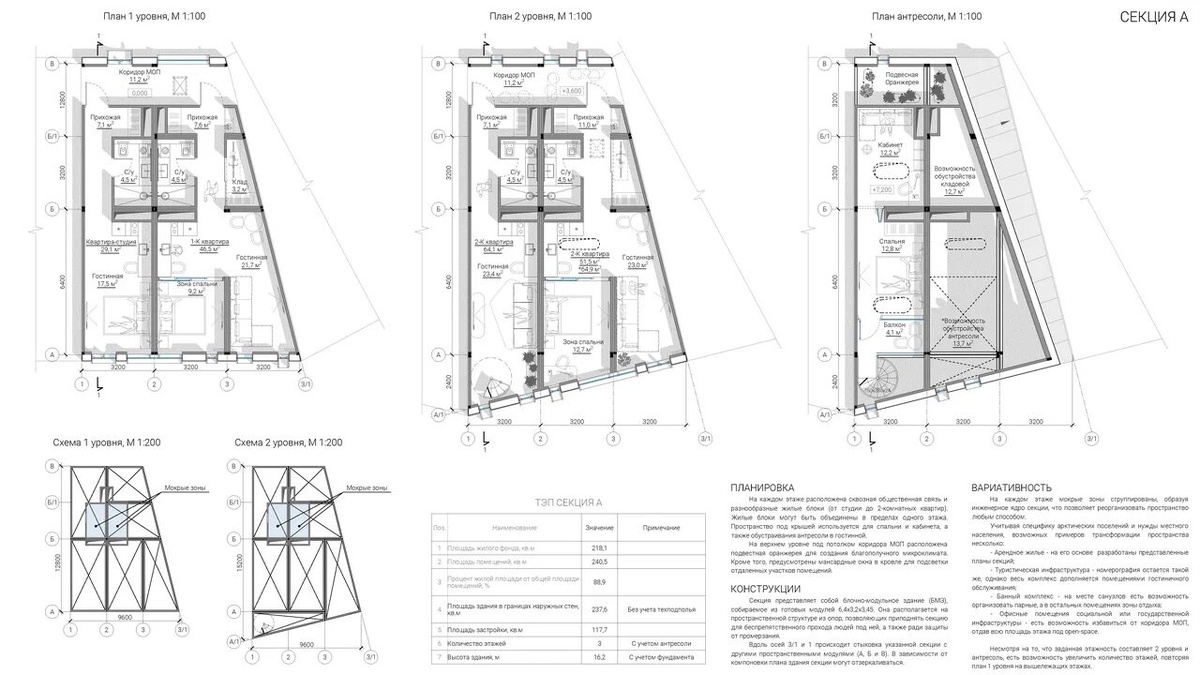
Цель проекта – раскрыть возможности prefab-архитектуры в условиях Севера, а также показать возможности трансформации как функций, так и геометрии модульных зданий, в зависимости от нужд контекста.
Этот проект – не громкое архитектурное высказывание, а попытка найти баланс между природным северным контекстом и современным пониманием комфорта, сопоставить понятие «Дом» и «Город», создать маяк и центр притяжения, но при этом оставить толику личного пространства и тихого уюта.
Проект “Линия Арктики” представляет собой трансформируемое и полифункционально
