Добавить в корзинуПозвонить
Найти в Дзене

Безымянная дорога у Светлой жизни»в Орле получит название

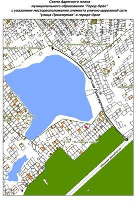
В Заводском районе Орла планируют официально зарегистрировать новую улицу — Приозёрную. Она пройдет вдоль озера «Светлая жизнь». Вопрос о присвоении названия улице обсуждался 17 марта на заседании профильного комитета Орловского горсовета. Инициатива поступила от собственника земельного участка и здания кафе «Скат», расположенных в этой зоне. Выяснилось, что дорога с асфальтовым покрытием давно стоит на балансе города и числится в реестре, но имени у неё нет. Согласно Генеральному плану города Орла эта дорога относится к улицам и дорогам местного значения, однако до сих пор не имеет официального наименования. Присвоение названия позволит присвоить законные адреса кафе и другим строениям, которые также оказались в подобной блокаде из-за удалённости от магистралей. Вариант «Приозёрная» предложили в Управлении градостроительства. Окончательное слово теперь за городскими депутатами, которые озвучат своё решение по данному вопросу на ближайшей сессии горсовета. Напомним: работы по ремонту д

В Заводском районе Орла планируют официально зарегистрировать новую улицу — Приозёрную. Она пройдет вдоль озера «Светлая жизнь».

Вопрос о присвоении названия улице обсуждался 17 марта на заседании профильного комитета Орловского горсовета. Инициатива поступила от собственника земельного участка и здания кафе «Скат», расположенных в этой зоне.

Выяснилось, что дорога с асфальтовым покрытием давно стоит на балансе города и числится в реестре, но имени у неё нет. Согласно Генеральному плану города Орла эта дорога относится к улицам и дорогам местного значения, однако до сих пор не имеет официального наименования.

Присвоение названия позволит присвоить законные адреса кафе и другим строениям, которые также оказались в подобной блокаде из-за удалённости от магистралей. Вариант «Приозёрная» предложили в Управлении градостроительства.

Окончательное слово теперь за городскими депутатами, которые озвучат своё решение по данному вопросу на ближайшей сессии горсовета.

Напомним: работы по ремонту дороги возле Светлой жизни, установке павильона, организации парковки на 50 машин общей стоимостью 40 млн рублей выполнило ООО «ГазРесурс».

  📷
📷