Найти в Дзене

Благодаря читателям «АО» и паблику «Мурманск: что есть и что будет?» рассказываем вам про то, что планируется воздвигнуть на пустыре за

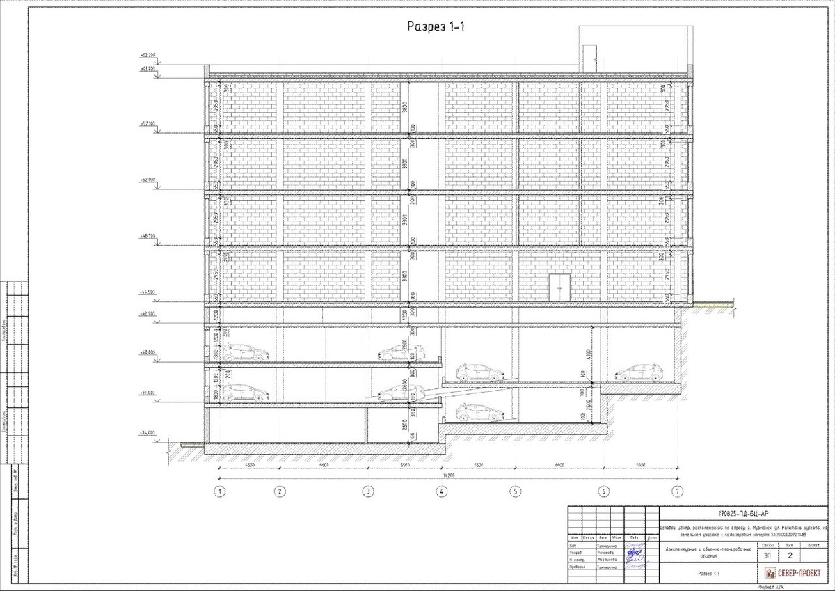
Благодаря читателям «АО» и паблику «Мурманск: что есть и что будет?» рассказываем вам про то, что планируется воздвигнуть на пустыре за драмтеатром (горка вдоль Книповича). Как оказалось, там собираются построить деловой центр с полуподземным паркингом. Напоните, пожалуйста, были ли по этому поводу общественные слушания? А то деревья там уже вырубили (а проекте мэрского постановления стоит прочерк). И как не напомнить про проблемы при строительстве нового здания прокуратуры, которое должно было располагаться по нечётной стороне улицы Книповича. ❄ «Арктический Обозреватель»

В ответ на пост

Благодаря читателям «АО» и паблику «Мурманск: что есть и что будет?» рассказываем вам про то, что планируется воздвигнуть на пустыре за драмтеатром (горка вдоль Книповича).

Как оказалось, там собираются построить деловой центр с полуподземным паркингом. Напоните, пожалуйста, были ли по этому поводу общественные слушания? А то деревья там уже вырубили (а проекте мэрского постановления стоит прочерк).

И как не напомнить про проблемы при строительстве нового здания прокуратуры, которое должно было располагаться по нечётной стороне улицы Книповича.

«Арктический Обозреватель»

-2