Найти в Дзене
DIVAN.RU

Евродвушка 55 кв.м: монохромный дизайн и креативные световые решения

Обилие света, ощущение простора и минималистичный дизайн, — вот что делает эту квартиру особенной. Визуально увеличить пространство помогают высокие зеркала и встроенная мебель. Заглянем в гости. «Главной проблемой этой трешки были крайне скромные габариты комнат, — поясняет дизайнер. — Мы решили ее радикально: оставили только спальню, увеличив площадь последней по сравнению с вариантом застройщика, и создали единое, открытое пространство кухни-гостиной. Этот прием наполнил квартиру естественным светом». Начальная планировка с компактной проходной кухней не соответствовала задачам проекта. Решение — объединение кухни с двумя смежными комнатами — позволило создать функциональное пространство с отдельной зоной готовки, оснащенной всей необходимой техникой, обеденной группой и гостиной. Прием: подоконники отделали керамогранитом. «Этот материал выгодно отличается доступной стоимостью, при этом не уступая натуральному камню в эстетике и прочности», — поясняет дизайнер. В центре внимания в
Оглавление

Обилие света, ощущение простора и минималистичный дизайн, — вот что делает эту квартиру особенной. Визуально увеличить пространство помогают высокие зеркала и встроенная мебель. Заглянем в гости.

  • Объект: евродвушка 55 кв.м, г. Санкт-Петербург (потолки 3 м)
  • Автор проекта: дизайнер Анастасия Курганова, автор фото Андрей Акмаров
  • Бюджет: 7 млн рублей

Пожелания заказчицы

  • Функциональный интерьер с грамотно спланированной системой освещения.
  • Оптимальное количество систем хранения.
  • Визуально расширить небольшие комнаты.

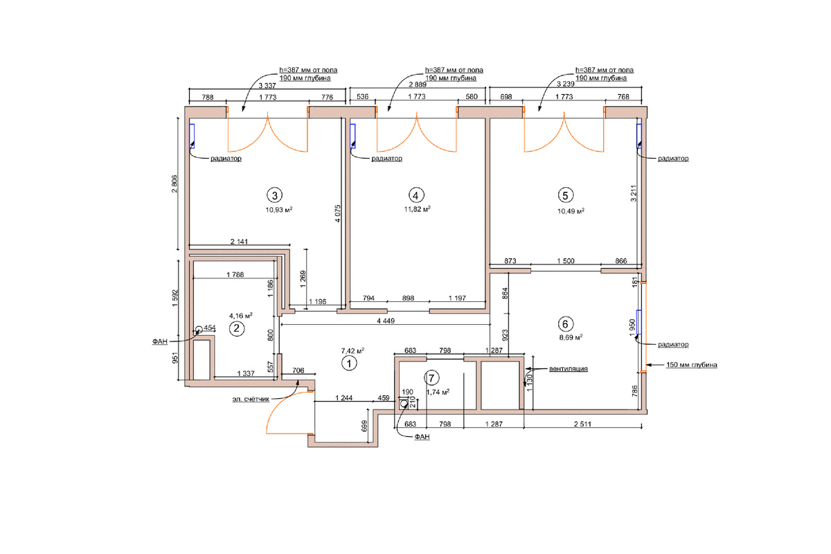
Планировочное решение

«Главной проблемой этой трешки были крайне скромные габариты комнат, — поясняет дизайнер. — Мы решили ее радикально: оставили только спальню, увеличив площадь последней по сравнению с вариантом застройщика, и создали единое, открытое пространство кухни-гостиной. Этот прием наполнил квартиру естественным светом».

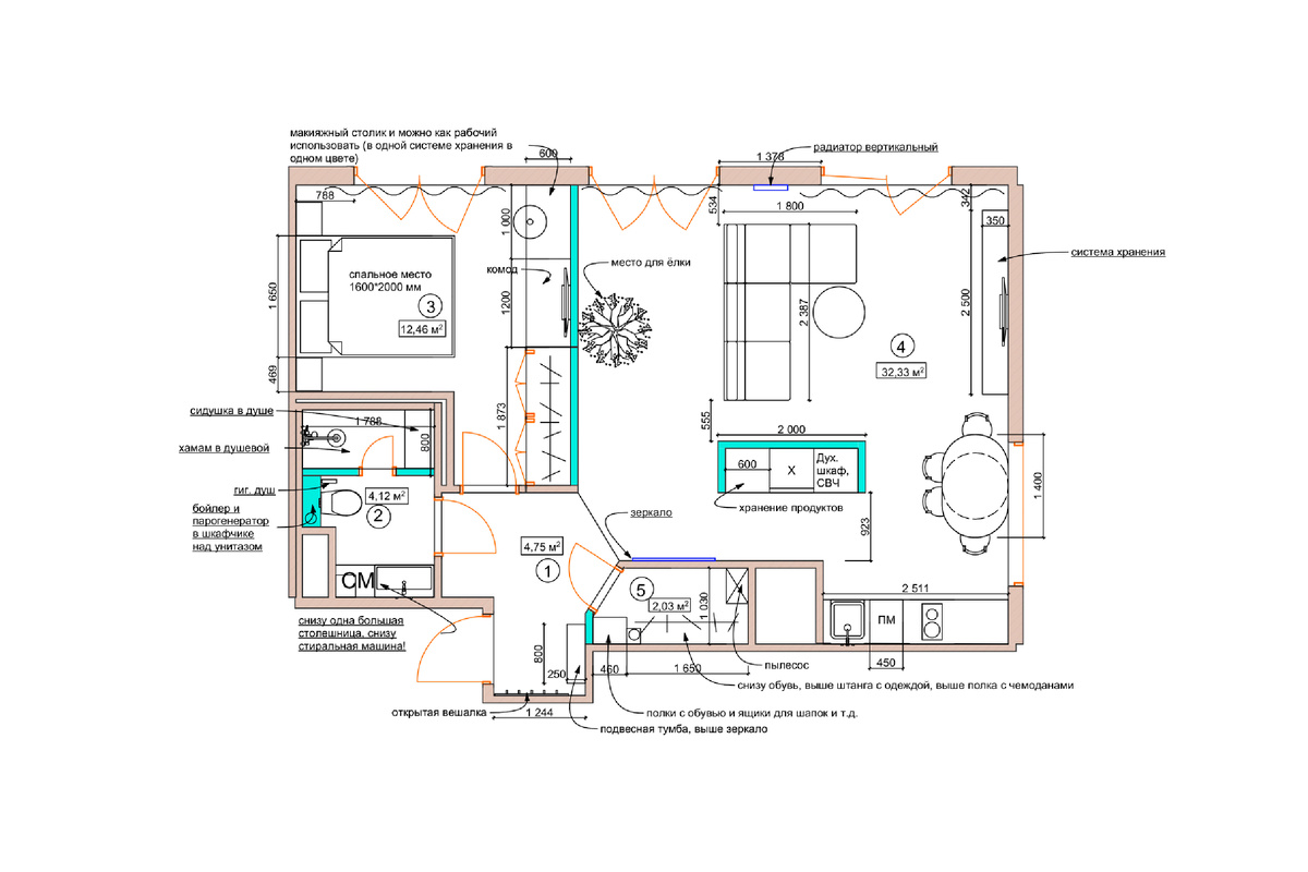
Кухня-гостиная

Начальная планировка с компактной проходной кухней не соответствовала задачам проекта. Решение — объединение кухни с двумя смежными комнатами — позволило создать функциональное пространство с отдельной зоной готовки, оснащенной всей необходимой техникой, обеденной группой и гостиной.

Прием: подоконники отделали керамогранитом. «Этот материал выгодно отличается доступной стоимостью, при этом не уступая натуральному камню в эстетике и прочности», — поясняет дизайнер.

В центре внимания в гостиной — угловой диван Харинг от бренда divan.ru. Изящные металлические ножки по дизайну перекликаются с элементами трекового освещения и фурнитурой мебели. Форма и эргономика дивана оказались очень комфортными для отдыха.

➡️Товары бренда divan.ru

Обратите внимание: стена за телевизором с подсветкой эффектно выделяет текстуру керамогранита и добавляет комнате особую атмосферу для просмотра фильмов.

Спальня

Комнату для отдыха расширили за счет смещения стены и присоединения части соседней спальни. После перепланировки здесь поместились двуспальная кровать, бельевой шкаф и туалетный столик. Часть стены за изголовьем отделали деревянными панелями, вторая часть оформлена молдингами.

Обратите внимание: подсветка с плавным, рассеянным светом создает эффект глубины и объема.

Кровать Вайлор-Floor от divan.ru впечатляет эффектным изголовьем с пышной обивкой. Декоративная строчка создает элегантный и сдержанный акцент в дизайне.

➡️Товары бренда divan.ru

Прихожая

В прихожей использованы зеркала для визуального увеличения пространства: одно напротив входа, другое — напротив кухни. Для хранения предусмотрена отдельная комната, служащая одновременно гардеробной и кладовой.

Санузел

В санузле установлена душевая кабина, организованы системы хранения: шкаф для бытовой химии над унитазом,. Для косметических принадлежностей есть шкаф справа от зеркала и выдвижные ящики под раковиной.

💥Больше выгоды в divan.ru на покупки с промокодами:

-5000₽ на заказ от 75 000₽ с ДАРИМ5 | -15 000₽ на заказ от 150 000₽ с ДАРИМ15

-9

============================

Оцените интерьер в комментариях, а если материал понравился — не забудьте поставить лайк👍

🖤divan.ru — не только блог про интерьеры, но и производитель доступной дизайнерской мебели. Ищите новые идеи и переходите на сайт, чтобы воплотить их в жизнь.