Найти в Дзене
Проекты Коттеджей

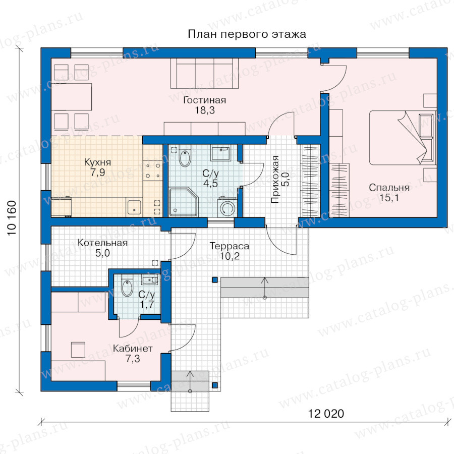
Проект 65 м², в котором есть всё.

(обзор проекта 71-29) Есть дома, которые удивляют не размером, а тем, как грамотно в них всё устроено.
Проект 71-29 — как раз такой случай. Всего 65 м², но ощущение — будто пространства больше. И это не магия, а хорошая планировка. Первое, что бросается в глаза — логика пространства. Здесь нет лишних коридоров и «пустых» метров. Всё работает: Гостиная объединена с кухней, но при этом остаётся отдельной зоной. Она достаточно просторная, чтобы: Это не «маленький угол», а нормальная жилая комната. Спальня расположена отдельно от основной зоны.
Это важно — появляется приватность. 15 м² — это комфортный размер: Небольшой кабинет (7,3 м²) — очень удачное решение. Его можно использовать как: Такие помещения делают дом гибким под разные сценарии жизни. Для компактного дома наличие двух санузлов — это огромный плюс. Это: Терраса 10,2 м² — это ещё один важный бонус. Летом она становится: И даже небольшой дом начинает ощущаться больше. В проекте есть отдельная котельная, что важно для постоянного
Оглавление

(обзор проекта 71-29)

Есть дома, которые удивляют не размером, а тем, как грамотно в них всё устроено.
Проект
71-29 — как раз такой случай.

Всего 65 м², но ощущение — будто пространства больше. И это не магия, а хорошая планировка.

Компактность без ощущения тесноты.

Первое, что бросается в глаза — логика пространства.

Здесь нет лишних коридоров и «пустых» метров. Всё работает:

  • гостиная — 18,3 м², полноценная зона отдыха;
  • отдельная спальня — 15,1 м²;
  • кухня — компактная, но удобная;
  • два санузла (что редкость для такой площади);
  • кабинет — можно использовать как вторую спальню или рабочую зону.

Гостиная — центр жизни.

Гостиная объединена с кухней, но при этом остаётся отдельной зоной.

Она достаточно просторная, чтобы:

  • поставить полноценный диван;
  • собрать гостей;
  • спокойно проводить вечера.

Это не «маленький угол», а нормальная жилая комната.

-2

Спальня — с ощущением уюта.

Спальня расположена отдельно от основной зоны.
Это важно — появляется приватность.

15 м² — это комфортный размер:

  • помещается большая кровать;
  • есть место для хранения;
  • остаётся пространство для свободного прохода.

Кабинет — гибкая зона.

Небольшой кабинет (7,3 м²) — очень удачное решение.

Его можно использовать как:

  • рабочее место;
  • гостевую комнату;
  • детскую;
  • или даже гардеробную.

Такие помещения делают дом гибким под разные сценарии жизни.

Два санузла — неожиданно, но очень удобно.

Для компактного дома наличие двух санузлов — это огромный плюс.

Это:

  • комфорт утром;
  • удобство для гостей;
  • более продуманная планировка.

Терраса — продолжение дома.

Терраса 10,2 м² — это ещё один важный бонус.

Летом она становится:

  • местом для завтраков;
  • зоной отдыха;
  • точкой притяжения всей семьи.

И даже небольшой дом начинает ощущаться больше.

Техническая часть — всё на месте.

В проекте есть отдельная котельная, что важно для постоянного проживания.

Это значит:

  • инженерия продумана;
  • оборудование не занимает жилое пространство;
  • дом подходит не только для дачи, но и для жизни круглый год.

Итог.

Проект 71-29 — это пример того, как можно сделать маленький дом удобным.

Без лишних метров, но с:

  • нормальной гостиной
  • отдельной спальней
  • кабинетом
  • двумя санузлами
  • террасой

И самое главное — без ощущения компромисса.

Посмотреть планировку и детали проекта можно здесь:
👉
https://catalog-plans.ru/catalog/71-29

Иногда хороший дом — это не большой дом.
А тот, где всё продумано.