Добавить в корзинуПозвонить
Найти в Дзене

Очередное обещание для жителей Дрожжино

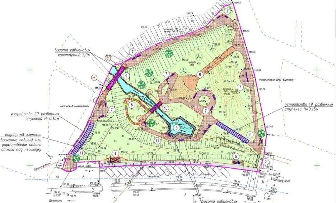
Где обещанное благоустройство данной территории, сегодня уже 17.03.2026г? Где прогулочно-тропиночные сети, обустройство зон отдыха с установкой малых архитектурных форм, установка уличного освещения, озеленение территории. «Территория проектирования расположена в пределах границ защитных зон, границ территорий выявленных объектов культурного наследия, в следствие чего необходимо проведение историко-культурных исследований. Учитывая наличие участка с отсутствием вышеуказанных ограничений, разработан проект  благоустройства территории между домами №290 (ДНТ Бутово) и ПГТ Дрожжино №37, являющийся первой частью благоустройства парка, победившего в голосовании.» Ранее, в 2024 году, эта территория стала победителем в конкурсе по благоустройству общественных пространств на 2025 год. Данный объект набрал самое большое количество голосов: 11756. Период реализации данной территории: 01.01.2025г. — 31.12.2025г. Общественная территория, рп. Боброво, ул. Юбилейная, д. 2, располагается вблизи Правос

Очередное обещание для жителей Дрожжино.

Где обещанное благоустройство данной территории, сегодня уже 17.03.2026г? Где прогулочно-тропиночные сети, обустройство зон отдыха с установкой малых архитектурных форм, установка уличного освещения, озеленение территории.

«Территория проектирования расположена в пределах границ защитных зон, границ территорий выявленных объектов культурного наследия, в следствие чего необходимо проведение историко-культурных исследований. Учитывая наличие участка с отсутствием вышеуказанных ограничений, разработан проект  благоустройства территории между домами №290 (ДНТ Бутово) и ПГТ Дрожжино №37, являющийся первой частью благоустройства парка, победившего в голосовании.»

Ранее, в 2024 году, эта территория стала победителем в конкурсе по благоустройству общественных пространств на 2025 год.

Данный объект набрал самое большое количество голосов: 11756.

Период реализации данной территории: 01.01.2025г. — 31.12.2025г.

Общественная территория, рп. Боброво, ул. Юбилейная, д. 2, располагается вблизи Православного храма Церковь святых Новомучеников и Исповедников Российских. Площадь объекта составляет приблизительно 1,5 га.

В рамках благоустройства планируются следующие виды работ: обустройство прогулочно-тропиночной сети, обустройство зон отдыха с установкой малых архитектурных форм, установка уличного освещения, озеленение территории.

ОБМАНУЛИ, НАДУЛИ!

🚀 Telegram канал Дрожжино

🚀 Telegram ЧАТ Дрожжино

📱 VK Дрожжино

📲 MAX канал Дрожжино

📲 MAX ЧАТ Дрожжино

💻 ДЗЕН Дрожжино

-2
-3
-4