Добавить в корзинуПозвонить
Найти в Дзене

Две новые студии в бетоне

🤩В ЖК «Остров» заказчик буквально вчера ночью утвердил мудборд. Приступаем к поиску материалов и к заказу их для рабочих. 🤩В ЖК «Лучи» мы построили планировку, ездили на встречу с прорабом, прошлись по квартирам, обсудили все нюансы. Сейчас там подготавливают стены. Мы, соответственно, пробираемся и закупаем материалы для санузла и для комнат, цвета красок, утверждаем всё с заказчицей. #хоумстейджинг Лаборатория хоумстейджинга

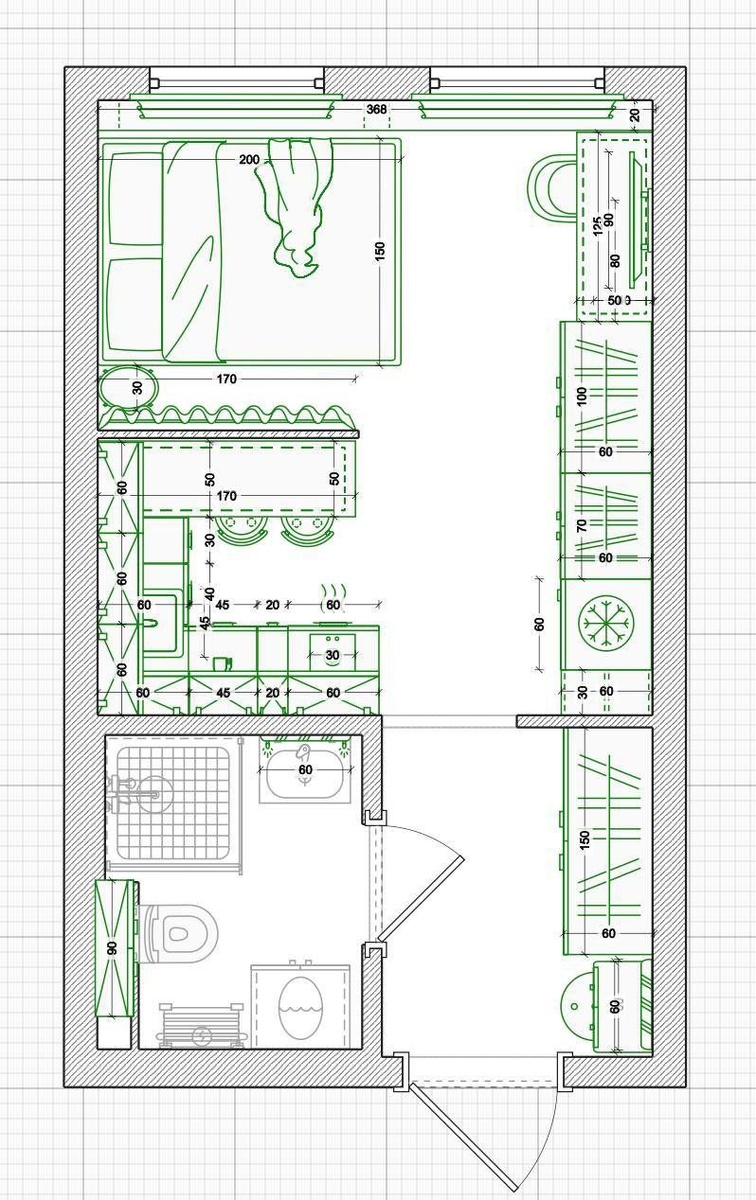
Две новые студии в бетоне

🤩В ЖК «Остров» заказчик буквально вчера ночью утвердил мудборд. Приступаем к поиску материалов и к заказу их для рабочих.

🤩В ЖК «Лучи» мы построили планировку, ездили на встречу с прорабом, прошлись по квартирам, обсудили все нюансы. Сейчас там подготавливают стены.

Мы, соответственно, пробираемся и закупаем материалы для санузла и для комнат, цвета красок, утверждаем всё с заказчицей.

#хоумстейджинг

Лаборатория хоумстейджинга

-2