Найти в Дзене

Начало строительства высотной дымовой трубы (60 метров) из нержавеющей стали

На объекте реконструкции котельной в Московской области стартовал один из ключевых этапов работ — сборка отдельно стоящей металлической дымовой трубы высотой 60 метров. В настоящий момент подрядчики приступили к укрупнительной сборке секций металлической опорной башни, которая станет основой для сложного инженерного сооружения. Проектом реконструкции предусмотрено строительство новой отдельно стоящей металлической дымовой трубы, общая высота которой составит 60,25 метров. Это сооружение относится к категории сложных инженерных объектов и спроектировано в соответствии с актуальными требованиями промышленной безопасности, экологичности и эксплуатационной надежности. Вытяжные башни являются одним из типов высотных сооружений, с помощью которых отходы производства с остаточным содержанием вредных веществ выбрасываются на значительной высоте. Конструктивно труба представляет собой пространственную стержневую ферму (четырехгранную башню), внутри которой будут размещены три независимых газоот
Оглавление
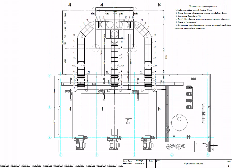
Фрагмент плана вытяжной башни, проектирование Уральского завода дымоходов "Модуль"
Фрагмент плана вытяжной башни, проектирование Уральского завода дымоходов "Модуль"

На объекте реконструкции котельной в Московской области стартовал один из ключевых этапов работ — сборка отдельно стоящей металлической дымовой трубы высотой 60 метров. В настоящий момент подрядчики приступили к укрупнительной сборке секций металлической опорной башни, которая станет основой для сложного инженерного сооружения.

Проектные решения: металлическая вытяжная башня высотой 60 м.

Проектом реконструкции предусмотрено строительство новой отдельно стоящей металлической дымовой трубы, общая высота которой составит 60,25 метров. Это сооружение относится к категории сложных инженерных объектов и спроектировано в соответствии с актуальными требованиями промышленной безопасности, экологичности и эксплуатационной надежности. Вытяжные башни являются одним из типов высотных сооружений, с помощью которых отходы производства с остаточным содержанием вредных веществ выбрасываются на значительной высоте.

Конструктивно труба представляет собой пространственную стержневую ферму (четырехгранную башню), внутри которой будут размещены три независимых газоотводящих ствола.

В настоящее время на строительной площадке ведутся работы по монтажу металлоконструкций опорной части. Уже собрана часть секций будущей башни.

Сборка металлической башни (несущей конструкции) на объекте
Сборка металлической башни (несущей конструкции) на объекте
Фрагмент КМ вытяжной башни
Фрагмент КМ вытяжной башни

Характеристики несущей конструкции:

Тип: Пространственная четырехгранная ферма.

Высота: 60,25 метров.

Габариты основания: 6,0 х 6,0 метров (по осям).

Фундамент. Сооружение будет закреплено на мощном столбчатом монолитном железобетонном фундаменте. Габариты фундаментной плиты составляют 12х12 метров при высоте 4,5 метра, что обеспечивает высокую устойчивость и ветровую нагрузку.

Для удобства дальнейшего сервисного обслуживания и контроля состояния дымовых каналов проектом предусмотрены специальные эксплуатационные площадки на отметках +38,0 и +60,0 метров. Подъем на высоту будет осуществляться по безопасной лестнице с ограждениями, также будет смонтировано светоограждение для обеспечения безопасности полетов воздушных судов.

Газоотводящие стволы из нержавеющей стали

Ключевая особенность данного проекта — размещение внутри общей несущей башни трех независимых дымоходов сэндвич-типа. Такая конструкция позволяет одновременно подключать несколько котельных агрегатов и обеспечивает высокую ремонтопригодность системы.

Конструкция. Модульные дымоходы, двухстенные (сэндвич) с утеплителем.

Диаметр (внутренний/внешний) — 1000/1100 мм.

Внутренний контур дымовой трубы (рабочий). Изготовлен из жаропрочной нержавеющей стали марки AISI 304 толщиной 1,0 мм. Данный материал обладает выдающейся стойкостью к коррозии, воздействию кислот и резким перепадам температур. Способен выдерживать длительный нагрев до 600°C, что критически важно для отвода агрессивных продуктов сгорания и работы с конденсатом.

Теплоизоляция: для минимизации теплопотерь и предотвращения образования конденсата используется слой базальтового волокна толщиной 50 мм.

Внешний контур дымовой трубы (покровный слой). Выполнен из нержавеющей стали AISI 430 толщиной 1,0 мм, которая обеспечивает надежную защиту теплоизоляции и внутренней трубы от атмосферных воздействий.

Перспективы проекта

Завершение монтажа металлоконструкций и установка сэндвич-дымоходов позволит значительно повысить эффективность и экологичность работы котельного оборудования в г. Королев. Новая дымовая труба рассчитана на долгий срок службы и обеспечит бесперебойное теплоснабжение потребителей с соблюдением всех современных нормативов по выбросам. Следите за развитием событий: в ближайшее время мы продолжим освещать ключевые этапы реконструкции этого важного инфраструктурного объекта.