Найти в Дзене
ЭВАстрой

Проект индивидуального двухэтажного жилого дома - 107-47 (П97)

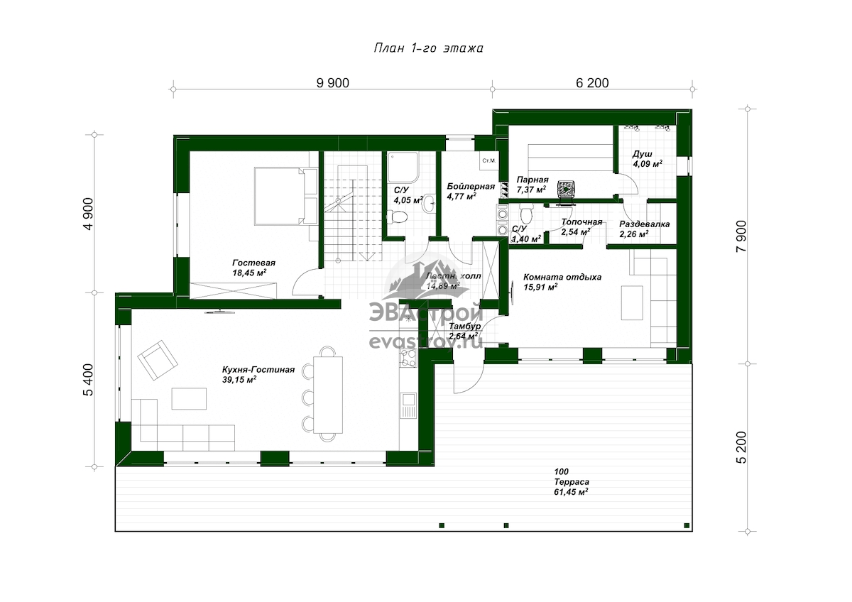
Номер проекта: 107-47 (П97) Разделы проекта: Архитектурный и Конструктивный разделы Узнать о проекте больше можно на сайте evastroy.ru или по телефону +7 (495) 175-30-40 Элегантный двухэтажный коттедж общей площадью 253 м2 может быть как загородным домом отдыха, так и постоянным жилищем для семьи из четырех-пяти человек. В проекте предусмотрено: просторная светлая кухня-гостиная; банный комплекс; большая терраса 61 м2 с крытой и открытой зонами; 3 спальни; комната для гостей. С террасы попадаем в небольшой тамбур. Вдоль левой стены — встроенный шкаф для сезонной одежды и обуви. Справа — вход в сауну. Первый этаж поделен на три объема: Дневная территория (кухня-гостиная) с линейной рабочей группой, обеденным столом-островом и зоной отдыха с ТВ и мягкой мебелью. Эту часть дома отличают большие широкие окна. Хозяйственно-гостевая зона. Включает лестничный холл с гардеробным шкафом, комнату длят гостей, санузел и бойлерную. Банный блок. Начинается комнатой отдыха, доступной из тамбура. Так
Номер проекта: 107-47 (П97)
Разделы проекта: Архитектурный и Конструктивный разделы
Узнать о проекте больше можно на сайте evastroy.ru или по телефону
+7 (495) 175-30-40
  • Общая площадь: 253.27 м2;
  • Габариты дома: 13.1 x 17.9 м;
  • Этажность: 2;
  • Фундамент: фундаментная ж/б плита 300 мм;
  • Материал стен: газобетонные блоки 500 мм;
  • Перекрытия: монолитное ж/б -200 мм;
  • Крыша: сложная, многоскатная;
  • Кровля: мягкая кровля;
  • Фасад: наружная отделка: комбинированная( штукатурка, декоративный камень.); цоколь: декоративный камень;
  • Стиль: европейский.

Элегантный двухэтажный коттедж общей площадью 253 м2 может быть как загородным домом отдыха, так и постоянным жилищем для семьи из четырех-пяти человек. В проекте предусмотрено: просторная светлая кухня-гостиная; банный комплекс; большая терраса 61 м2 с крытой и открытой зонами; 3 спальни; комната для гостей.

-2

С террасы попадаем в небольшой тамбур. Вдоль левой стены — встроенный шкаф для сезонной одежды и обуви. Справа — вход в сауну. Первый этаж поделен на три объема: Дневная территория (кухня-гостиная) с линейной рабочей группой, обеденным столом-островом и зоной отдыха с ТВ и мягкой мебелью. Эту часть дома отличают большие широкие окна. Хозяйственно-гостевая зона. Включает лестничный холл с гардеробным шкафом, комнату длят гостей, санузел и бойлерную. Банный блок. Начинается комнатой отдыха, доступной из тамбура. Также имеется санузел, топочная, раздевалка. Душевая и собственно парная с настоящей дровяной печью!

-3

На втором этаже три спальни (в каждом предусмотрен вместительный гардеробный шкаф), ванная и кладовая.

Строение возводится из газоблоков 500, с плитным 300-мм фундаментом и монолитными 200-мм ж/б перекрытиями. На сложной многоскатной кровле уложено мягкое покрытие. Наружная отделка — это комбинация штукатурки и декоративного камня; цоколь отделан камнем целиком. Дом состоит из двух двухэтажных объемов и одноэтажного, где находится сауна с прилегающими помещениями. Двухэтажные объемы, в свою очередь, немного смещены относительно друг друга и покрыты разными, хотя и сопряженными, крышами. Главный фасад примечателен широкими окнами, скошенными на верхнем ярусе, террасой и балконом. Балкон защищен удлиненным скатом крыши.

Проект дома из газобетона

Подробнее с проектом можно ознакомиться на сайте evastroy.ru