Добавить в корзинуПозвонить
Найти в Дзене

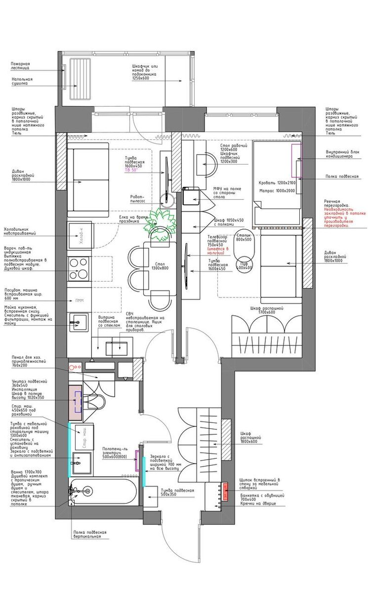
Итак, какие изменения были внесены

⬇️⬇️⬇️ Шкаф в прихожей всегда глубиной 60 см. Меньше - только в крайних случаях. Крючки за шкафом, чтобы уменьшить визуальный шум. Унитаз в линию с раковиной. Над самой раковиной будет только зеркало. Хранения в санузле получилось достаточно. Кухню полностью переиграли. Невстроенная СВЧ расположилась на столешнице. Стол получился комфортнее и подход к диванчику стал свободнее. От шведской стенки клиенты отказались. Кровать расположилась изголовьем к перегородке. В дизайне интерьера есть общие рекомендации и те, которые важно совместить с индивидуальными привычками, поэтому подготовка проекта происходит в тесном контакте с клиентами. И меня удивил тот факт, что предыдущий дизайнер не обсудил свои решения с клиентом, ориентируясь только на фотоподборку 🤦‍♀️ Квартиру точно такой же планировки я разрабатывала около года назад. И в ней мы разделили ванную и санузел, а также перенесли проем в жилую комнату. Ознакомиться с проектом можно в закрепленном посте.

Итак, какие изменения были внесены ⬇️⬇️⬇️

Шкаф в прихожей всегда глубиной 60 см. Меньше - только в крайних случаях. Крючки за шкафом, чтобы уменьшить визуальный шум.

Унитаз в линию с раковиной. Над самой раковиной будет только зеркало. Хранения в санузле получилось достаточно.

Кухню полностью переиграли. Невстроенная СВЧ расположилась на столешнице. Стол получился комфортнее и подход к диванчику стал свободнее.

От шведской стенки клиенты отказались. Кровать расположилась изголовьем к перегородке.

В дизайне интерьера есть общие рекомендации и те, которые важно совместить с индивидуальными привычками, поэтому подготовка проекта происходит в тесном контакте с клиентами.

И меня удивил тот факт, что предыдущий дизайнер не обсудил свои решения с клиентом, ориентируясь только на фотоподборку 🤦‍♀️

Квартиру точно такой же планировки я разрабатывала около года назад. И в ней мы разделили ванную и санузел, а также перенесли проем в жилую комнату.

Ознакомиться с проектом можно в закрепленном посте.

-2