Найти в Дзене
ЭВАстрой

Проект индивидуального двухэтажного жилого дома с гаражом - 107-37 (93)

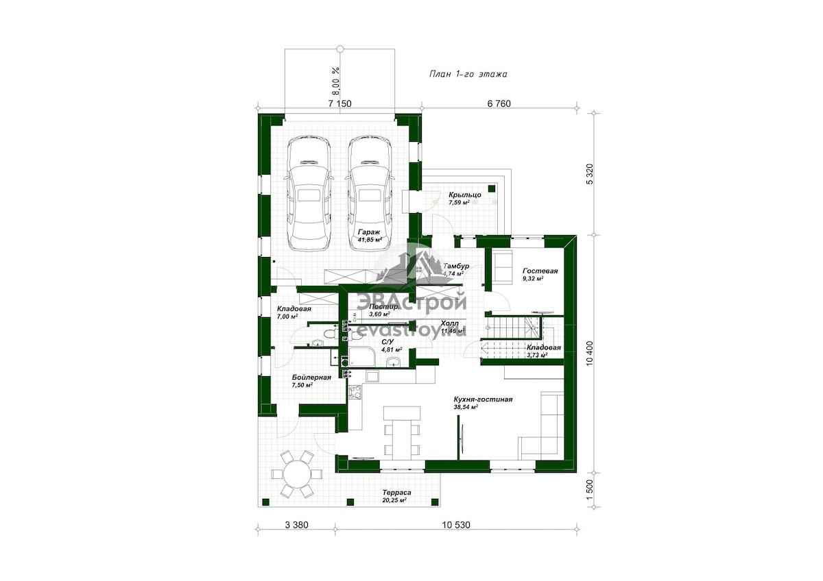
Номер проекта: 107-37 (П93) Разделы проекта: Архитектурный и Конструктивный разделы Узнать о проекте больше можно на сайте evastroy.ru или по телефону +7 (495) 175-30-40 Двухэтажный коттедж в европейском стиле, общей площадью 232 м2. В нем запланировано все необходимое для загородного проживания семьи из четырех человек: комфортная жилая зона: 3 спальни, кухня-гостиная, гостевая, 2 санузла, ванная; отличный двухместный гараж; кабинет для работы из дома; удобные хозяйственные помещения — постирочная, гардеробная, бойлерная, кладовые; уютная крытая терраса. В дом заходим с невысокого крытого крыльца, примыкающего к гаражу. У входа расположена гостевая спальня и хозяйственные помещения: санузел, постирочная, лестничный холл, кладовая. Кухня и гостиная находятся в общем зале; функциональные зоны условно разделяет короткая ТВ-стена. Выйдя на террасу из кухни, через соседнюю дверь можно пройти в кладовую с туалетом, а оттуда — в гараж. В меблировку детских включены рабочие столы. На верхнем
Номер проекта: 107-37 (П93)
Разделы проекта: Архитектурный и Конструктивный разделы
Узнать о проекте больше можно на сайте evastroy.ru или по телефону
+7 (495) 175-30-40
  • Общая площадь: 232.29 м2;
  • Габариты дома: 20.2 x 13.9 м;
  • Этажность: 2;
  • Фундамент: монолитная фундаментная плита;
  • Материал стен: газобетонные блоки 400 мм;
  • Перекрытия: монолитное ж/б- 200 мм;
  • Крыша: двухскатная сложная;
  • Кровля: мягкая кровля;
  • Фасад: керамический облицовочный кирпич коричневого и песочного оттенка; цоколь: декоративный камень;
  • Стиль: европейский.

Двухэтажный коттедж в европейском стиле, общей площадью 232 м2. В нем запланировано все необходимое для загородного проживания семьи из четырех человек: комфортная жилая зона: 3 спальни, кухня-гостиная, гостевая, 2 санузла, ванная; отличный двухместный гараж; кабинет для работы из дома; удобные хозяйственные помещения — постирочная, гардеробная, бойлерная, кладовые; уютная крытая терраса.

-2

В дом заходим с невысокого крытого крыльца, примыкающего к гаражу. У входа расположена гостевая спальня и хозяйственные помещения: санузел, постирочная, лестничный холл, кладовая. Кухня и гостиная находятся в общем зале; функциональные зоны условно разделяет короткая ТВ-стена. Выйдя на террасу из кухни, через соседнюю дверь можно пройти в кладовую с туалетом, а оттуда — в гараж. В меблировку детских включены рабочие столы.

-3

На верхнем ярусе родительская и две детские комнаты, кабинет, гардеробная, санузел и ванная.

Коттедж возводится из газоблоков, на мелкозаглубленном ленточном фундаменте, с монолитными ж/б перекрытиями. В экстерьере обращает на себя внимание: Сложная крыша с двойным фронтоном на главном фасаде; Кирпичная отделка фасадов двухцветным лицевым кирпичом, с основным песочным фоном и коричневыми акцентами; Обилие окон, которые присутствуют не только в жилых, но и в хозяйственных помещениях; Интересное решение террасы — в крышу вмонтированы кровельные окна; таким образом, терраса, будучи защищенной от осадков, получает естественный свет. Использование для отделки цоколя декоративного камня, а для кровли — мягкой черепицы; Декоративные арочные окна на фронтонах.

Проект индивидуального двухэтажного жилого дома с гаражом.

Подробнее с проектом можно ознакомиться на сайте evastroy.ru