Найти в Дзене

Проект дома с мансардным этажом DTE-51

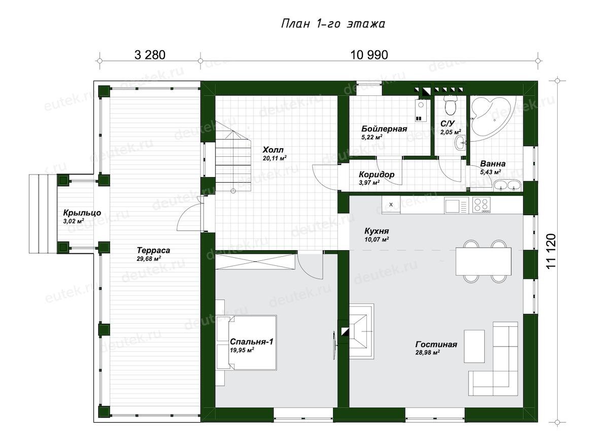
Номер проекта: DTE-51 Разделы проекта: Архитектурный и Конструктивный разделы Заказать проект можно на сайте deutek.ru или по телефону +7 (495) 175-30-40 Другие проекты можете посмотреть в этом разделе https://zen.yandex.ru/proektirovaniedomov Двухэтажный коттедж с мансардой выполнен в европейском стиле, с элементами стиля шале. Это прекрасный выбор для постоянного проживания и загородного отдыха. Дом рассчитан на пять человек, его общая площадь 243 м2, габариты — 15.65 x 11.12 м. Состав помещений: 4 спальни, гостиная, кухня, 2 санузла, ванная, бойлерная, коридор, холлы. Преимущества проекта: реализуется по надежной кирпичной технологии; предусмотрена крытая терраса и балкон; возможно проживание гостей. Просторные холлы, соединенные широкой трехмаршевой лестницей. Под верхними пролетами лестницы отлично поместится гардеробная зона. Помещения-водопотребители (санузлы, кухня, бойлерная) собраны в компактную группу. Столь же компактными будут и коммуникации, а единый выход канализации пов
Оглавление
Номер проекта: DTE-51
Разделы проекта: Архитектурный и Конструктивный разделы
Заказать проект можно на сайте deutek.ru или по телефону
+7 (495) 175-30-40
Другие проекты можете посмотреть в этом разделе
https://zen.yandex.ru/proektirovaniedomov
  • Общая площадь: 243.38 м2;
  • Габариты дома: 15.65 м x 11.12 м;
  • Этажность: 2 (вкл. мансардный);
  • Фундамент: фундаментная ж/б плита 300 мм;
  • Материал стен: кирпич 380 мм;
  • Перекрытия: монолитная ж.б. плита 200 мм;
  • Крыша: двухскатная, мансардная;
  • Кровля: металлочерепица;
  • Фасад: наружная отделка: штукатурка фасадная, клинкерная плитка; цоколь: клинкерная плитка;
  • Стиль: европейский.

Двухэтажный коттедж с мансардой выполнен в европейском стиле, с элементами стиля шале. Это прекрасный выбор для постоянного проживания и загородного отдыха. Дом рассчитан на пять человек, его общая площадь 243 м2, габариты — 15.65 x 11.12 м. Состав помещений: 4 спальни, гостиная, кухня, 2 санузла, ванная, бойлерная, коридор, холлы. Преимущества проекта: реализуется по надежной кирпичной технологии; предусмотрена крытая терраса и балкон; возможно проживание гостей.

-2

Просторные холлы, соединенные широкой трехмаршевой лестницей. Под верхними пролетами лестницы отлично поместится гардеробная зона. Помещения-водопотребители (санузлы, кухня, бойлерная) собраны в компактную группу. Столь же компактными будут и коммуникации, а единый выход канализации повышает рациональность всего дома. Технические помещения (бойлерная и санузлы) расположены в отдельном блоке за закрытой дверью. Гостиная и кухня объединены в одном объеме. Зона отдыха оборудована большим камином. Одна из спален спроектирована на первом этаже.

-3

Просторная главная спальня (29 м2) с доступом на балкон. Также с балконом связана и соседняя комната. Верхний ярус частично освещается встроенными окнами. Все комнаты оборудованы вместительными шкафами для хранения вещей

Стеновая кладка выполняется из кирпича 380, что соответствует полуторной кладке из обычного кирпича. Фундамент и перекрытия — в виде монолитных ж/б плит толщиной, соответственно, 300 мм и 200 мм. Интересный облик зданию придает асимметричная кровля, длинный скат которой прикрывает террасу. Край крыши поддерживается надежными опорами, облицованными клинкерной плиткой «под искусственный камень»; этим же материалом обшит и цоколь. Фасады первого этажа отделаны светлой штукатуркой, второго — деревом. Оконные профили и крестообразные ограждения гармонируют с цветом кровли. Внутрь попадаем с террасы, к которой пристроено крыльцо с двускатной крышей.

Проект дома с мансардным этажом

Подробнее с проектом можно ознакомиться на сайте deutek.ru

Подписывайтесь на канал, ставьте лайки.