Найти в Дзене

Проект индивидуального жилого дома с мансардным этажом DTE-50

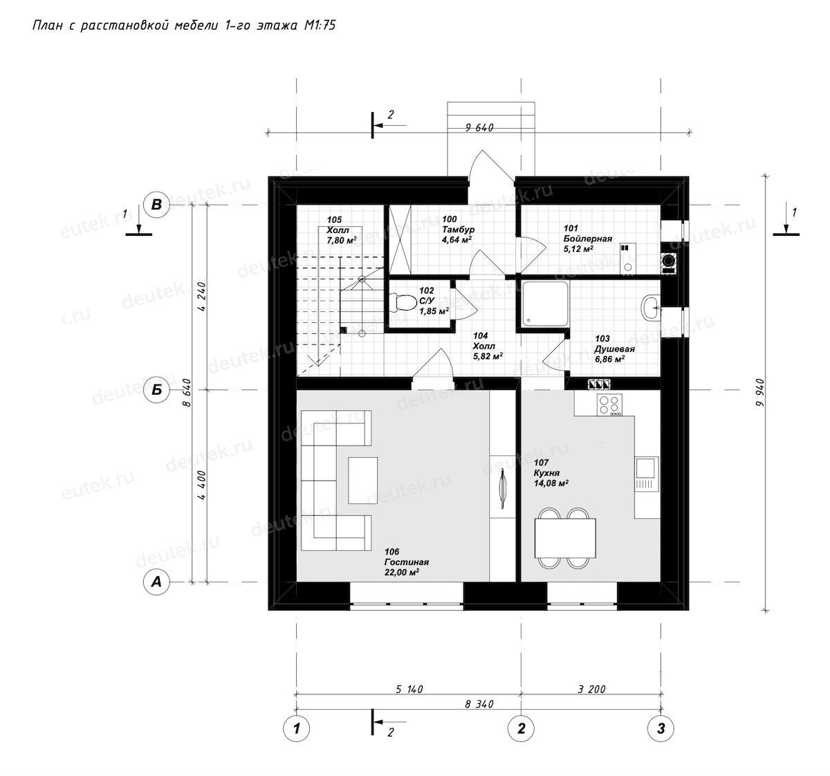
Номер проекта: DTE-50 Разделы проекта: Архитектурный и Конструктивный разделы Заказать проект можно на сайте deutek.ru или по телефону +7 (495) 175-30-40 Другие проекты можете посмотреть в этом разделе https://zen.yandex.ru/proektirovaniedomov Двухэтажный мансардный коттедж в модной отделке темным кирпичом. Проект располагает общей площадью 147 м2, что оптимально для семьи из трех-четырех человек, и габаритами 9.64 x 9.94 м. Состав помещений: 3 спальни, гостиная, кухня, кабинет, санузел, душевая, бойлерная, тамбур, холлы. Ценность данного предложения — в сочетании таких факторов, как: оригинальный экстерьер; практичность и функциональность; простая конструкция; быстрое строительство из крупноформатных газобетонных блоков. На первом этаже — общие и технические комнаты; приватные часть вынесена наверх. Гостиная и кухня раздельные, тем не менее, между ними не капитальная стена, а перегородка, которую при желании легко убрать, создав общую дневную зону. На одной линии с кухней — душевая и
Номер проекта: DTE-50
Разделы проекта: Архитектурный и Конструктивный разделы
Заказать проект можно на сайте deutek.ru или по телефону
+7 (495) 175-30-40
Другие проекты можете посмотреть в этом разделе
https://zen.yandex.ru/proektirovaniedomov
  • Общая площадь: 146.83 м2;
  • Габариты дома: 9.64 м x 9.94 м;
  • Этажность: 2 (вкл. мансардный);
  • Фундамент: фундаментная ж/б плита 300 мм;
  • Материал стен: газобетонные блоки 400 мм;
  • Перекрытия: деревянные балки 50 х 200 мм.;
  • Крыша: мансардная;
  • Кровля: металлочерепица;
  • Фасад: кирпич отделочный;
  • Стиль: европейский.

Двухэтажный мансардный коттедж в модной отделке темным кирпичом. Проект располагает общей площадью 147 м2, что оптимально для семьи из трех-четырех человек, и габаритами 9.64 x 9.94 м. Состав помещений: 3 спальни, гостиная, кухня, кабинет, санузел, душевая, бойлерная, тамбур, холлы. Ценность данного предложения — в сочетании таких факторов, как: оригинальный экстерьер; практичность и функциональность; простая конструкция; быстрое строительство из крупноформатных газобетонных блоков.

-2

На первом этаже — общие и технические комнаты; приватные часть вынесена наверх. Гостиная и кухня раздельные, тем не менее, между ними не капитальная стена, а перегородка, которую при желании легко убрать, создав общую дневную зону. На одной линии с кухней — душевая и бойлерная; в любом из этих помещений можно организовать зону постирочной. Около тамбура — гостевой санузел, а в самом тамбуре поместится вместительный шкаф-купе. Двухпролетная лестница размещена в боковой части холла и на уровне верхнего яруса освещена с двух сторон.

-3

На втором этаже найдем две просторные смежные спальни (17 м2 и 199 м2), еще одну спальню поменьше (13 м2) и рабочий кабинет. в комнатах предусмотрены шкафы для личных вещей.

Коттедж имеет практически квадратный корпус с ровными стенами и несложную в изготовлении двускатную крышу с одним боковым фронтоном. Основной цвет отделки — темно-серый; белым кирпичом выложены углы (в виде рустов) и область над цоколем. Также в белом цвете решены оконные молдинги и кровельный подшив. Входная зона представлена небольшим крылечком с резными перилами и двускатной крышей.

Проект жилого дома с мансардным этажом

Подробнее с проектом можно ознакомиться на сайте deutek.ru

Подписывайтесь на канал, ставьте лайки.