Найти в Дзене

Villa Clarina — планировка, спроектированная от сценариев жизни, а не от квадратных метров

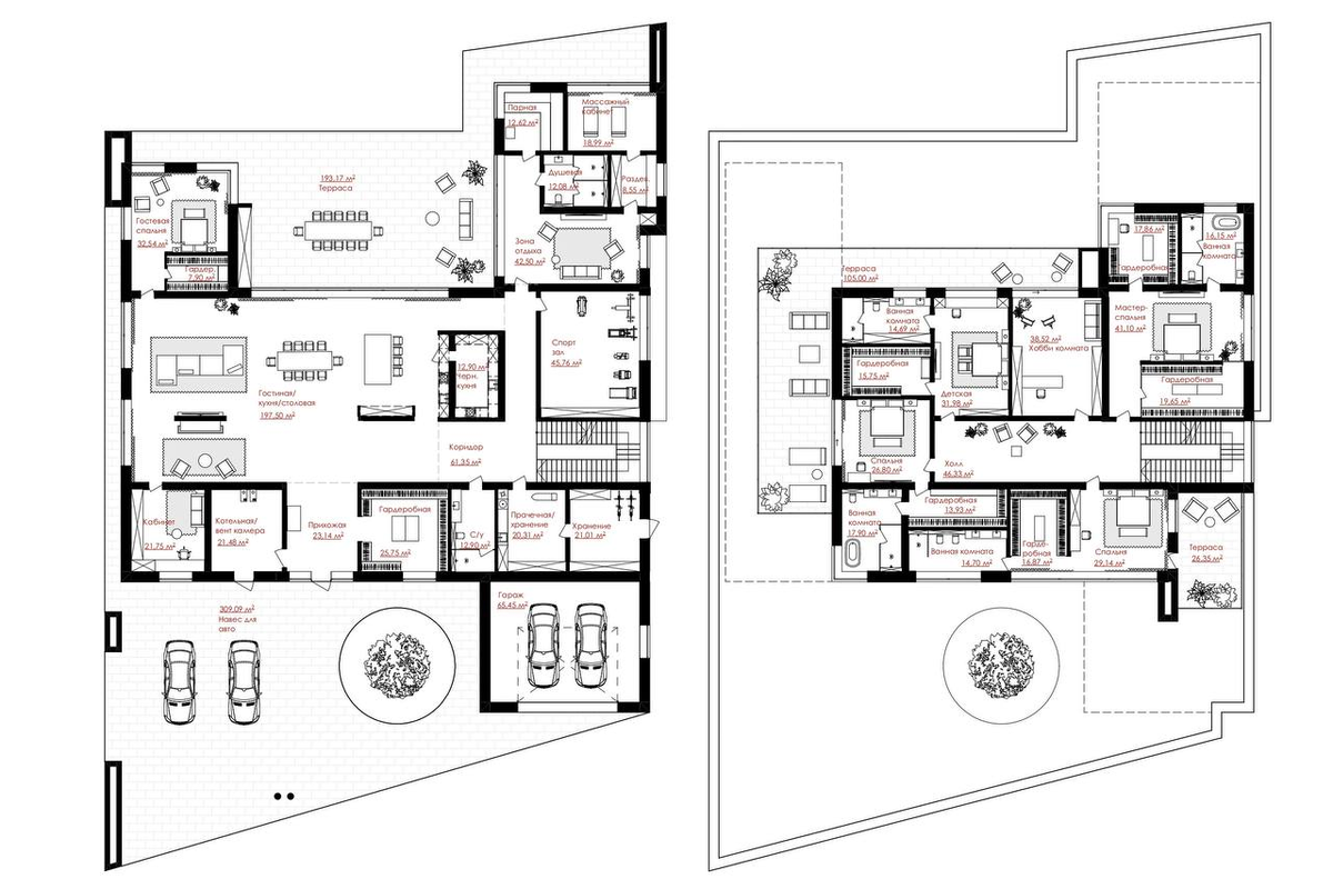
При входе в дом — просторная гардеробная и гостевой санузел. Дальше пространство переходит в кухню-гостиную. Объём, свет, свободная расстановка мебели — здесь можно собираться большой компанией, проводить семейные ужины, устраивать праздники. Внутри аккуратно спрятана черновая кухня. В обычные дни она берёт на себя бытовую нагрузку, а в праздники сюда можно пригласить повара — кухня работает «за кулисами», не вмешиваясь в атмосферу гостиной. Справа от общей зоны — блок отдыха: спортзал, парная и массажный кабинет. Полноценное SPA у себя дома. Мы сознательно вынесли его в глубину дома, максимально далеко от дороги. Здесь нет фонового шума, и даже когда в доме гости, эта часть остаётся камерной и тихой. По тому же принципу размещена и гостевая спальня — слева от террасы, обособленно от повседневной логистики. Гость чувствует приватность, а жизнь семьи продолжается в своём темпе. Второй этаж — полностью личный. Мастер-блок с двумя гардеробными и ванной, детская и две дополнительные спальн
-2

При входе в дом — просторная гардеробная и гостевой санузел. Дальше пространство переходит в кухню-гостиную. Объём, свет, свободная расстановка мебели — здесь можно собираться большой компанией, проводить семейные ужины, устраивать праздники. Внутри аккуратно спрятана черновая кухня. В обычные дни она берёт на себя бытовую нагрузку, а в праздники сюда можно пригласить повара — кухня работает «за кулисами», не вмешиваясь в атмосферу гостиной.

Справа от общей зоны — блок отдыха: спортзал, парная и массажный кабинет. Полноценное SPA у себя дома. Мы сознательно вынесли его в глубину дома, максимально далеко от дороги. Здесь нет фонового шума, и даже когда в доме гости, эта часть остаётся камерной и тихой.

По тому же принципу размещена и гостевая спальня — слева от террасы, обособленно от повседневной логистики. Гость чувствует приватность, а жизнь семьи продолжается в своём темпе.

Второй этаж — полностью личный. Мастер-блок с двумя гардеробными и ванной, детская и две дополнительные спальни также со своими гардеробными и ванными — у каждого есть собственная полноценная территория.

Отдельное пространство — хобби-комната. Сегодня это может мастерская, завтра — кабинет или игровая. Мы всегда стараемся заложить гибкость: дом живёт десятилетиями, и сценарии меняются.

И, конечно, террасы. Просторная — на первом этаже, с видом на реку и выходом к частному пирсу. На втором этаже: небольшая — при одной из спален, для тихих утренних выходов, и полноценная зона отдыха. Здесь можно загорать днём и собираться всей семьёй вечером — это продолжение дома, а не просто эксплуатируемая кровля.

Villa Clarina — пример планировки, где у каждого пространства есть своя роль. Общее — просторное и открытое. Частное — камерное и продуманное. И именно эта структура делает дом по-настоящему удобным в повседневной жизни.

Больше о нас и наших проектах: https://arhidom-buro.ru/